Eladó újépítésű ikerház, U0048903
Budapest XIV. kerület, Alsórákos

269 000 000 Ft

698 000 €

  • 141m²
  • 6 szoba

Új építésű lakás eladó Zugló Alsórákos részén, csendes mellékutcában – külön telekrésszel, garázzsal,beállóval, hőszivattyús hűtéssel-fűtéssel.
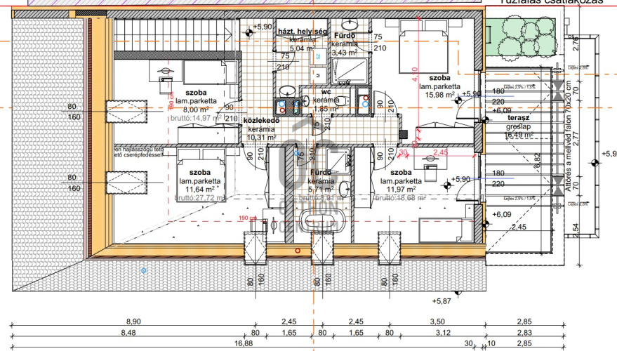
Mindkét lakáshoz saját telekrész, fedett garázs, valamint felszíni parkoló tartozik.
A lakásokhoz külön-külön "H" tarifás hőszivattyús rendszer, padlófűtés, valamint mennyezeti hűtés-fűtés kerül beépítésre.
A kivitelezés során prémium minőségű anyagokat, korszerű szigeteléseket és energiatakarékos megoldásokat használnak.
A burkolatok, szaniterek és egyéb anyagok választhatóak.
Kérésre elküldöm a műszaki tartalmat.
Átadás kulcsrakész állapotba.
Várható átadás: 2026 június.

Regisztrációs szám

U0048903

Az ingatlan adatai

Értékesités
eladó
Jogi státusz
új
Jelleg
ház
Építési mód
tégla
Méret
141 m²
Bruttó méret
165 m²
Telek méret
633 m²
Fűtés
hőszivattyú
Belmagasság
270 cm
Lakáson belüli szintszám
2
Tájolás
Dél
Állapot
Kiváló
Homlokzat állapota
Kiváló
Környék
csendes, jó közlekedés, zöld
Építés éve
2026
Fürdőszobák száma
2
Garázs férőhely
1
Víz
Van
Villany
Van
Csatorna
Van
Tároló
Önálló

Helyiségek

nappali-konyha
41 m²
szoba
12 m²
szoba
16 m²
szoba
12 m²
szoba
12 m²
szoba
8 m²
fürdőszoba-wc
9 m²
fürdőszoba-wc
5 m²
Durucskó Gabriella
Durucskó Gabriella

Hitelszakértő

Irodánk kínálatából - XIV. kerület - Vezér utca

for rent family house

Index image
26

for sale family house

Index image
26

for sale family house

Index image
data_sheet.details.realestate.section.main.otthonstart_flag.label
39

for sale apartment

Index image
data_sheet.details.realestate.section.main.otthonstart_flag.label
13

for sale new construction family house

Index image
12

for sale panel apartment

Index image
data_sheet.details.realestate.section.main.otthonstart_flag.label
22

for sale row house

Index image
data_sheet.details.realestate.section.main.otthonstart_flag.label
15

for sale semi-detached house

Index image
20

for sale apartment

Index image
21

for sale family house

Index image
data_sheet.details.realestate.section.main.otthonstart_flag.label
24