Eladó újépítésű ikerház, U0048875
Debrecen, Nagymacs

188 520 000 Ft

484 000 €

  • 157m²
  • 5 szoba

Seller, premium, modern twin house in the Nagymacs area of Debrecen – with outstanding technical specifications!

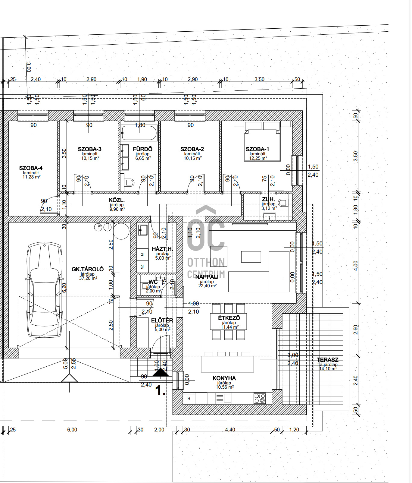
We are offering for sale an exceptionally designed, sleek, modern-style twin house in the Nagymacs area of Debrecen, which is a home for the future in every respect. The property awaits its new owner with a high level of energy efficiency, outstanding comfort, and exclusive aesthetics. The home has been designed with four separate, spacious bedrooms, making it ideal for larger families. The garage associated with the apartment is over 37 m² in size, suitable for the comfortable storage of two vehicles, plus it provides extra storage space! Key features and advantages: - Sleek, timeless facade with premium silicone-based plaster and elegant facade cladding, large glass surfaces - Huge, sunny spaces with modern interior design - Private two-car garage with parking options for multiple vehicles - High-level thermal and sound insulation: triple-glazed plastic windows (Ug=0.7 W/m²K), 35 cm thick rock wool roof insulation, double-layer floor insulation - Underfloor heating in every room - Air-water heat pump cooling and heating, with H-rate meter (2 fan-coil cooling units per apartment) - Own 5 kW solar panel system per apartment - Premium quality coverings in selectable colors (br. 10,000-15,000 HUF/m²), thoughtfully designed wet areas - Modern, exclusive sanitary ware (bathtub, shower, sinks, toilets in premium price category) - Spacious, bright living-dining-kitchen area with direct terrace access - Cold and warm coverings, quality laminate flooring (7-8 mm) The residential building represents the values of modern, energy-conscious architecture in every aspect. It has a refined, timeless appearance with premium silicone-based plaster, sleek facade cladding, and generous glass surfaces. The bright, sunny living, dining, and kitchen area has direct access to the terrace and the landscaped, paved yard, which also features preparations for an automatic irrigation system. The yard has an aesthetic, light-colored paving, landscaped green area, automatic irrigation system preparations, ornamental plants, and a fenced plot with an electric gate. Structural solutions: - VIABLOKK wall structure – outstanding load-bearing capacity and thermal insulation - Trussed roof structure with pre-insulated roof panels (anthracite gray RAL 7016) - Reinforced concrete crowns, soundproof walls for optimal privacy - Durable, slip-resistant coverings on stairs and corridors - Rainwater and waste disposal compliant with all current standards – with recessed waste storage and rainwater drainage system. Excellent location, future-proof technology, uncompromising quality This property is the perfect combination of maximum living comfort and sustainable, energy-conscious design. If you are truly looking for a timeless, multifunctional, exclusive home for your family in Debrecen, do not hesitate to inquire – we also provide personal presentations, detailed technical consultations, and visual plans! #debrecen #nagymacs #newconstruction #2026 #heatpump #twinhouse #viablokk #4bedroom #solarenergy #doublegarage

Regisztrációs szám

U0048875

Az ingatlan adatai

Értékesités
eladó
Jogi státusz
új
Jelleg
ház
Építési mód
ytong
Méret
157 m²
Bruttó méret
171 m²
Telek méret
660 m²
Terasz / erkély mérete
14,1 m²
Kert méret
489 m²
Fűtés
values.realestate.futes.26
Belmagasság
270 cm
Tájolás
Észak-kelet
Panoráma
Zöldre néző panoráma
Állapot
Kiváló
Homlokzat állapota
Kiváló
Környék
csendes, jó közlekedés, zöld
Építés éve
2026
Fürdőszobák száma
2
Társaház kert
igen
Garázs
Benne van az árban
Garázs férőhely
2
Víz
Van
Gáz
Utcán
Villany
Van
Csatorna
Van

Helyiségek

gardrób
11.28 m²
dolgozószoba
10.15 m²
hálószoba
10.15 m²
hálószoba
12.25 m²
közlekedő
9.9 m²
zuhanyzó
3.12 m²
fürdőszoba-wc
6.65 m²
háztartási helyiség
5 m²
wc-kézmosó
2 m²
előszoba
5 m²
nappali-étkező
33.84 m²
konyha
10.56 m²
garázs
37.2 m²
terasz
14.1 m²
Plébán László
Plébán László

Hitelszakértő

Irodánk kínálatából - Debrecen - Hatvan utca

for sale family house

Index image
data_sheet.details.realestate.section.main.otthonstart_flag.label
37

for sale apartment

Index image
18

eladó családi ház

Index image
Elérhető Otthon Start hitellel
14

eladó lakás

Index image
Elérhető Otthon Start hitellel
12

eladó családi ház

Index image
Elérhető Otthon Start hitellel
10

eladó újépítésű ikerház

Index image
6

eladó családi ház

Index image
32