Elérhető Otthon Start hitellel
Eladó újépítésű lakás, U0048868
Fonyód

82 300 000 Ft

220 000 €

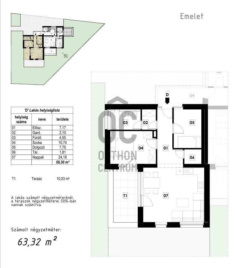
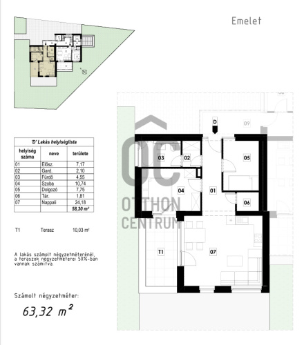
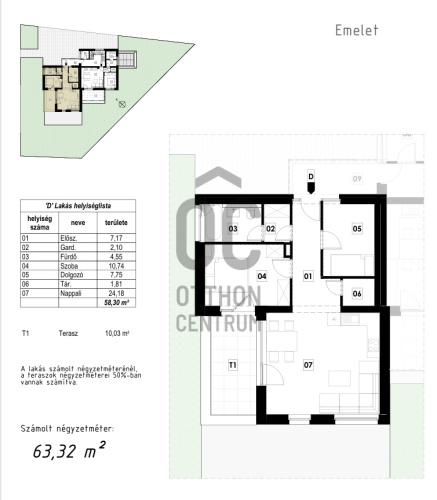
  • 63,3m²
  • 3 szoba
  • 1. emelet

Újépítésű lakás a fonyódi várhegy déli oldalán eladó!

A Panoráma Lakópark egyik emeleti 3 szobás lakását kínáljuk megvételre.
A délnyugati tájolású lakás nagy terasszal, zöldövezetre néző panorámával rendelkezik.
A 4 lakásos épület téglából készül, grafitos hőszigeteléssel a mai kor előírásainak megfelelően.
A fűtés korszerű hőszivattyúval lesz megoldva.
Az ingatlan átadására várhatóan 2026. I. negyedévében kerül sor.
Akár saját részre, akár befektetésnek kiválóan alkalmas.
Fonyód a Balaton déli partjának kilátója, csodás panorámával az északi part hegyeire.
Fejlett infrastruktúrája minden szolgáltatást elérhetővé tesz.
Kiváló közlekedése, kikötője miatt rendkívül népszerű üdülőhely és turistaközpont.
Jöjjön és szeressen bele ebbe a kivételes helyen fekvő ingatlanba.
Előzetes egyeztetéssel rugalmasan megtekinthető.

Regisztrációs szám

U0048868

Az ingatlan adatai

Értékesités
eladó
Jogi státusz
új
Jelleg
lakás
Építési mód
tégla
Méret
63,3 m²
Bruttó méret
70 m²
Terasz / erkély mérete
10 m²
Fűtés
hőszivattyú
Belmagasság
270 cm
Tájolás
Dél-nyugat
Panoráma
Zöldre néző panoráma
Lépcsőház típusa
zárt lépcsőház
Állapot
Kiváló
Homlokzat állapota
Kiváló
Lépcsőház állapota
Kiváló
Környék
csendes, jó közlekedés, zöld
Építés éve
2025
Fürdőszobák száma
1
Fekvés
kertre néző
Víz
Van
Villany
Van
Csatorna
Van
Vízpart távolsága
több mint 500 méterre

Helyiségek

nappali
24 m²
hálószoba
11 m²
dolgozószoba
8 m²
fürdőszoba
5 m²
Edve János
Edve János

Hitelszakértő

Irodánk kínálatából - Balatonmáriafürdő

for sale plot

Index image
9

for sale family house

Index image
data_sheet.details.realestate.section.main.otthonstart_flag.label
31

for sale apartment

Index image
data_sheet.details.realestate.section.main.otthonstart_flag.label
22

for sale family house

Index image
data_sheet.details.realestate.section.main.otthonstart_flag.label
35

for sale vacation home

Index image
28

for sale family house

Index image
data_sheet.details.realestate.section.main.otthonstart_flag.label
15

for sale apartment

Index image
24

for sale plot

Index image
23

for sale apartment

Index image
data_sheet.details.realestate.section.main.otthonstart_flag.label
11

for sale apartment

Index image
data_sheet.details.realestate.section.main.otthonstart_flag.label
10