187 000 000 Ft
490 000 €
- 122m²
- 6 szoba
Új építésű családi ház Rákosszentmihály szívében – kényelem, kiváló közlekedés!
Ha szeretnél kiszabadulni a belváros zajából, de nem akarsz órákat tölteni ingázással, akkor ez a rákosszentmihályi otthon tökéletes választás lehet számodra!
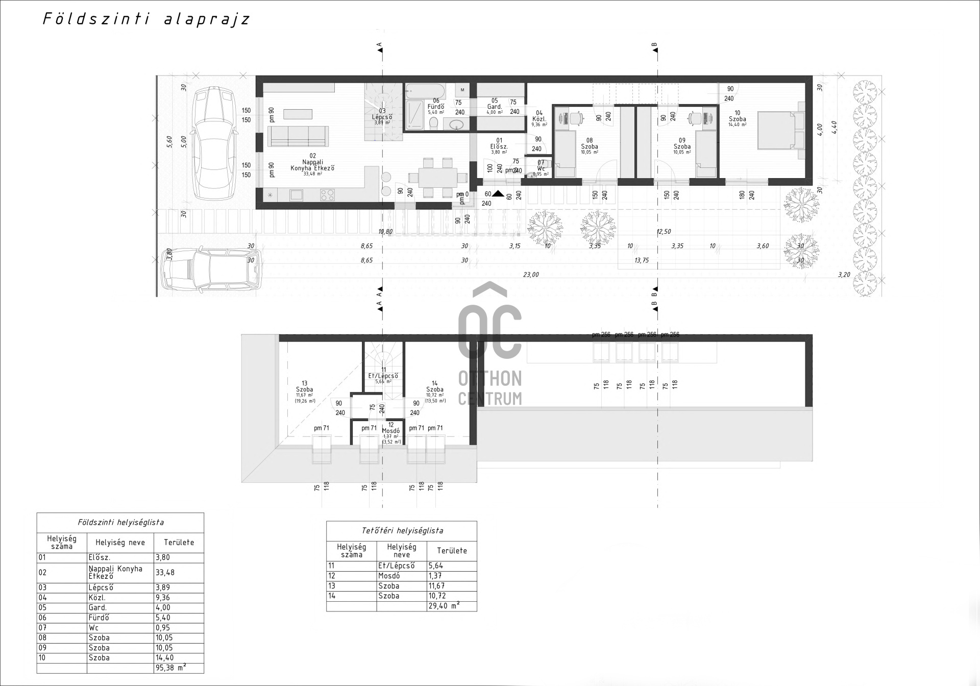
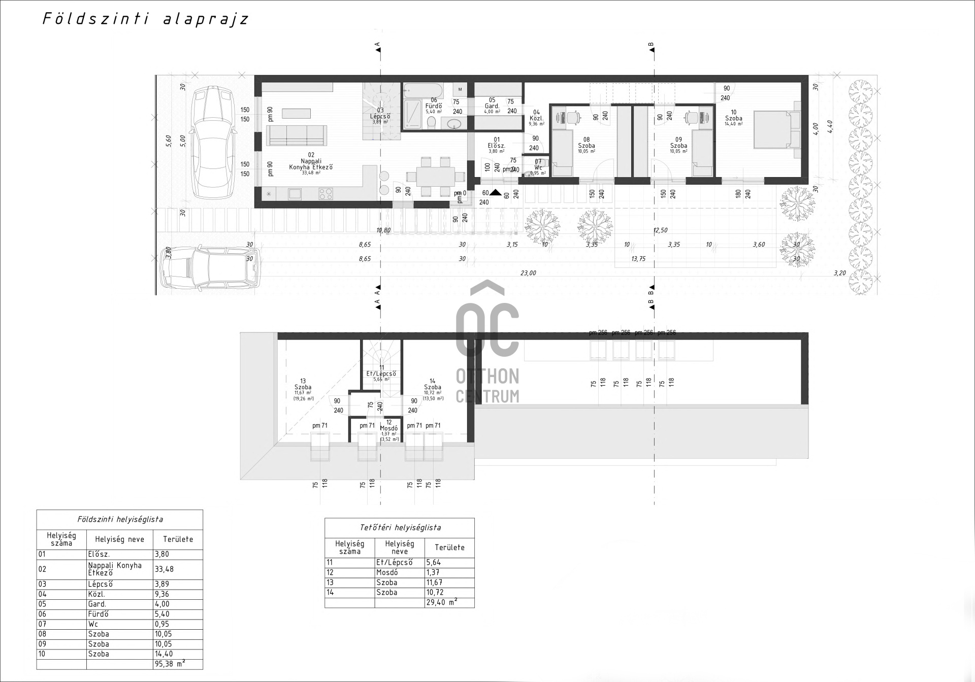
A XVI. kerület egyik legkedveltebb részén, a Füredi úti lakótelep és az Örs vezér tere közelében kínálok eladásra egy amerikai konyhás nappali + 5 szobás, 122 m2-es, belső kétszintes, új építésű lakást, amelyhez 300 m² saját kert és 2 felszíni parkolóhely is tartozik.
A modern 2 ház 484 m²-es telken épül, saját kerttel és 2 db parkolóval.
A fejlesztő különösen nagy hangsúlyt fektetett a magas műszaki minőségre és a fenntarthatóságra:
- Fan-coil fűtési és hűtési rendszer gondoskodik az egész éves komfortos hőmérsékletről.
- 3 rétegű, redőnyös nyílászárók és 15 cm-es dryvit hőszigetelés biztosítják a csendet és az energiatakarékosságot.
- A 2 kW-os NAPELEMRENDSZER és az A+++ energetikai besorolás pedig garantálják az alacsony rezsit és a környezettudatos működést.
Környék, amit imádni fogsz:
RÁKOSSZENTMIHÁLY egyre népszerűbb azok körében, akik a nyugodt, zöldövezeti életet keresik, mégis fontos számukra a gyors közlekedés és a városi kényelem.
Rendezett utcák, családias hangulat, parkok, játszóterek, iskolák, bevásárlási lehetőségek és az Őrs vezér tere mindössze néhány percre – ez mind hozzájárul ahhoz, hogy valódi otthonra lelj itt.
Ez a lakás ideális választás családoknak, pároknak vagy akár idősebbeknek, akik modern, energiatakarékos otthonra vágynak nyugodt, mégis kiválóan megközelíthető környezetben.
A XVI. kerület egyik legkedveltebb részén, a Füredi úti lakótelep és az Örs vezér tere közelében kínálok eladásra egy amerikai konyhás nappali + 5 szobás, 122 m2-es, belső kétszintes, új építésű lakást, amelyhez 300 m² saját kert és 2 felszíni parkolóhely is tartozik.
A modern 2 ház 484 m²-es telken épül, saját kerttel és 2 db parkolóval.
A fejlesztő különösen nagy hangsúlyt fektetett a magas műszaki minőségre és a fenntarthatóságra:
- Fan-coil fűtési és hűtési rendszer gondoskodik az egész éves komfortos hőmérsékletről.
- 3 rétegű, redőnyös nyílászárók és 15 cm-es dryvit hőszigetelés biztosítják a csendet és az energiatakarékosságot.
- A 2 kW-os NAPELEMRENDSZER és az A+++ energetikai besorolás pedig garantálják az alacsony rezsit és a környezettudatos működést.
Környék, amit imádni fogsz:
RÁKOSSZENTMIHÁLY egyre népszerűbb azok körében, akik a nyugodt, zöldövezeti életet keresik, mégis fontos számukra a gyors közlekedés és a városi kényelem.
Rendezett utcák, családias hangulat, parkok, játszóterek, iskolák, bevásárlási lehetőségek és az Őrs vezér tere mindössze néhány percre – ez mind hozzájárul ahhoz, hogy valódi otthonra lelj itt.
Ez a lakás ideális választás családoknak, pároknak vagy akár idősebbeknek, akik modern, energiatakarékos otthonra vágynak nyugodt, mégis kiválóan megközelíthető környezetben.
Regisztrációs szám
U0048838
Az ingatlan adatai
Értékesités
eladó
Jogi státusz
új
Jelleg
ház
Építési mód
tégla
Méret
122 m²
Bruttó méret
150 m²
Telek méret
484 m²
Terasz / erkély mérete
30 m²
Kert méret
500 m²
Fűtés
megújuló
Belmagasság
267 cm
Lakáson belüli szintszám
2
Tájolás
Dél-kelet
Állapot
Kiváló
Homlokzat állapota
Kiváló
Építés éve
2026
Fürdőszobák száma
2
Társaház kert
igen
Víz
Van
Villany
Van
Csatorna
Van
Helyiségek
nappali-étkező
34 m²
fürdőszoba-wc
5.5 m²
hálószoba
10 m²
hálószoba
10 m²
hálószoba
14 m²
gardrób
4 m²
előszoba
4 m²
hálószoba
12 m²
hálószoba
11 m²
előszoba
5.5 m²
mosdó
3.5 m²
Vitéz Kornél
Hitelszakértő