69 900 000 Ft
180 000 €
- 93m²
- 4 szoba






Sámsonkerti ikerházak foglalhatóak!
Képzeld el, hogy egy modern, új házban éled mindennapjaidat Sámsonkertben! Ez az ingatlan nemcsak egy otthon, hanem egy életstílus, amely tökéletesen illeszkedik a fiatal felnőttek igényeihez.
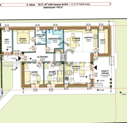
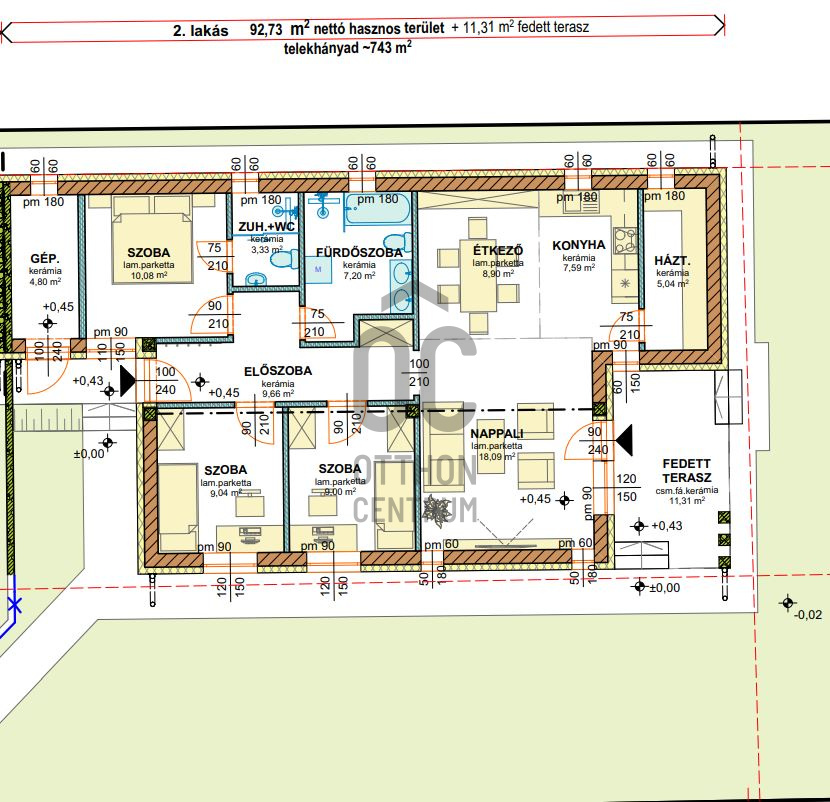
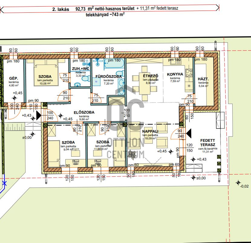
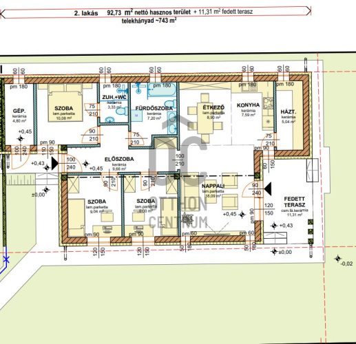
A 93 négyzetméteres alapterülettel rendelkező, kiváló állapotban lévő házban tágas nappali és 3 szoba és két fürdőszoba vár rád. Az amerikai konyhás nappali a középpontja a lakásnak, ahol barátaiddal és családoddal együtt élvezheted a közös pillanatokat. A 13 négyzetméteres terasz ideális helyszín a reggeli kávézáshoz vagy a nyári grillpartikhoz, miközben a gyönyörű panorámát csodálhatod. A ház fűtése gáz cirkó rendszerrel működik, ami gazdaságos és kényelmes megoldást kínál a hideg téli hónapokban, míg a klíma a nyári melegben biztosítja a kellemes hőmérsékletet.
A 700 négyzetméteres telek tökéletesen alkalmas kertkapcsolatos lakás kialakítására, így a szabadban eltöltött idő mindenki számára élvezetes lehet. Az ingatlan modern dizájnja és praktikus elrendezése lehetővé teszi, hogy a hétköznapokban is maximálisan kihasználhasd a teret. A környék csendes és biztonságos, ideális helyszín a fiatal felnőttek számára, akik értékelik a nyugodt, de mégis élénk városi életet. A közlekedési lehetőségek kiemelkedőek: a városközpont mindössze néhány percre található, így a mindennapi teendőid könnyedén megoldhatóak.
A tömegközlekedés is jól kiépített, így bármikor gyorsan elérheted Debrecent vagy a környező településeket. A közeli boltok, éttermek és szolgáltatások mind hozzájárulnak ahhoz, hogy minden szükséges dolog karnyújtásnyira legyen. Ez az ingatlan nemcsak egy otthon, hanem egy lehetőség is a jövőd építésére. Ha befektetési céllal keresel ingatlant, ez a modern ház tökéletes választás lehet, hiszen a környék folyamatosan fejlődik, és a kereslet egyre nő. Ne habozz, hiszen az ilyen lehetőségek gyorsan elkelnek! Kérlek, bátran keresd fel kérdéseiddel, hiszen itt vagyok, hogy segítsek neked a legjobb döntés meghozatalában!
A 93 négyzetméteres alapterülettel rendelkező, kiváló állapotban lévő házban tágas nappali és 3 szoba és két fürdőszoba vár rád. Az amerikai konyhás nappali a középpontja a lakásnak, ahol barátaiddal és családoddal együtt élvezheted a közös pillanatokat. A 13 négyzetméteres terasz ideális helyszín a reggeli kávézáshoz vagy a nyári grillpartikhoz, miközben a gyönyörű panorámát csodálhatod. A ház fűtése gáz cirkó rendszerrel működik, ami gazdaságos és kényelmes megoldást kínál a hideg téli hónapokban, míg a klíma a nyári melegben biztosítja a kellemes hőmérsékletet.
A 700 négyzetméteres telek tökéletesen alkalmas kertkapcsolatos lakás kialakítására, így a szabadban eltöltött idő mindenki számára élvezetes lehet. Az ingatlan modern dizájnja és praktikus elrendezése lehetővé teszi, hogy a hétköznapokban is maximálisan kihasználhasd a teret. A környék csendes és biztonságos, ideális helyszín a fiatal felnőttek számára, akik értékelik a nyugodt, de mégis élénk városi életet. A közlekedési lehetőségek kiemelkedőek: a városközpont mindössze néhány percre található, így a mindennapi teendőid könnyedén megoldhatóak.
A tömegközlekedés is jól kiépített, így bármikor gyorsan elérheted Debrecent vagy a környező településeket. A közeli boltok, éttermek és szolgáltatások mind hozzájárulnak ahhoz, hogy minden szükséges dolog karnyújtásnyira legyen. Ez az ingatlan nemcsak egy otthon, hanem egy lehetőség is a jövőd építésére. Ha befektetési céllal keresel ingatlant, ez a modern ház tökéletes választás lehet, hiszen a környék folyamatosan fejlődik, és a kereslet egyre nő. Ne habozz, hiszen az ilyen lehetőségek gyorsan elkelnek! Kérlek, bátran keresd fel kérdéseiddel, hiszen itt vagyok, hogy segítsek neked a legjobb döntés meghozatalában!
Regisztrációs szám
U0048817
Az ingatlan adatai
Értékesités
eladó
Jogi státusz
új
Jelleg
ház
Építési mód
tégla
Méret
93 m²
Bruttó méret
110 m²
Telek méret
700 m²
Terasz / erkély mérete
13 m²
Fűtés
Gáz cirkó
Belmagasság
270 cm
Tájolás
Dél-nyugat
Állapot
Kiváló
Homlokzat állapota
Kiváló
Környék
csendes
Építés éve
2026
Fürdőszobák száma
2
Villany
Van
Helyiségek
előszoba
9.66 m²
hálószoba
10.08 m²
hálószoba
9.04 m²
hálószoba
9 m²
nappali
18.09 m²
konyha-étkező
17 m²
kamra
5.04 m²
kazánház
4.8 m²
terasz
11.31 m²
fürdőszoba-wc
7.2 m²
zuhanyzó
3.33 m²

Czellér András
Hitelszakértő