Elérhető Otthon Start hitellel
Eladó újépítésű családi ház,
U0048611
Balatonszárszó
88 900 000 Ft
229 000 €
- 89,9m²
- 4 szoba
"Balatonszárszó" - Balaton déli partjának egyik utolsó romantikus kisvárosa, települése - egészen egyszerűen mesés.
A Balatonparttól mintegy 700m-re elhelyezkedő kínálunk eladásra egy minden elvárásnak megfelelő 3 lakóegységes sorházi lakások képében.
Tervezett műszaki átadás: 2026.08.15.
Műszaki Tartalom:
Alapozás:
A sávalap 90 cm mély és 40 cm széles, 1 sor 30 cm-es lábazati zsalukőből épül. A
szerelőbeton vastagsága 12 cm lesz.
Teherhordó falazat+tetőszerkezet:
Magnézium-oxid PIR SIP panelt használunk 18 cm-es PIR szigeteléssel, 5x10 cm-es KVH fa
szerkezetű válaszfalak készülnek, gyapot szigeteléssel. Az épületre előregyártott
szeglemezes tető kerül telepítésre.
Tetőfedés-bádogozás:
Az épületre Terrán tégla cserép kerül, színazonos bádog elemekkel.
Homlokzati hőszigetelés:
A lábazatra 5 cm vastag XPS szigetelés kerül, míg a homlokzaton 10 cm grafitos EPS
szigetelést alkalmazunk, 1,5 mm-es kapart vakolattal.
Homlokzati nyílászáró:
6 légkamrás, 3 rétegű üvegezésű nyílászárókat építünk be, úgy, hogy a hőszigetelési érték
0,6-0,8 között legyen. A nyílászárók kívül alumíniumból, belül fehér műanyag párkánnyal
készülnek. Redőny opcionálisan választható.
Épületgépészet:
A vízvezeték-szerelés 5 rétegű csövekkel történik az aljzatban és az előtét fal mögött,
csőroppantással és a szükséges idomokkal. A szennyvízcsövek gumigyűrűs tokos rendszert
alkalmaznak, a WC 110 mm-es, míg a mosdó, kád és egyéb lefolyók 50 mm-es átmérővel
készülnek.
Mosógép és mosogatógép számára falba szerelt vízvételi és vízelvezetési lehetőséget
biztosítunk. A szaniterek a nettó 400.000 Ft értékig választhatók. Az ár az épített
zuhanyfülke kivitelezését is tartalmazza.
A melegvizet és a padlófűtést monoblokkos hőszivattyú biztosítja, 2 db Wifi-s GREE okos
klímákkal.
Villanyszerelés:
Vezeték nélküli villanykapcsolót alkalmazunk, amely bárhova elhelyezhető és később is
áthelyezhető. Schneider Asfora típusú dugaljakat telepítünk.
A villamos alapszerelés helyiségenként 1 kapcsolót, 1 lámpa kiállást és 3 konnektort
tartalmaz. A konyhai gépek (hűtő, mikró, sütő, mosogatógép, páraelszívó, főzőlap) alap
kiállásai biztosítva vannak.
A villamos betáplálás a mérőhelytől 1x15 m távolságig van biztosítva. A födém szerkezetén
csőben, MBCU kábelekkel történik a vezetékek elhelyezése, az oldalfalon és az előtét fal
mögött.
Gipszkartonozás:
A mennyezetre 1 réteg 15 mm-es tűzgátló gipszkarton kerül.
Könnyűszerkezetes házak esetében a főfalak és válaszfalak 1 réteg 12,5 mm-es tűzgátló
gipszkarton borítást kapnak. A vizes helyiségben impregnált karton kerül felhelyezésre.
A födémre hőtükör fólia kerül rögzítésre.
Beltéri ajtók:
Utólag szerelhető beltéri ajtókat építünk be. Nettó 80.000 Ft/ajtó értékben. Drágább beltéri
ajtók is választhatóak, felár ellenében.
Festés:
A gipszkarton felületeken glettelés történik, pozitív éleken élvédőt, negatív éleken pedig
üvegszövet hálót alkalmazunk.
A kész falfelületet fehér színnel festjük.
Burkolás:
A hidegburkolat ára nettó 5500 Ft/nm-ig választható.
A WC és fürdőszoba falai mennyezetig burkolva.
Laminált padló alátétfóliával, nettó 5500 Ft/nm-ig választható.
Szegélyek, sarokelemek és toldók nettó 1200 Ft/nm-ig választhatóak.
Ezeken felül műszaki tartalmunk lakásonként 1,5 kW napelem telepítést
is tartalmaz.
A vételáron felül további 5 Mft-ért kötelezően megvásárolandó, elektromos töltéshez előkészített szabad felszíni beálló.
Felmerülő kérdések illetve megtekintés esetén állok rendelkezésére.
A Balatonparttól mintegy 700m-re elhelyezkedő kínálunk eladásra egy minden elvárásnak megfelelő 3 lakóegységes sorházi lakások képében.
Tervezett műszaki átadás: 2026.08.15.
Műszaki Tartalom:
Alapozás:
A sávalap 90 cm mély és 40 cm széles, 1 sor 30 cm-es lábazati zsalukőből épül. A
szerelőbeton vastagsága 12 cm lesz.
Teherhordó falazat+tetőszerkezet:
Magnézium-oxid PIR SIP panelt használunk 18 cm-es PIR szigeteléssel, 5x10 cm-es KVH fa
szerkezetű válaszfalak készülnek, gyapot szigeteléssel. Az épületre előregyártott
szeglemezes tető kerül telepítésre.
Tetőfedés-bádogozás:
Az épületre Terrán tégla cserép kerül, színazonos bádog elemekkel.
Homlokzati hőszigetelés:
A lábazatra 5 cm vastag XPS szigetelés kerül, míg a homlokzaton 10 cm grafitos EPS
szigetelést alkalmazunk, 1,5 mm-es kapart vakolattal.
Homlokzati nyílászáró:
6 légkamrás, 3 rétegű üvegezésű nyílászárókat építünk be, úgy, hogy a hőszigetelési érték
0,6-0,8 között legyen. A nyílászárók kívül alumíniumból, belül fehér műanyag párkánnyal
készülnek. Redőny opcionálisan választható.
Épületgépészet:
A vízvezeték-szerelés 5 rétegű csövekkel történik az aljzatban és az előtét fal mögött,
csőroppantással és a szükséges idomokkal. A szennyvízcsövek gumigyűrűs tokos rendszert
alkalmaznak, a WC 110 mm-es, míg a mosdó, kád és egyéb lefolyók 50 mm-es átmérővel
készülnek.
Mosógép és mosogatógép számára falba szerelt vízvételi és vízelvezetési lehetőséget
biztosítunk. A szaniterek a nettó 400.000 Ft értékig választhatók. Az ár az épített
zuhanyfülke kivitelezését is tartalmazza.
A melegvizet és a padlófűtést monoblokkos hőszivattyú biztosítja, 2 db Wifi-s GREE okos
klímákkal.
Villanyszerelés:
Vezeték nélküli villanykapcsolót alkalmazunk, amely bárhova elhelyezhető és később is
áthelyezhető. Schneider Asfora típusú dugaljakat telepítünk.
A villamos alapszerelés helyiségenként 1 kapcsolót, 1 lámpa kiállást és 3 konnektort
tartalmaz. A konyhai gépek (hűtő, mikró, sütő, mosogatógép, páraelszívó, főzőlap) alap
kiállásai biztosítva vannak.
A villamos betáplálás a mérőhelytől 1x15 m távolságig van biztosítva. A födém szerkezetén
csőben, MBCU kábelekkel történik a vezetékek elhelyezése, az oldalfalon és az előtét fal
mögött.
Gipszkartonozás:
A mennyezetre 1 réteg 15 mm-es tűzgátló gipszkarton kerül.
Könnyűszerkezetes házak esetében a főfalak és válaszfalak 1 réteg 12,5 mm-es tűzgátló
gipszkarton borítást kapnak. A vizes helyiségben impregnált karton kerül felhelyezésre.
A födémre hőtükör fólia kerül rögzítésre.
Beltéri ajtók:
Utólag szerelhető beltéri ajtókat építünk be. Nettó 80.000 Ft/ajtó értékben. Drágább beltéri
ajtók is választhatóak, felár ellenében.
Festés:
A gipszkarton felületeken glettelés történik, pozitív éleken élvédőt, negatív éleken pedig
üvegszövet hálót alkalmazunk.
A kész falfelületet fehér színnel festjük.
Burkolás:
A hidegburkolat ára nettó 5500 Ft/nm-ig választható.
A WC és fürdőszoba falai mennyezetig burkolva.
Laminált padló alátétfóliával, nettó 5500 Ft/nm-ig választható.
Szegélyek, sarokelemek és toldók nettó 1200 Ft/nm-ig választhatóak.
Ezeken felül műszaki tartalmunk lakásonként 1,5 kW napelem telepítést
is tartalmaz.
A vételáron felül további 5 Mft-ért kötelezően megvásárolandó, elektromos töltéshez előkészített szabad felszíni beálló.
Felmerülő kérdések illetve megtekintés esetén állok rendelkezésére.
Regisztrációs szám
U0048611
Az ingatlan adatai
Értékesités
eladó
Jogi státusz
új
Jelleg
ház
Építési mód
tégla
Méret
89,9 m²
Bruttó méret
119 m²
Telek méret
400 m²
Terasz / erkély mérete
29,5 m²
Kert méret
300 m²
Fűtés
hőszivattyú
Belmagasság
270 cm
Lakáson belüli szintszám
2
Tájolás
Dél
Állapot
Kiváló
Homlokzat állapota
Kiváló
Környék
jó közlekedés, zöld, központi
Építés éve
2025
Fürdőszobák száma
2
Társaház kert
igen
Víz
Van
Villany
Van
Csatorna
Van
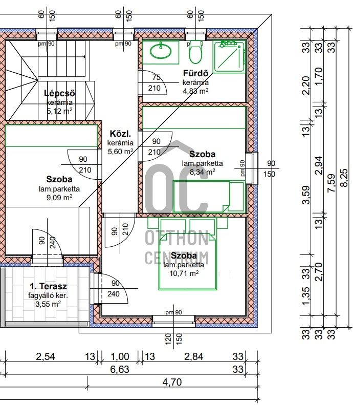
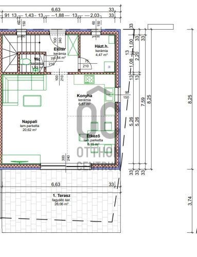
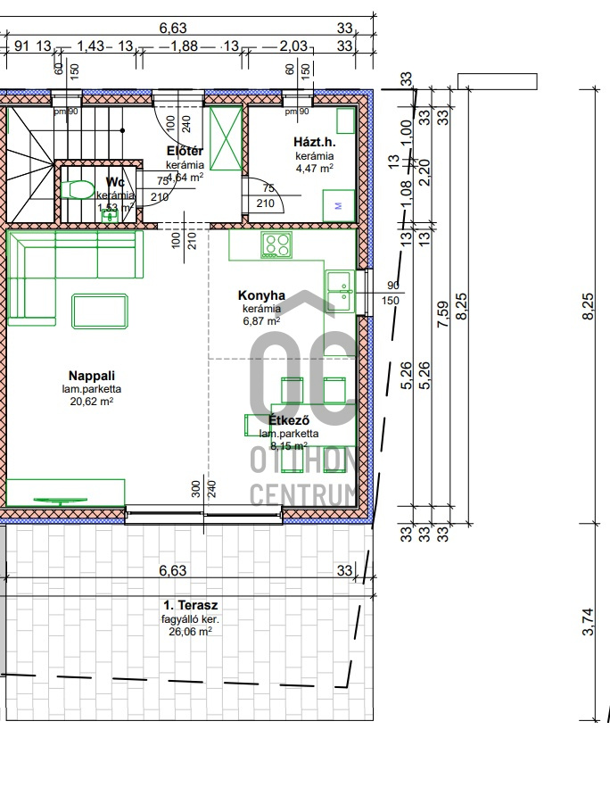
Helyiségek
előszoba
4.64 m²
fürdőszoba
4.47 m²
wc-kézmosó
1.53 m²
nappali-konyha
36 m²
lépcsőház
5.12 m²
közlekedő
5.6 m²
fürdőszoba-wc
4.83 m²
szoba
8.34 m²
szoba
10.71 m²
szoba
9.09 m²