Elérhető Otthon Start hitellel
Eladó újépítésű családi ház,
U0048595
Inárcs
105 000 000 Ft
268 000 €
- 118,2m²
- 4 szoba










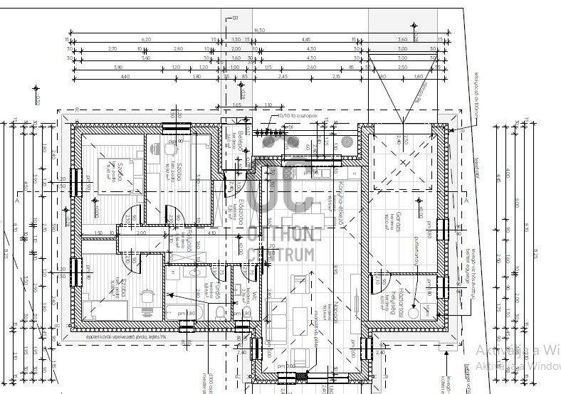
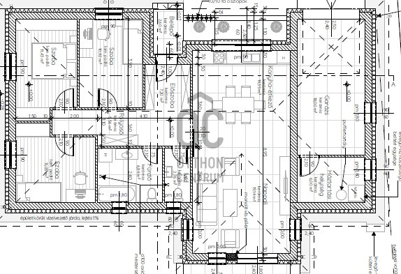
Inárcson újépítésű nappali + 3 szobás önnálló családi ház ELADÓ!
Inárcson újépítésű 100,25 m2 lakótérrel + 18 m2 garázzsal épülő
nappali + 3 hálószobás családi ház szép nagy, 914 m2-es saroktelekkel, eladó!
Főbb paraméterek:
- fűtés és melegvíz ellátás 10-12 kw-os Fischer típusú hőszivattyúval
- főfalak 30-NF kerámia tégla, válaszfalak 10 cm vastag kerámiatégla
- hőszigetelés: a lábazat 8 cm vtg. XPS hőszigetelést kap, a homlokzati fal 12 cm vtg. grafitos EPS dryvit hőszigeteléssel készül
- szeglemezelt tetőszerkezet
- tetőfedés mediterrán stílusú minőségi betoncseréppel
- komplett riasztórendszer az egész házban
- 1 db klíma a nappaliban és 1db klíma szabadon választható elhelyzéssel
- ablakok: 5 légkamrás 3 rétegű üvegezésű műanyag, kívül barna, belül fehér színben, bukó-nyíló vasalattal, redőnnyel
- az ingatlan 3x20A betáppal 1x25 amper, H-tarifás órával kerül átadásra
További információért kérem keressen!
nappali + 3 hálószobás családi ház szép nagy, 914 m2-es saroktelekkel, eladó!
Főbb paraméterek:
- fűtés és melegvíz ellátás 10-12 kw-os Fischer típusú hőszivattyúval
- főfalak 30-NF kerámia tégla, válaszfalak 10 cm vastag kerámiatégla
- hőszigetelés: a lábazat 8 cm vtg. XPS hőszigetelést kap, a homlokzati fal 12 cm vtg. grafitos EPS dryvit hőszigeteléssel készül
- szeglemezelt tetőszerkezet
- tetőfedés mediterrán stílusú minőségi betoncseréppel
- komplett riasztórendszer az egész házban
- 1 db klíma a nappaliban és 1db klíma szabadon választható elhelyzéssel
- ablakok: 5 légkamrás 3 rétegű üvegezésű műanyag, kívül barna, belül fehér színben, bukó-nyíló vasalattal, redőnnyel
- az ingatlan 3x20A betáppal 1x25 amper, H-tarifás órával kerül átadásra
További információért kérem keressen!
Regisztrációs szám
U0048595
Az ingatlan adatai
Értékesités
eladó
Jogi státusz
új
Jelleg
ház
Építési mód
tégla
Méret
118,2 m²
Bruttó méret
136,2 m²
Telek méret
914 m²
Terasz / erkély mérete
15,4 m²
Fűtés
hőszivattyú
Belmagasság
268 cm
Tájolás
Dél-nyugat
Állapot
Kiváló
Homlokzat állapota
Kiváló
Környék
csendes
Építés éve
2025
Fürdőszobák száma
1
Garázs
Benne van az árban
Garázs férőhely
1
Víz
Van
Villany
Van
Csatorna
Van
Helyiségek
előszoba
7.2 m²
szoba
10.92 m²
szoba
11.43 m²
szoba
11.05 m²
közlekedő
5.56 m²
háztartási helyiség
6 m²
wc-kézmosó
2.76 m²
fürdőszoba
6.84 m²
garázs
18 m²
nappali-konyha
38.49 m²

Joó Krisztina
Hitelszakértő