164 900 000 Ft
432 000 €
- 123,1m²
- 5 szoba
Új építésű, egy szintes családi ház csendes, mégis jól megközelíthető környéken.
Lokáció:
Szentendrén, Pismány aljában, zsákutcában, tömegközlekedéssel is könnyen elérhető helyen található az ingatlan. Aszfaltúton megközelíthető, biztonságos, csendes környék.
Az ingatlan:
- új építésű ingatlan
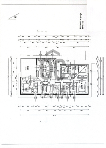
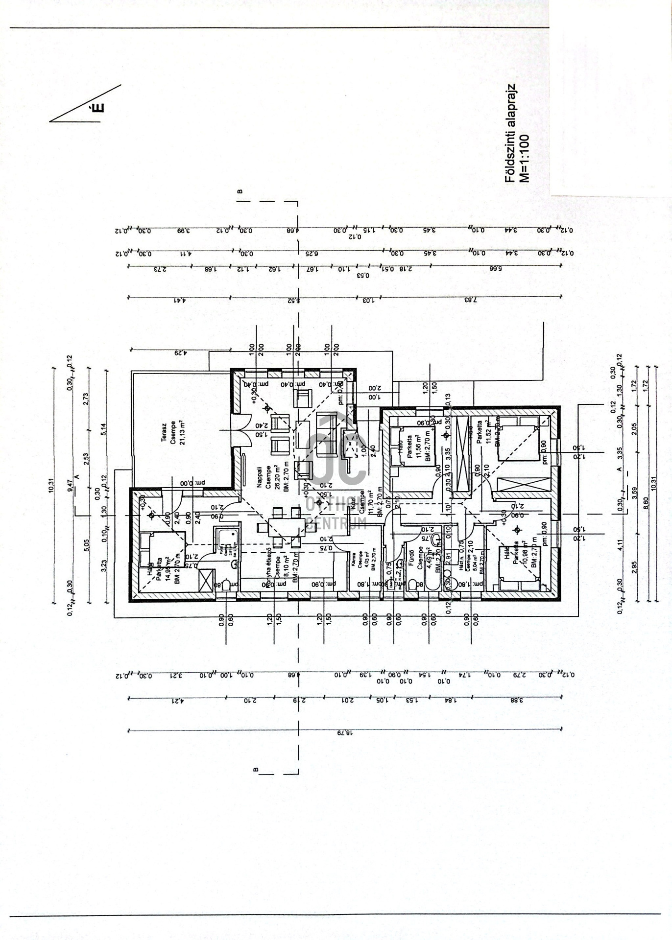
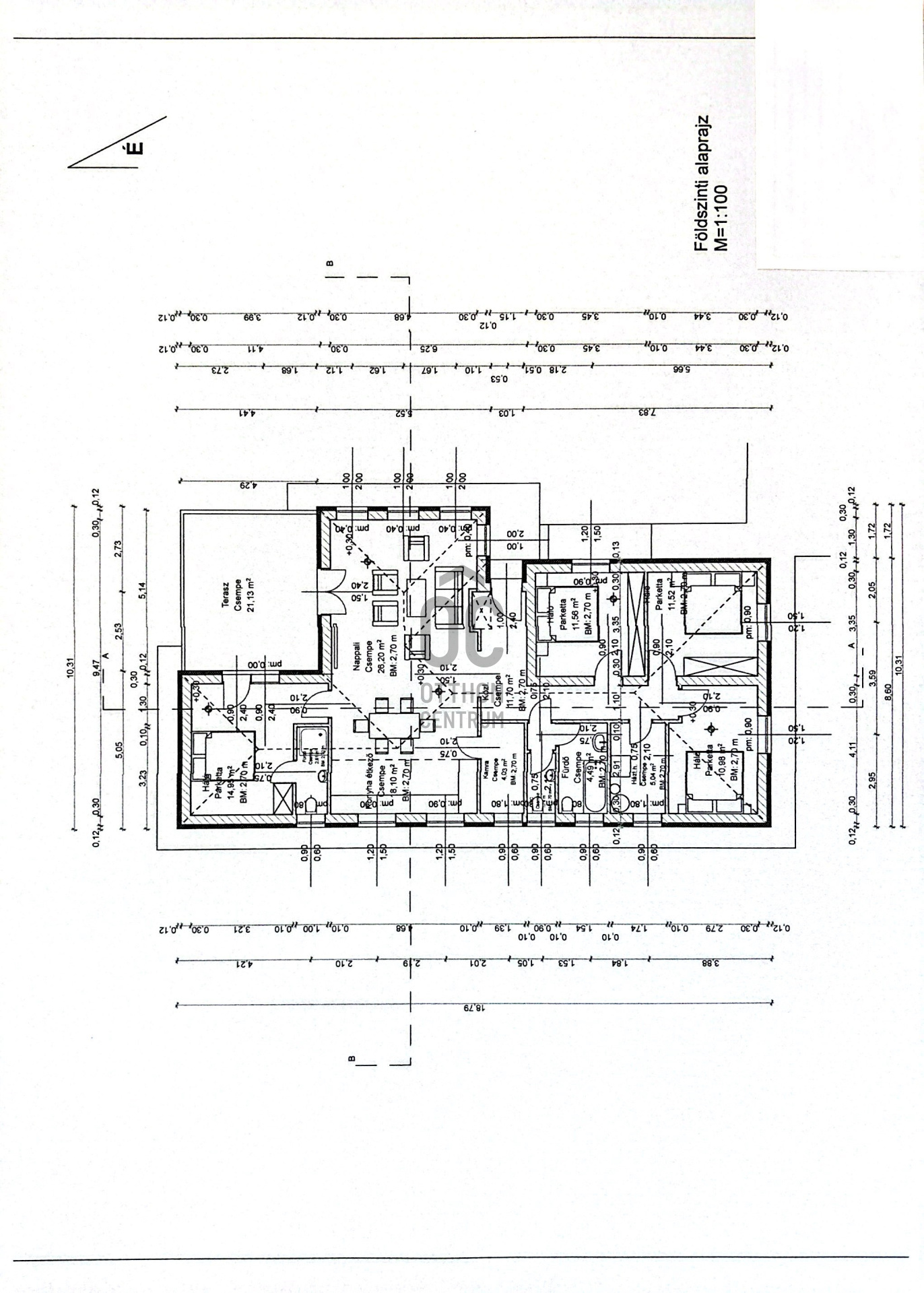
- egy szinten található minden helyiség
- 123 nm - a nappalin kívül 4 szobát foglal magába
- 21 nm-es kényelmes terasz kerül kialakításra
- 2 fürdőszoba
Műszaki paraméterek:
- 30 cm-es Porotherm téglafal
- 12 cm-es homlokzati EPS szigetelés
- válaszfalak 10 cm-es téglából
- kerámiacserép tetőfedés
- 3 rétegű hőszigetelt műanyag ablak
- fűtési rendszer: hőszivattyú
Az ingatlan kiváló adottsággal rendelkezik, hiszen a nappali kívül 4 szobát foglal magában, így bőven van hely minden családtag számára, legyen szó akár gyerekekről, vendégekről vagy otthoni munkavégzésről. A tágas nappali világos és barátságos, ideális helyszín a családi összejövetelekhez vagy baráti találkozókhoz.
A modern, hőszivattyús fűtésnek köszönhetően az ingatlan energiatakarékos, így a téli hónapokban is kellemes hőmérsékletet biztosít. A két fürdőszoba különösen praktikus a nagyobb családok számára. A 21 négyzetméteres terasz pedig remek lehetőséget biztosít a szabadtéri pihenésre.
A környék biztonságos, csendes.
A közlekedés is kiváló, hiszen a város központja könnyen elérhető autóval, de a tömegközlekedési lehetőségek is rendelkezésre állnak, így a mindennapi ingázás sem okoz problémát.
Az építkezés elkezdődött, a főfalak és a koszorú elkészült. Most még lehetőség van a belső válaszfalak mozgatására .
Várható befejezés 2026.október
Ha bármilyen kérdésed van az ingatlannal vagy a vásárlási folyamattal kapcsolatban, ne habozz megkeresni minket!
Bizalommal állunk rendelkezésedre, hogy segítsünk megtalálni álmaid otthonát.
#szentendre #családiház #eladóingatlan
Lokáció:
Szentendrén, Pismány aljában, zsákutcában, tömegközlekedéssel is könnyen elérhető helyen található az ingatlan. Aszfaltúton megközelíthető, biztonságos, csendes környék.
Az ingatlan:
- új építésű ingatlan
- egy szinten található minden helyiség
- 123 nm - a nappalin kívül 4 szobát foglal magába
- 21 nm-es kényelmes terasz kerül kialakításra
- 2 fürdőszoba
Műszaki paraméterek:
- 30 cm-es Porotherm téglafal
- 12 cm-es homlokzati EPS szigetelés
- válaszfalak 10 cm-es téglából
- kerámiacserép tetőfedés
- 3 rétegű hőszigetelt műanyag ablak
- fűtési rendszer: hőszivattyú
Az ingatlan kiváló adottsággal rendelkezik, hiszen a nappali kívül 4 szobát foglal magában, így bőven van hely minden családtag számára, legyen szó akár gyerekekről, vendégekről vagy otthoni munkavégzésről. A tágas nappali világos és barátságos, ideális helyszín a családi összejövetelekhez vagy baráti találkozókhoz.
A modern, hőszivattyús fűtésnek köszönhetően az ingatlan energiatakarékos, így a téli hónapokban is kellemes hőmérsékletet biztosít. A két fürdőszoba különösen praktikus a nagyobb családok számára. A 21 négyzetméteres terasz pedig remek lehetőséget biztosít a szabadtéri pihenésre.
A környék biztonságos, csendes.
A közlekedés is kiváló, hiszen a város központja könnyen elérhető autóval, de a tömegközlekedési lehetőségek is rendelkezésre állnak, így a mindennapi ingázás sem okoz problémát.
Az építkezés elkezdődött, a főfalak és a koszorú elkészült. Most még lehetőség van a belső válaszfalak mozgatására .
Várható befejezés 2026.október
Ha bármilyen kérdésed van az ingatlannal vagy a vásárlási folyamattal kapcsolatban, ne habozz megkeresni minket!
Bizalommal állunk rendelkezésedre, hogy segítsünk megtalálni álmaid otthonát.
#szentendre #családiház #eladóingatlan
Regisztrációs szám
U0048540
Az ingatlan adatai
Értékesités
eladó
Jogi státusz
új
Jelleg
ház
Építési mód
tégla
Méret
123,1 m²
Bruttó méret
154,7 m²
Telek méret
535 m²
Terasz / erkély mérete
21,1 m²
Fűtés
hőszivattyú
Belmagasság
260 cm
Tájolás
Kelet
Állapot
Kiváló
Homlokzat állapota
Kiváló
Építés éve
2025
Fürdőszobák száma
2
Víz
Van
Villany
Van
Csatorna
Van
Helyiségek
hálószoba
14.95 m²
hálószoba
11.56 m²
hálószoba
11.52 m²
hálószoba
10.98 m²
nappali
26.2 m²
konyha-étkező
18.1 m²
fürdőszoba
2.81 m²
fürdőszoba
4.49 m²
kamra
4.03 m²
közlekedő
11.7 m²
háztartási helyiség
5.04 m²
Korcsog Melinda
Hitelszakértő