Elérhető Otthon Start hitellel
Eladó családi ház,
H510521
Budakalász
56 900 000 Ft
149 000 €
- 47,5m²
- 2 szoba
Budakalász központjában - kis ház, nagy lehetőség!
Budakalász történelmi központjában kínáljuk megvételre ezt a különálló, teljesen önálló kis házat, amely tökéletes választás lehet irodának, mini otthonnak, rendelőnek vagy kiadható lakrésznek.
A ház saját bejárattal rendelkezik, intim előkerten át közelíthető meg, így a használata teljes mértékben szeparált, saját autó beálló tartozik hozzá.
Főbb jellemzők:
- Önálló épület, külön helyrajzi lehetőséggel
- Gázfűtés + padlófűtés – gyors, hatékony, kedvező üzemeltetés
- Rendezett, falusias hangulatú utcafront
- Világos, jól használható helyiségek
- Kiváló infrastruktúra: minden pár percen belül gyalogosan
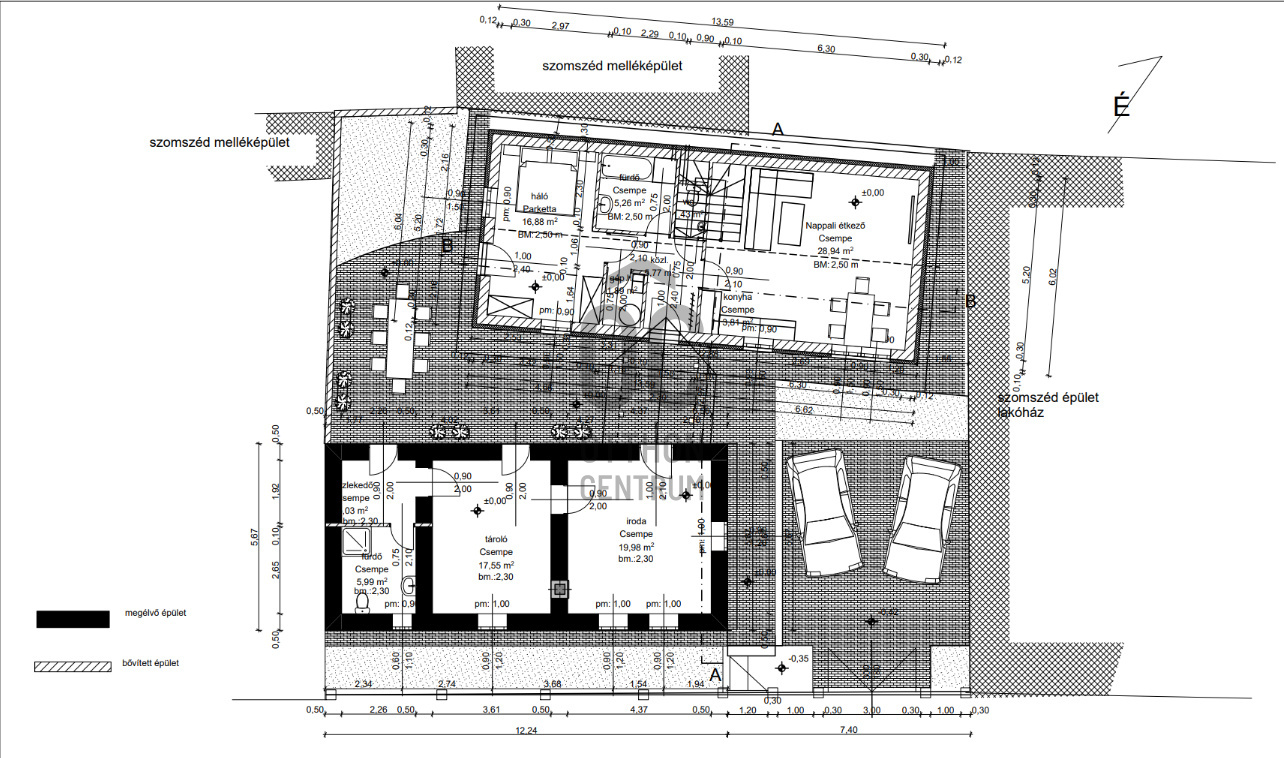
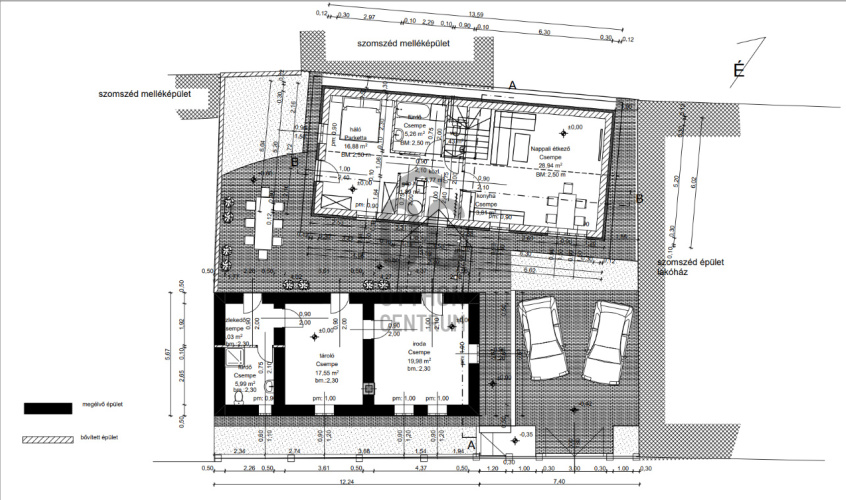
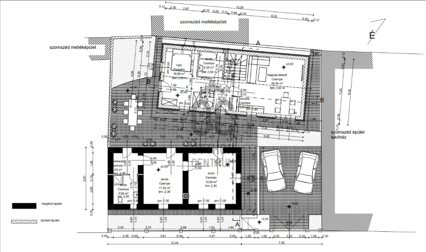
Helyiségek
- Iroda / nappali
- Tároló (külön helyiségként is használható)
- Fürdőszoba
- Közlekedő
Összes hasznos alapterület: ~47,55 m²
Kinek ideális?
- vállalkozóknak, ügyvédeknek, tanácsadóknak → kiváló irodahelyszín
- befektetőknek → könnyen kiadható
- pároknak, egyedülállóknak → alacsony fenntartási költségek
- rendelőnek vagy szolgáltató térnek
Budakalász központi része nem véletlenül ennyire keresett: pár perces sétával elérhető üzletek, óvoda, iskola, buszmegálló, orvosi rendelő, parkok és a Duna-part is.
A környék biztonságos és barátságos, tökéletes választás annak, aki értékeli a kisvárosi hangulatot a főváros közelségével.
Ez az ingatlan gyorsan elkelő kategória – kis méret, alacsony fenntartás, tökéletes elhelyezkedés. Ha szeretné megtekinteni vagy kérdése van, hívjon most, amíg még elérhető!
#BudakalászÚjépítésű #PrémiumIngatlan #KözpontiElhelyezkedés #MinőségiKivitelezés #ModernOtthon #EladóIngatlan #OCambyViktóriaÉberl
A ház saját bejárattal rendelkezik, intim előkerten át közelíthető meg, így a használata teljes mértékben szeparált, saját autó beálló tartozik hozzá.
Főbb jellemzők:
- Önálló épület, külön helyrajzi lehetőséggel
- Gázfűtés + padlófűtés – gyors, hatékony, kedvező üzemeltetés
- Rendezett, falusias hangulatú utcafront
- Világos, jól használható helyiségek
- Kiváló infrastruktúra: minden pár percen belül gyalogosan
Helyiségek
- Iroda / nappali
- Tároló (külön helyiségként is használható)
- Fürdőszoba
- Közlekedő
Összes hasznos alapterület: ~47,55 m²
Kinek ideális?
- vállalkozóknak, ügyvédeknek, tanácsadóknak → kiváló irodahelyszín
- befektetőknek → könnyen kiadható
- pároknak, egyedülállóknak → alacsony fenntartási költségek
- rendelőnek vagy szolgáltató térnek
Budakalász központi része nem véletlenül ennyire keresett: pár perces sétával elérhető üzletek, óvoda, iskola, buszmegálló, orvosi rendelő, parkok és a Duna-part is.
A környék biztonságos és barátságos, tökéletes választás annak, aki értékeli a kisvárosi hangulatot a főváros közelségével.
Ez az ingatlan gyorsan elkelő kategória – kis méret, alacsony fenntartás, tökéletes elhelyezkedés. Ha szeretné megtekinteni vagy kérdése van, hívjon most, amíg még elérhető!
#BudakalászÚjépítésű #PrémiumIngatlan #KözpontiElhelyezkedés #MinőségiKivitelezés #ModernOtthon #EladóIngatlan #OCambyViktóriaÉberl
Regisztrációs szám
H510521
Az ingatlan adatai
Értékesités
eladó
Jogi státusz
használt
Jelleg
ház
Építési mód
vegyesfalazatú
Méret
47,5 m²
Bruttó méret
50 m²
Telek méret
138 m²
Fűtés
Gáz cirkó
Belmagasság
235 cm
Tájolás
Kelet
Panoráma
városi panoráma, Egyéb
Állapot
Kiváló
Homlokzat állapota
Kiváló
Környék
jó közlekedés, központi
Építés éve
1900
Fürdőszobák száma
1
Víz
Van
Gáz
Van
Villany
Van
Csatorna
Van
Vízpart távolsága
több mint 500 méterre
Helyiségek
iroda
19.98 m²
tároló
17.55 m²
közlekedő
4.03 m²
fürdőszoba-wc
5.99 m²
Korcsog Melinda
Hitelszakértő