Eladó újépítésű lakás, U0048463
Budapest XVI. kerület, Rákosszentmihály

154 000 000 Ft

397 000 €

  • 141m²
  • 4 szoba
  • 2. emelet
Kiemelt megbízás

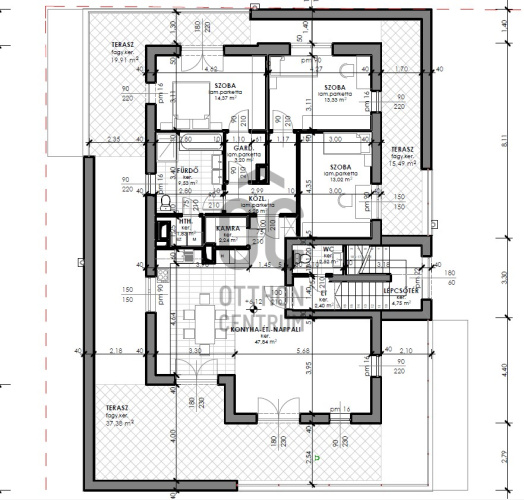
XVI kerület közkedvelt, Zuglóhoz közeli részén eladó új építésű lakások! Egymás mellett épül 2db öt lakásos társasház, egy zöld övezeti új építésű modern környezetben. Ez a penthouse lakás az A épület második emeletén található, összesen négy szobás, óriási tetőteraszokkal rendelkező és panorámás, ez ritkaságnak számít. Ezen az emeleten csak ez az egy lakás van.

A lakásokhoz külön vásárolható garázsbeálló tárolóval, amiknek az együttes ára 8,5 millió forint. Igény esetén még felszíni, nyitott beálló vásárlására is van lehetőség, ennek ára 4 millió forint.

Főbb paraméterek:
- tégla építés
- modern, műanyag 3 rétegű nyílászárók
- hőszivattyús fűtés
- választható burkolatok, szaniterek

A házak 2026 IV. negyedévére készülnek el, nagy előny, hogy a vevő a saját ízlése és igénye szerint alakíthatja ki új otthonát.

Részletesebb információkért, részletes műszaki tájékoztatásért keressen bizalommal!

Regisztrációs szám

U0048463

Az ingatlan adatai

Értékesités
eladó
Jogi státusz
új
Jelleg
lakás
Építési mód
tégla
Méret
141 m²
Bruttó méret
189 m²
Terasz / erkély mérete
70 m²
Fűtés
hőszivattyú
Belmagasság
265 cm
Lakáson belüli szintszám
1
Tájolás
Dél
Lépcsőház típusa
zárt lépcsőház
Állapot
Kiváló
Homlokzat állapota
Kiváló
Lépcsőház állapota
Kiváló
Építés éve
2026
Fürdőszobák száma
1
Fekvés
kertre néző
Garázs
Külön vásárolható
Víz
Van
Gáz
Utcán
Villany
Van
Csatorna
Van

Helyiségek

nappali-konyha
47.84 m²
szoba
14.37 m²
szoba
13.33 m²
szoba
13.02 m²
gardrób
3.2 m²
fürdőszoba-wc
9.53 m²
közlekedő
6.28 m²
kamra
2.24 m²
háztartási helyiség
1.83 m²
wc
2.52 m²
tetőterasz
70 m²
Pomaházi Pál
Pomaházi Pál

Hitelszakértő

Irodánk kínálatából - XVI. kerület - Etelköz utca 2-4.

for sale family house

Index image
58

for sale family house

Index image
data_sheet.details.realestate.section.main.otthonstart_flag.label
21

for rent row house

Index image
22

for sale apartment

Index image
data_sheet.details.realestate.section.main.otthonstart_flag.label
21

for sale new construction apartment

Index image
data_sheet.details.realestate.section.main.otthonstart_flag.label
5

for sale family house

Index image
data_sheet.details.realestate.section.main.otthonstart_flag.label
27

for sale semi-detached house

Index image
32

for sale panel apartment

Index image
data_sheet.details.realestate.section.main.otthonstart_flag.label
13