Eladó újépítésű lakás, U0048451
Budapest XVI. kerület, Rákosszentmihály

146 000 000 Ft

376 000 €

  • 119,3m²
  • 4 szoba
  • földszint
Kiemelt megbízás

XVI kerület közkedvelt, Zuglóhoz közeli részén eladó új építésű lakások! Egymás mellett épül 2db öt lakásos társasház, egy zöld övezeti új építésű modern környezetben. Ez a lakás az A épület földszintjén található, négy szobás, kertkapcsolatos (225m2) ingatlan, ami ritkaságnak számít.

A lakásokhoz külön vásárolható garázsbeálló tárolóval, amiknek az együttes ára 8,5 millió forint. Igény esetén még felszíni, nyitott beálló vásárlására is van lehetőség, ennek ára 4 millió forint.

Főbb paraméterek:
- tégla építés
- modern, műanyag 3 rétegű nyílászárók
- hőszivattyús fűtés
- választható burkolatok, szaniterek

A házak 2026 IV. negyedévére készülnek el, nagy előny, hogy a vevő a saját ízlése és igénye szerint alakíthatja ki új otthonát.

Részletesebb információkért, részletes műszaki tájékoztatásért keressen bizalommal!

Regisztrációs szám

U0048451

Az ingatlan adatai

Értékesités
eladó
Jogi státusz
új
Jelleg
lakás
Építési mód
tégla
Méret
119,3 m²
Bruttó méret
132,5 m²
Terasz / erkély mérete
26,4 m²
Kert méret
225 m²
Fűtés
hőszivattyú
Belmagasság
265 cm
Lakáson belüli szintszám
1
Tájolás
Észak-kelet
Lépcsőház típusa
zárt lépcsőház
Állapot
Kiváló
Homlokzat állapota
Kiváló
Lépcsőház állapota
Kiváló
Környék
csendes, zöld
Építés éve
2026
Fürdőszobák száma
1
Fekvés
kertre néző
Társaház kert
igen
Garázs
Külön vásárolható
Garázs férőhely
1
Víz
Van
Gáz
Utcán
Villany
Van
Csatorna
Van
Kertkapcsolatos
igen

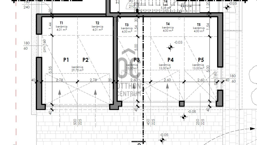
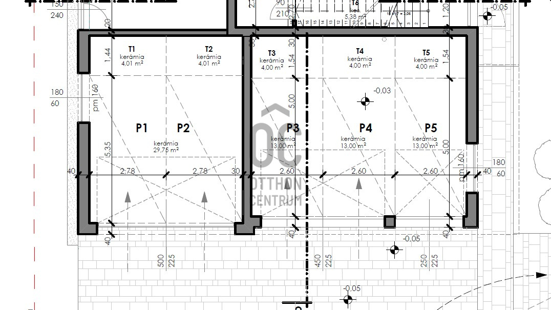
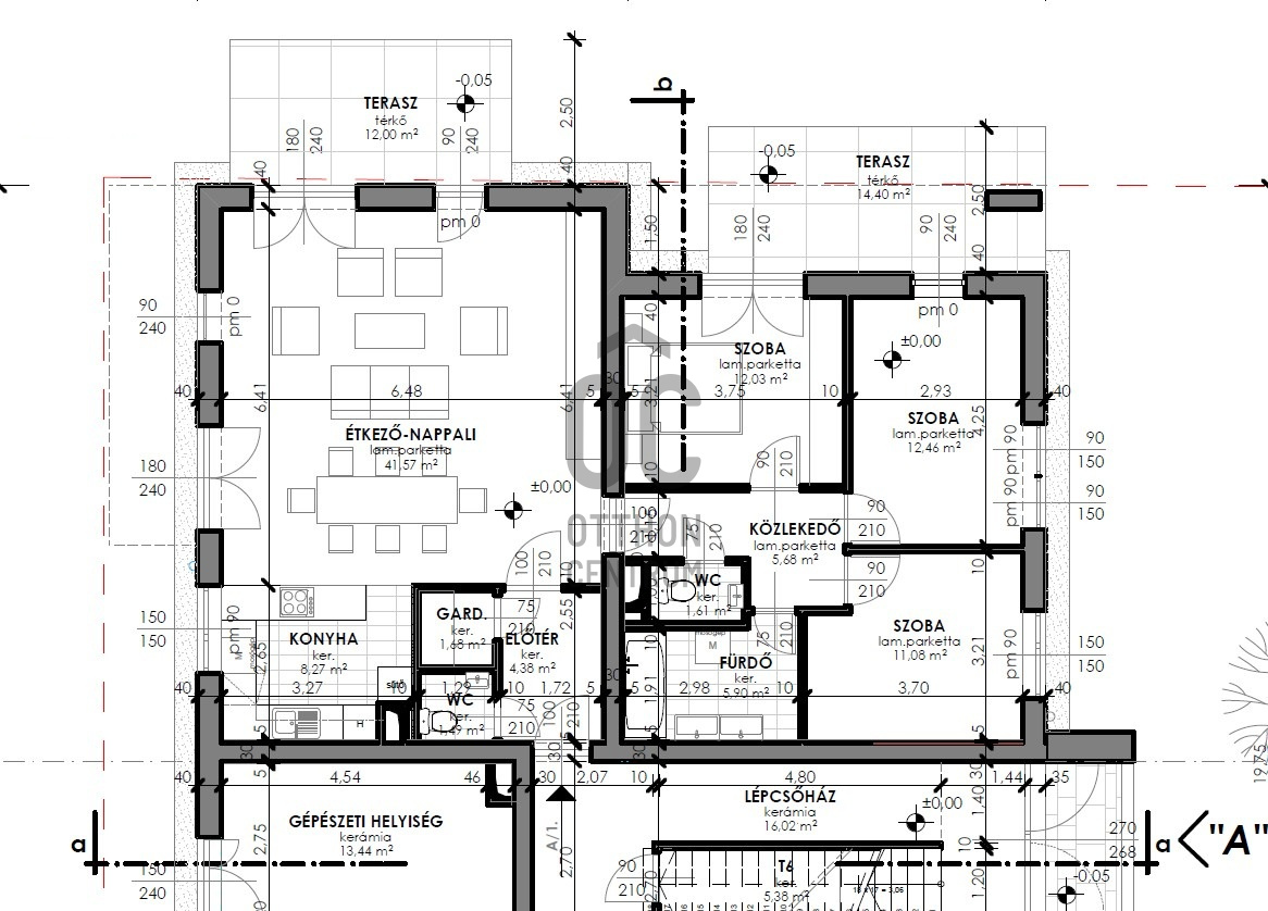
Helyiségek

nappali-étkező
41.57 m²
konyha
8.27 m²
szoba
12.03 m²
szoba
12.46 m²
szoba
11.08 m²
fürdőszoba
5.9 m²
közlekedő
5.68 m²
előszoba
4.38 m²
gardrób
1.68 m²
wc
1.61 m²
wc
1.49 m²
terasz
12 m²
terasz
14.4 m²
Pomaházi Pál
Pomaházi Pál

Hitelszakértő

Irodánk kínálatából - XVI. kerület - Etelköz utca 2-4.

for sale family house

Index image
58

for sale family house

Index image
data_sheet.details.realestate.section.main.otthonstart_flag.label
21

for rent row house

Index image
22

for sale apartment

Index image
data_sheet.details.realestate.section.main.otthonstart_flag.label
21

for sale new construction apartment

Index image
data_sheet.details.realestate.section.main.otthonstart_flag.label
5

for sale family house

Index image
data_sheet.details.realestate.section.main.otthonstart_flag.label
27

for sale semi-detached house

Index image
32

for sale panel apartment

Index image
data_sheet.details.realestate.section.main.otthonstart_flag.label
13