Elérhető Otthon Start hitellel
Eladó újépítésű ikerház, U0048443
Vácrátót, Szent István-lakópark

96 500 000 Ft

251 000 €

  • 76m²
  • 4 szoba

Vácrátót-3 szoba+nappali-ikerház

A Szent-István lakóparkban tárolóval kapcsolódó új építésű ikerház költözhető 2026 tavaszán.

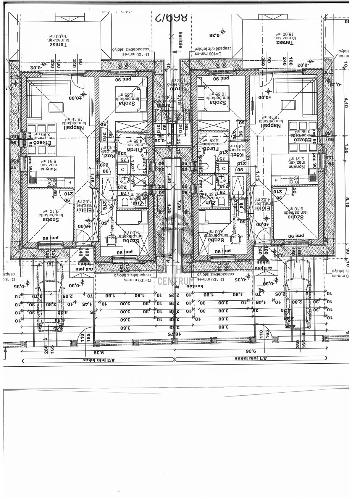
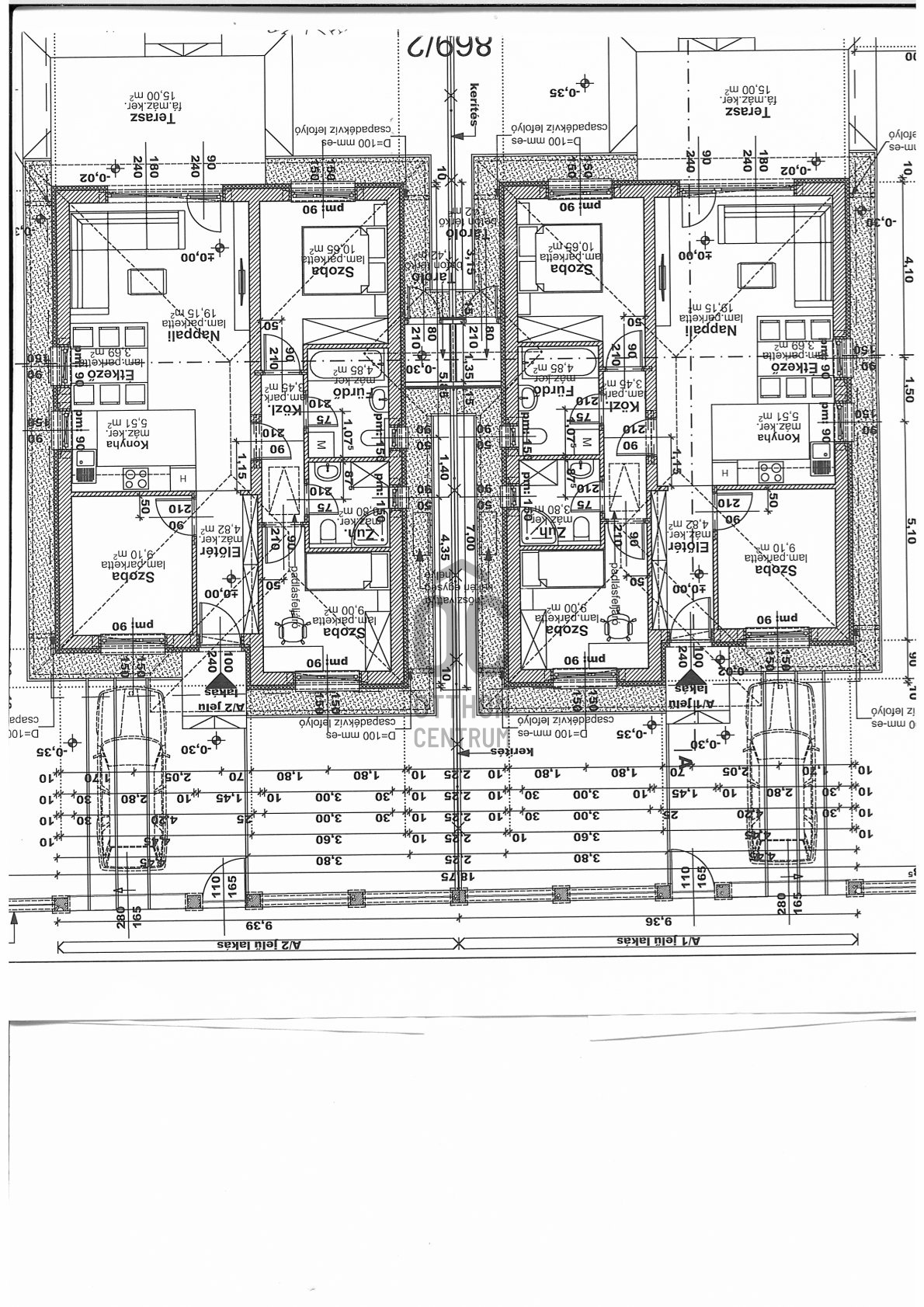
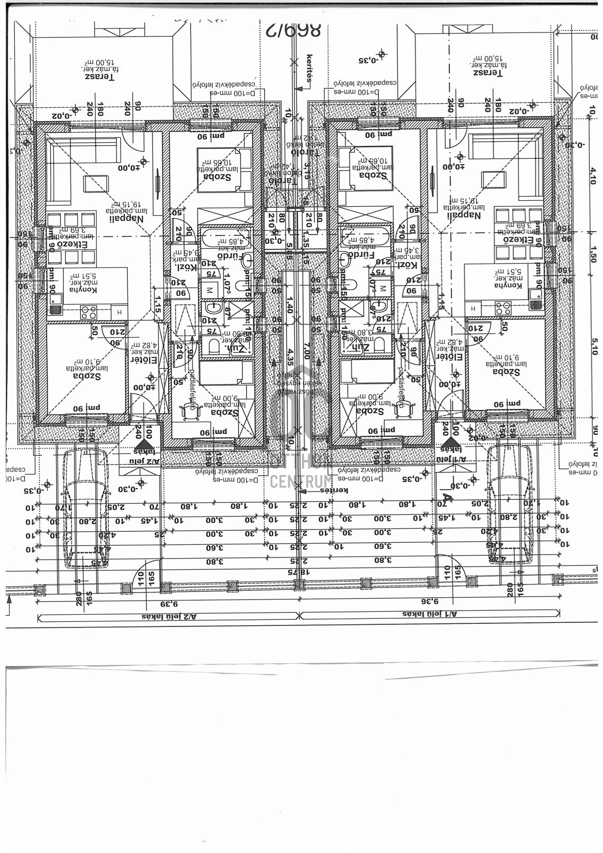
A ház elrendezése

- amerikai konyhás nappali 28 nm-terasz 15nm
- hálószobák 9nm- 9.10 nm- 10.65
- 2 fürdöszba káddal, illetve zuhanyzóval
- közlekedők
- külső tároló
-gépkocsi beálló- térkővel burkolt
- telek mérete 380 nm

Referencákkal rendelkező igényes kivitelezőtől.

Műszaki tartalom:

- hőszivattyús padlófűtés
- 30 cm-es téglafalazat-10 cm-es grafitos kivitelezés
- beton födém-pakolható padlástér
- klíma kiállások minden helyiségben
-H tarifás villanyóra
- napelem előkészítés
- redőny előkészítés
- riasztó előkészítés
- 3 rétegű meleg peremes nyílászárók

A lakópark csendes, nyugod életteret nyújt. A gyerekek elhelyezését Vácrátóton bölcsöde, óvoda, általános iskola biztosítja.
A település szomszédságában található Őrbottyán és Veresegyház szolgáltatásai minden igényt kielégítenek.
Budapest busszal könnyen elérhető.
Egy évben többször is felkereshetjük a Nemzeti Botanikus Kertet.

Regisztrációs szám

U0048443

Az ingatlan adatai

Értékesités
eladó
Jogi státusz
új
Jelleg
ház
Építési mód
tégla
Méret
76 m²
Bruttó méret
75 m²
Telek méret
380 m²
Fűtés
hőszivattyú
Belmagasság
270 cm
Tájolás
Kelet
Állapot
Kiváló
Homlokzat állapota
Kiváló
Környék
csendes
Építés éve
2025
Fürdőszobák száma
2
Víz
Van
Villany
Van
Csatorna
Van

Helyiségek

nappali
19 m²
konyha
5.5 m²
ebédlő
4 m²
szoba
9.1 m²
szoba
9 m²
szoba
10.65 m²
fürdőszoba-wc
4.85 m²
zuhanyzó
3.8 m²
közlekedő
3.45 m²
előszoba
3.82 m²
tároló
2.5 m²
Bán Marianna
Bán Marianna

Hitelszakértő

Irodánk kínálatából - Vác

for rent apartment

Index image
12

for sale plot

Index image
11

for sale panel apartment

Index image
data_sheet.details.realestate.section.main.otthonstart_flag.label
29

for sale family house

Index image
data_sheet.details.realestate.section.main.otthonstart_flag.label
19

for sale family house

Index image
data_sheet.details.realestate.section.main.otthonstart_flag.label
20

for sale family house

Index image
data_sheet.details.realestate.section.main.otthonstart_flag.label
12

for sale family house

Index image
20

for sale panel apartment

Index image
data_sheet.details.realestate.section.main.otthonstart_flag.label
15

for sale family house

Index image
data_sheet.details.realestate.section.main.otthonstart_flag.label
29

for sale family house

Index image
data_sheet.details.realestate.section.main.otthonstart_flag.label
18