Elérhető Otthon Start hitellel
Eladó újépítésű családi ház, U0048393
Zamárdi, Zamárdi-Ófalu

134 900 000 Ft

351 000 €

  • 108,5m²
  • 5 szoba

Új ház Zamárdiban panorámával

Zamárdiban eladó önálló telken 2 darab újépítésű családi ház, 2 szinten nappali + 4 szobával, 2 fürdőszobával.

Házanként egy darab felszíni beállóval, amelyet a feltüntetett vételár már tartalmaz.
A házakhoz a földszinten is és az emeleten is 25 négyzetméter terasz tartozik.
Várható átadás 2025 december.
A házak az új, kedvezményes, Otthon start, 3% kamatozású hitellel is megvásárolhatók!

További részletekért hívjon most!

Regisztrációs szám

U0048393

Az ingatlan adatai

Értékesités
eladó
Jogi státusz
új
Jelleg
ház
Építési mód
tégla
Méret
108,5 m²
Bruttó méret
120 m²
Telek méret
650 m²
Terasz / erkély mérete
30,4 m²
Kert méret
545 m²
Fűtés
hőszivattyú
Belmagasság
270 cm
Lakáson belüli szintszám
1
Tájolás
Észak
Panoráma
folyóra tóra néző panoráma
Állapot
Kiváló
Homlokzat állapota
Kiváló
Környék
csendes, jó közlekedés, zöld, központi
Építés éve
2025
Fürdőszobák száma
2
Társaház kert
igen
Fedett beállók száma
1
Víz
Van
Gáz
Utcán
Villany
Van
Csatorna
Van
Tároló
Önálló
Vízpart távolsága
több mint 500 méterre

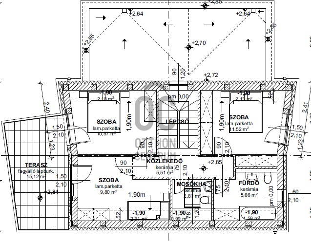
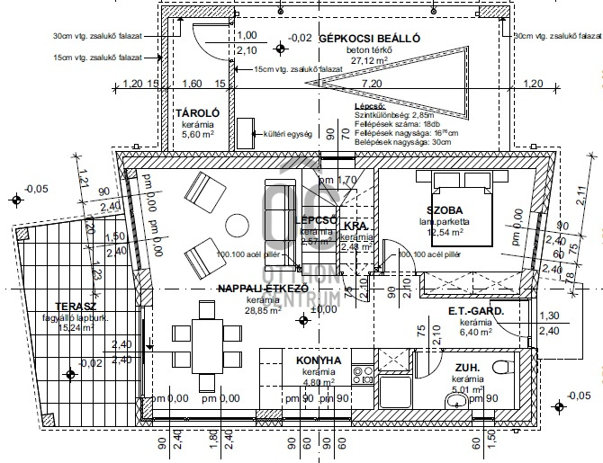
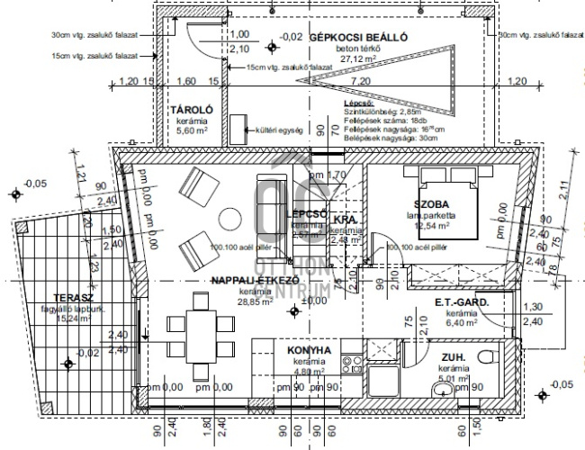
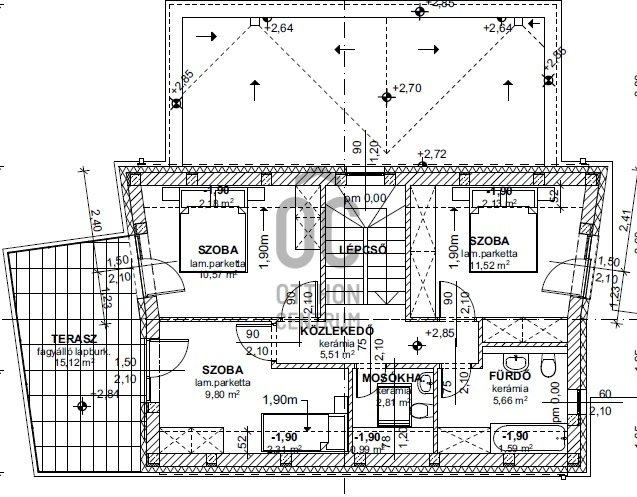
Helyiségek

nappali-konyha
33.7 m²
szoba
12.5 m²
fürdőszoba-wc
5 m²
gardrób
6.4 m²
kamra
2.5 m²
lépcsőház
2.6 m²
tároló
5.6 m²
terasz
15.2 m²
szoba
11.5 m²
szoba
9.8 m²
szoba
10.6 m²
fürdőszoba-wc
5.7 m²
közlekedő
5.5 m²
mosókonyha
2.8 m²
terasz
15.1 m²

Irodánk kínálatából - Siófok - Petőfi sétány

for sale apartment

Index image
data_sheet.details.realestate.section.main.otthonstart_flag.label
16

for sale family house

Index image
data_sheet.details.realestate.section.main.otthonstart_flag.label
19

for sale family house

Index image
data_sheet.details.realestate.section.main.otthonstart_flag.label
9

for sale family house

Index image
data_sheet.details.realestate.section.main.otthonstart_flag.label
12

for rent commercial property

Index image
9

for sale family house

Index image
48

for rent family house

Index image
18

for sale family house

Index image
data_sheet.details.realestate.section.main.otthonstart_flag.label
24