Elérhető Otthon Start hitellel
Eladó újépítésű ikerház,
U0048228
Debrecen, Felső-Józsa
99 350 000 Ft
254 000 €
- 99m²
- 4 szoba



Fedezze fel új otthonát Debrecenben – 4 szobás, A+ energetikai besorolású családi ház várja Önt Felső-Józsán!
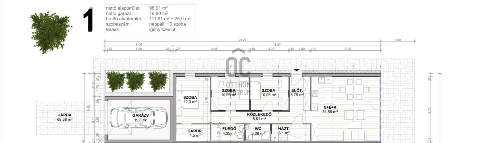
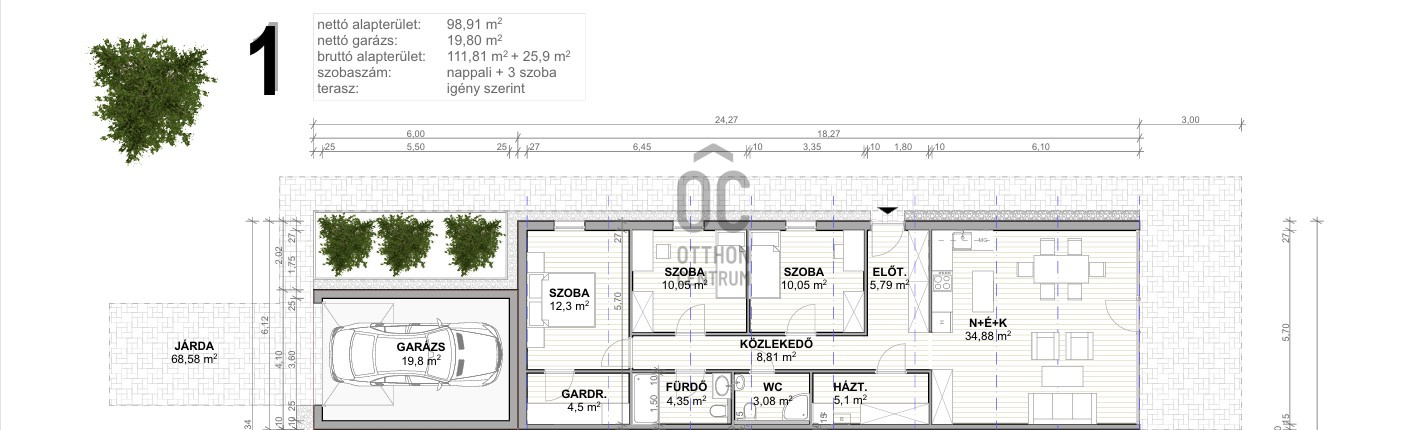
Debrecen Felső-Józsa városrészében egy új építésű, energiatakarékos családi ikerház, 977 m2-es telekkel eladó ! Ha szeretne biztos lenni abban, hogy otthona minimális rezsiköltséggel hosszú távon fenntartható, akkor ez a hirdetés önnek szól! Az ingatlan nettó 99 m2 lakótérrel + 20 m2-es garázzsal rendelkezik . 3 szoba+ amerikai konyhás nappali+ étkező, dupla fürdőszoba, tágas terek jellemzik, kiváló választás akár nagycsaládosok részére is!
Az egyedi tervezésű, nagy üvegfelülethez nagy belmagasság párosul a nappali-konyha -étkező részen. Fűtése hőszivattyúval történik, amely a legmodernebb technológiát képviseli, így nemcsak környezetbarát, hanem gazdaságos megoldást is nyújt. A hűtésről klímaberendezés gondoskodik, amely a nyári hónapokban kellemes hőmérsékletet biztosít. A 3 fázis bevezetésre kerül, így kellő napelemekkel akár teljesen 0-ás rezsiköltséggel is fenntartható! Az ikerházak önálló falazattal , hangszigeteléssel ellátva.
Közlekedési lehetőségek kiválóak, az autópálya pillanatok alatt elérhető. Debrecen központja mindössze néhány percnyi autóútra található, tömegközlekedés is a közelben. A városrész jól ellátott, élelmiszerüzletek, bevásárló központok, iskolák, óvodák és minden más üzlet a központban.
Csok+-ra alkalmas, hitelezhető! Költözzön szeretteivel már idén ősszel!
Ez az ingatlan nem csupán egy új otthon, hanem egy életstílus, amely a modern kényelmet és a természet közelségét ötvözi minimális fenntartási költséggel!
További felvilágosításért várom megkeresését!
Debrecen, Józsa, eladó, ház, ikerház, 4 szoba, új építésű, A+, energiatakarékos, földszintes
Az egyedi tervezésű, nagy üvegfelülethez nagy belmagasság párosul a nappali-konyha -étkező részen. Fűtése hőszivattyúval történik, amely a legmodernebb technológiát képviseli, így nemcsak környezetbarát, hanem gazdaságos megoldást is nyújt. A hűtésről klímaberendezés gondoskodik, amely a nyári hónapokban kellemes hőmérsékletet biztosít. A 3 fázis bevezetésre kerül, így kellő napelemekkel akár teljesen 0-ás rezsiköltséggel is fenntartható! Az ikerházak önálló falazattal , hangszigeteléssel ellátva.
Közlekedési lehetőségek kiválóak, az autópálya pillanatok alatt elérhető. Debrecen központja mindössze néhány percnyi autóútra található, tömegközlekedés is a közelben. A városrész jól ellátott, élelmiszerüzletek, bevásárló központok, iskolák, óvodák és minden más üzlet a központban.
Csok+-ra alkalmas, hitelezhető! Költözzön szeretteivel már idén ősszel!
Ez az ingatlan nem csupán egy új otthon, hanem egy életstílus, amely a modern kényelmet és a természet közelségét ötvözi minimális fenntartási költséggel!
További felvilágosításért várom megkeresését!
Debrecen, Józsa, eladó, ház, ikerház, 4 szoba, új építésű, A+, energiatakarékos, földszintes
Regisztrációs szám
U0048228
Az ingatlan adatai
Értékesités
eladó
Jogi státusz
új
Jelleg
ház
Építési mód
prokoncept
Méret
99 m²
Bruttó méret
143 m²
Telek méret
977 m²
Fűtés
values.realestate.futes.26
Belmagasság
250 cm
Tájolás
Dél
Állapot
Kiváló
Homlokzat állapota
Kiváló
Környék
csendes, jó közlekedés
Építés éve
2025
Fürdőszobák száma
2
Garázs
Benne van az árban
Víz
Van
Villany
Van
Csatorna
Van
Helyiségek
nappali-konyha
34.9 m²
szoba
12.3 m²
szoba
10.5 m²
szoba
10.5 m²
fürdőszoba-wc
4.35 m²
fürdőszoba-wc
3.8 m²
gardrób
4.5 m²
háztartási helyiség
5.1 m²

Czellér András
Hitelszakértő