238 000 000 Ft
628 000 €
- 150m²
- 4 szoba
16.ker Sashalomon eladó egy 1 szintes 4 szobás, kertes, családi ház.
16. kerület kedvelt részén, Sashalmon eladó egy épülő félben lévő családi ház 750m2 telken.
Sashalom a 16.kerület egyik legkedveltebb és legnyugodtabb része, ennek ellenére a közelben vásárlási lehetőség, oktatási intézmények is megtalálhatóak, illetve a tömegközlekedés kiváló.
A ház a modern kor követelményeinek megfelelően hőszivattyús fűtéssel készül, klíma biztosítja a hűtést.
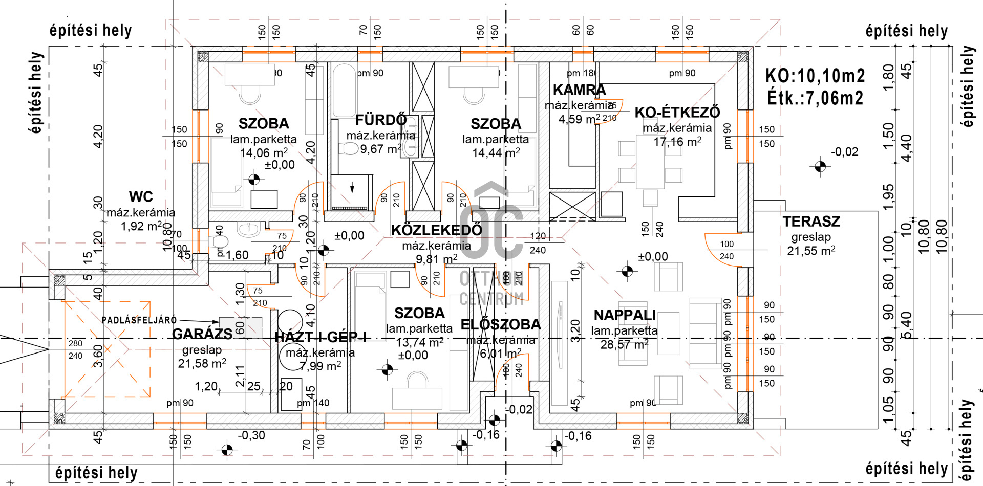
A nappali-konyha-étkező + 3 hálós ház körül egy jól kezelhető és élhető kb 500m2 kertnek marad hely.
A beruházó a környékben sok családi és ikerházat épített, megbízható, precíz szakember.
A ház várható befejezése: 2025 október
TOVÁBBI RÉSZLETEKÉRT, MEGTEKINTÉS MIATT KERESSEN AKÁR HÉTVÉGÉN IS.
Műszaki tartalom:
A családiházban,mozgásérzékelővel ellátott riasztórendszer kiépítése,készre.
Kaputelefon kiépítése automata nyitással.
Minden ablakon aluminium motoros redöny, helyiségenként 1 szúnyogháló .
Az ablakok Fehér szinben (3 rétegü üveggel 0.6 K höszigeteléssel)
Gk.kapu motorizálva 4db müködő kamera
Padlófütés ---Höszivattyuval --Hütés-- Klimával
(További részletek személyesen)
családi ház, új építésű ház a 16. kerületben,
Sashalom a 16.kerület egyik legkedveltebb és legnyugodtabb része, ennek ellenére a közelben vásárlási lehetőség, oktatási intézmények is megtalálhatóak, illetve a tömegközlekedés kiváló.
A ház a modern kor követelményeinek megfelelően hőszivattyús fűtéssel készül, klíma biztosítja a hűtést.
A nappali-konyha-étkező + 3 hálós ház körül egy jól kezelhető és élhető kb 500m2 kertnek marad hely.
A beruházó a környékben sok családi és ikerházat épített, megbízható, precíz szakember.
A ház várható befejezése: 2025 október
TOVÁBBI RÉSZLETEKÉRT, MEGTEKINTÉS MIATT KERESSEN AKÁR HÉTVÉGÉN IS.
Műszaki tartalom:
A családiházban,mozgásérzékelővel ellátott riasztórendszer kiépítése,készre.
Kaputelefon kiépítése automata nyitással.
Minden ablakon aluminium motoros redöny, helyiségenként 1 szúnyogháló .
Az ablakok Fehér szinben (3 rétegü üveggel 0.6 K höszigeteléssel)
Gk.kapu motorizálva 4db müködő kamera
Padlófütés ---Höszivattyuval --Hütés-- Klimával
(További részletek személyesen)
családi ház, új építésű ház a 16. kerületben,
Regisztrációs szám
U0048052
Az ingatlan adatai
Értékesités
eladó
Jogi státusz
új
Jelleg
ház
Építési mód
tégla
Méret
150 m²
Bruttó méret
192 m²
Telek méret
756 m²
Terasz / erkély mérete
22 m²
Fűtés
hőszivattyú
Belmagasság
282 cm
Tájolás
Dél
Állapot
Kiváló
Homlokzat állapota
Kiváló
Környék
csendes, jó közlekedés, zöld
Építés éve
2025
Fürdőszobák száma
1
Garázs
Benne van az árban
Garázs férőhely
1
Víz
Van
Villany
Van
Csatorna
Van
Tároló
Önálló
Helyiségek
nappali
29 m²
konyha-étkező
17 m²
szoba
14 m²
szoba
14 m²
szoba
14 m²
előszoba
6 m²
fürdőszoba-wc
10 m²
háztartási helyiség
8 m²
garázs
22 m²
wc
2 m²
terasz
22 m²
Vitéz Kornél
Hitelszakértő