2 500 000 Ft
6 370 €
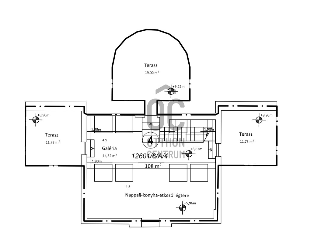
- 108m²
- 4 szoba
- 2. emelet




















KIADÓ, új, 4 szobás lakás Budapest II. kerületében
A modern életstílus kedvelői számára kínálunk bérbeadásra egy különleges ingatlant, mely Budapest II. kerületének egyik legfelkapottabb részén található.
Ez a tágas, galériás lakás ideális választás lehet azok számára, akik a kényelmet és a minőséget keresik.
Az ingatlan alapterülete 108 négyzetméter + 2 x 16 nm erkély + 2 x 12 nm terasz + 19 nm terasz + 2 teremgarázs hely. (Az épületben még található a földszinten egy 109 nm-es lakás 91 nm terasszal, valamint az első emeleten két lakás, lakásonként 57 nm + 9 nm erkély, illetve a terem garázsban 1-1, a földszinti lakáshoz 2 parkolóhely. Külön-külön is, de akár egyben az egész is kiadó!)
Az amerikai konyha és a világos nappali tökéletes teret ad a közös pillanatoknak, míg a 43 négyzetméteres terasz és a 31,8 négyzetméteres erkély csodás panorámát kínál a környező tájra. A lakás modern dizájnja és kiváló állapota egyedülálló lehetőséget teremt a nyugodt életvitelhez.
A lakás modern kialakítása mellett a legújabb technológiákat is felvonultatja, mint például a hőszivattyús fűtés, integrált szúnyoghálók és motoros redőnyök, amelyek garantálják a maximális kényelmet. A biztonsági ajtó és a belső lift hozzáadott értéket képviselnek, hiszen a biztonság mindannyiunk számára elsődleges fontosságú.
A környék ellátottsága kiváló, számos bolt, étterem és szórakozási lehetőség a közelben, nem utolsósorban a környék kedvelt bevásárló központja a Rózsakert, mindössze 5 perc sétatávolságra található.
A kitűnő közlekedésnek köszönhetően könnyedén elérheti a város bármely pontját, legyen szó autós közlekedésről vagy tömegközlekedésről.
Ez a penthouse lakás nem csupán egy ingatlan, hanem egy életstílus, amely a modern kényelem és a városi dinamizmus tökéletes egyensúlyát kínálja. Ha Ön is szeretne részese lenni ennek a különleges lehetőségnek, ne habozzon kapcsolatba lépni velem! Bizalommal kereshet bármilyen kérdéssel, szívesen segítek Önnek megtalálni a tökéletes otthont vagy befektetési lehetőséget.
Ez a tágas, galériás lakás ideális választás lehet azok számára, akik a kényelmet és a minőséget keresik.
Az ingatlan alapterülete 108 négyzetméter + 2 x 16 nm erkély + 2 x 12 nm terasz + 19 nm terasz + 2 teremgarázs hely. (Az épületben még található a földszinten egy 109 nm-es lakás 91 nm terasszal, valamint az első emeleten két lakás, lakásonként 57 nm + 9 nm erkély, illetve a terem garázsban 1-1, a földszinti lakáshoz 2 parkolóhely. Külön-külön is, de akár egyben az egész is kiadó!)
Az amerikai konyha és a világos nappali tökéletes teret ad a közös pillanatoknak, míg a 43 négyzetméteres terasz és a 31,8 négyzetméteres erkély csodás panorámát kínál a környező tájra. A lakás modern dizájnja és kiváló állapota egyedülálló lehetőséget teremt a nyugodt életvitelhez.
A lakás modern kialakítása mellett a legújabb technológiákat is felvonultatja, mint például a hőszivattyús fűtés, integrált szúnyoghálók és motoros redőnyök, amelyek garantálják a maximális kényelmet. A biztonsági ajtó és a belső lift hozzáadott értéket képviselnek, hiszen a biztonság mindannyiunk számára elsődleges fontosságú.
A környék ellátottsága kiváló, számos bolt, étterem és szórakozási lehetőség a közelben, nem utolsósorban a környék kedvelt bevásárló központja a Rózsakert, mindössze 5 perc sétatávolságra található.
A kitűnő közlekedésnek köszönhetően könnyedén elérheti a város bármely pontját, legyen szó autós közlekedésről vagy tömegközlekedésről.
Ez a penthouse lakás nem csupán egy ingatlan, hanem egy életstílus, amely a modern kényelem és a városi dinamizmus tökéletes egyensúlyát kínálja. Ha Ön is szeretne részese lenni ennek a különleges lehetőségnek, ne habozzon kapcsolatba lépni velem! Bizalommal kereshet bármilyen kérdéssel, szívesen segítek Önnek megtalálni a tökéletes otthont vagy befektetési lehetőséget.
Regisztrációs szám
U0047539
Az ingatlan adatai
Értékesités
kiadó
Jogi státusz
új
Jelleg
lakás
Építési mód
tégla
Méret
108 m²
Bruttó méret
183 m²
Terasz / erkély mérete
74,8 m²
Fűtés
hőszivattyú
Belmagasság
270 cm
Lakáson belüli szintszám
2
Tájolás
Dél-kelet
Panoráma
városi panoráma
Lépcsőház típusa
zárt lépcsőház
Állapot
Kiváló
Homlokzat állapota
Kiváló
Lépcsőház állapota
Kiváló
Környék
csendes, jó közlekedés, központi
Építés éve
2024
Fürdőszobák száma
2
Fekvés
kertre néző
Víz
Van
Gáz
Utcán
Villany
Van
Csatorna
Van
Lift
van
Helyiségek
nappali-konyha
36.05 m²
szoba
8.58 m²
szoba
17.14 m²
szoba
10.98 m²
fürdőszoba-wc
3.84 m²
fürdőszoba-wc
1.81 m²
előszoba
12.12 m²
tároló
2.76 m²
erkély
31.8 m²
galéria
25 m²
tetőterasz
43 m²

Pongó Miklós
Hitelszakértő