199 900 000 Ft
510 000 €
- 175m²
- 4 szoba









PRÉMIUM MINIMAL IKERHÁZ ELADÓ A 22.KERÜLETBEN! PANORÁMÁS TERASSZAL !
Budapest 22.kerületének Óhegy keresett részen prémium minőségű ikerház épül. Az épületek dupla fallal és légréssel elválasztva, így semmilyen hang nem zavarhatja a nyugalmát. Szolgalmi úttal
Az ingatlant a 2025-ös év kedvezményes feltételeivel tudja megvásárolni, az építkezés céges.
CSOK Plusz igényelhető és Illeték kedvezmény egyaránt.
Foglalja le már most leendő otthonát 10%-al. Az építkezés hamarosan kezdetét veszi. A környéken rengeteg referencia ház, amit közösen megtekinthetünk, ami segíti a döntést.
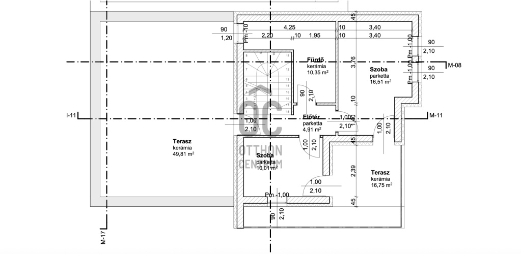
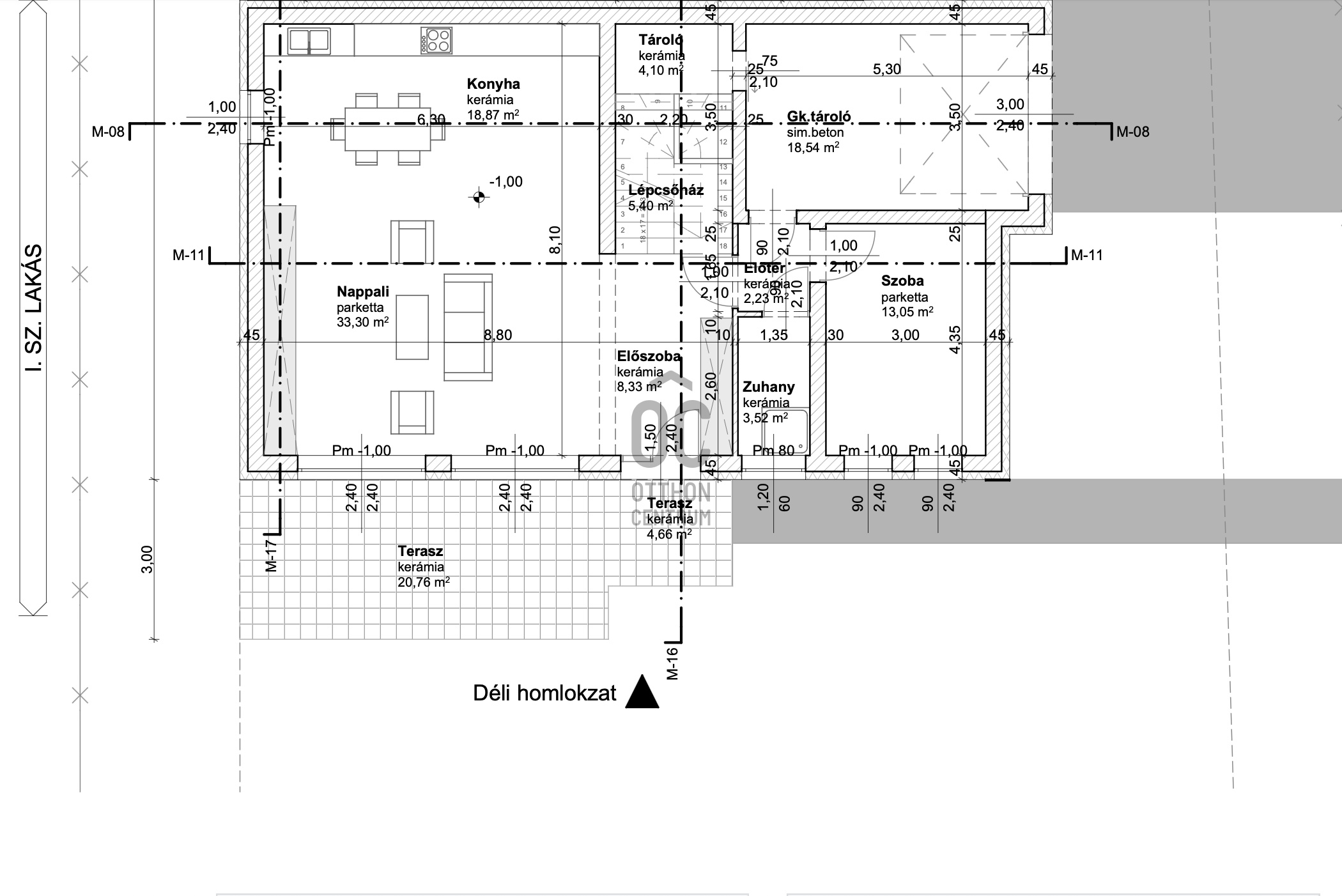
Az ingatlan nettó hasznos területe 130,58 m2 + 18,54 m2 garázs, 3 db terasz 553 m2 kertkapcsolattal. A helyiségek napfényesek, köszönhetően a jó tájolásnak és a jó méretű egyedi nyílászáróknak.
Elosztását tekintve:Földszint:
- Előszoba
- 1 jó méretű hálószoba
- Tágas , 52 m2-es amerikai konyhás nappali
- Fürdőszoba
- Tároló- 1 állásos garázs /kérhető szobának is /
- 20,76 m2-es terasz
- 553 m2-es saját kert
Emelet:
- 2 szoba. mindegyik szoba hangulatos terasszal / 49,81 m2 és egy 16,75 m2-es/, ahonnan hangulatos panoráma tárul elénk - Fürdőszoba
EXTRÁK:
- Mennyezet hűtés-fűtés- Hővisszanyerős szellőztető berendezés
- Elektromos alumínium redőnyök
Műszaki adatok:
- 30-as Porotherm tégla, 10 cm Ytong válaszfalak
- 15 cm grafitos homlokzati szigetelés
- Panasonic hőszivattyú 300 literes használati meleg víz tartállyal, minden lakásnak külön hőszivattyú berendezés
- H- tarifás mérőszekrény kialakítás
- Minden helyiségben padlófűtés
- Betoncserép
- 3 rétegű 6 légkamrás nyílászárók, kívül antracit kivitelben
- 2 db autónak kocsibeálló
- Riasztó előkészítése
- Szaniterek
- Hideg/meleg burkolatok ( 10 000 Ft/m2 meleg: 10 000 Ft/ m2 )
- Beltéri ajtók ( 100 000 Ft/ db )
- Bejárati ajtó
Ezek mind kiemelkedő minőségben és az átlagnál magasabb áron választhatóak. Árlista tőlem kérhető.Az építkezés megtekintése után minden a házzal kapcsolatos dokumentáció rendelkezésre áll.
Vállalkozó garantáltan megbízható, rugalmas, rengeteg referencia munkával, amit közösen megtudunk tekinteni a nagy döntés előtt.
Környék rendezett, minden perceken belül elérhető. Iskola, óvoda, bevásárlási lehetőségek, MO.
Várható átadás: 2026 Tavasz
További információkért hívjon bizalommal.
Budapest 22.kerületének Óhegy keresett részen prémium minőségű ikerház épül. Az épületek dupla fallal és légréssel elválasztva, így semmilyen hang nem zavarhatja a nyugalmát. Szolgalmi úttal
Az ingatlant a 2025-ös év kedvezményes feltételeivel tudja megvásárolni, az építkezés céges.
CSOK Plusz igényelhető és Illeték kedvezmény egyaránt.
Foglalja le már most leendő otthonát 10%-al. Az építkezés hamarosan kezdetét veszi. A környéken rengeteg referencia ház, amit közösen megtekinthetünk, ami segíti a döntést.
Az ingatlan nettó hasznos területe 130,58 m2 + 18,54 m2 garázs, 3 db terasz 553 m2 kertkapcsolattal. A helyiségek napfényesek, köszönhetően a jó tájolásnak és a jó méretű egyedi nyílászáróknak.
Elosztását tekintve:Földszint:
- Előszoba
- 1 jó méretű hálószoba
- Tágas , 52 m2-es amerikai konyhás nappali
- Fürdőszoba
- Tároló- 1 állásos garázs /kérhető szobának is /
- 20,76 m2-es terasz
- 553 m2-es saját kert
Emelet:
- 2 szoba. mindegyik szoba hangulatos terasszal / 49,81 m2 és egy 16,75 m2-es/, ahonnan hangulatos panoráma tárul elénk - Fürdőszoba
EXTRÁK:
- Mennyezet hűtés-fűtés- Hővisszanyerős szellőztető berendezés
- Elektromos alumínium redőnyök
Műszaki adatok:
- 30-as Porotherm tégla, 10 cm Ytong válaszfalak
- 15 cm grafitos homlokzati szigetelés
- Panasonic hőszivattyú 300 literes használati meleg víz tartállyal, minden lakásnak külön hőszivattyú berendezés
- H- tarifás mérőszekrény kialakítás
- Minden helyiségben padlófűtés
- Betoncserép
- 3 rétegű 6 légkamrás nyílászárók, kívül antracit kivitelben
- 2 db autónak kocsibeálló
- Riasztó előkészítése
- Szaniterek
- Hideg/meleg burkolatok ( 10 000 Ft/m2 meleg: 10 000 Ft/ m2 )
- Beltéri ajtók ( 100 000 Ft/ db )
- Bejárati ajtó
Ezek mind kiemelkedő minőségben és az átlagnál magasabb áron választhatóak. Árlista tőlem kérhető.Az építkezés megtekintése után minden a házzal kapcsolatos dokumentáció rendelkezésre áll.
Vállalkozó garantáltan megbízható, rugalmas, rengeteg referencia munkával, amit közösen megtudunk tekinteni a nagy döntés előtt.
Környék rendezett, minden perceken belül elérhető. Iskola, óvoda, bevásárlási lehetőségek, MO.
Várható átadás: 2026 Tavasz
További információkért hívjon bizalommal.
Regisztrációs szám
DHZ043980
Az ingatlan adatai
Értékesités
eladó
Jogi státusz
új
Jelleg
ház
Építési mód
tégla
Méret
175 m²
Bruttó méret
175 m²
Telek méret
553 m²
Terasz / erkély mérete
91,9 m²
Fűtés
egyéb
Lakáson belüli szintszám
2
Tájolás
Dél-nyugat
Állapot
Jó
Homlokzat állapota
Jó
Építés éve
2025
Fürdőszobák száma
2
Fekvés
udvari
Víz
Van
Villany
Van
Csatorna
Van
Helyiségek
előszoba
8.33 m²
szoba
13.05 m²
lépcsőház
5.4 m²
nappali-konyha
53 m²
terasz
25.42 m²
szoba
16.51 m²
szoba
10.01 m²
veranda
16.75 m²
terasz
49.81 m²

Pongó Miklós
Hitelszakértő