Elérhető Otthon Start hitellel
Eladó újépítésű lakás,
U0045576
Zalaegerszeg, Belváros
67 640 000 Ft
173 000 €
- 76m²
- 3 szoba
- 3. emelet










Egyedüli lehetőség Zalaegerszegen!
Új lakást szeretne, saját ízlésének megfelelően Zalaegerszegen?
Íme, egy nagyszerű ajánlat Zalaegerszeg belvárosában,75,51 négyzetméteres lakás, 770 000Ft/nm-es áron!!!
A 9 lakásos társasházban 44-87 nm-es, 3 szobás lakások kerülnek kialakításra ,különálló garázsokban vagy zárt parkolóhelyeken biztosított a gépkocsik tárolása és védelme.
A tervezés során fontos szempont a beépített anyagok magas minősége , a költséghatékony fenntartás és az épületek értékállósága. A ház fűtését , illetve meleg víz ellátását , hőszivattyús rendszer biztosítja , lakásonkénti egyedi méréssel és szabályozással , padlófűtéssel.
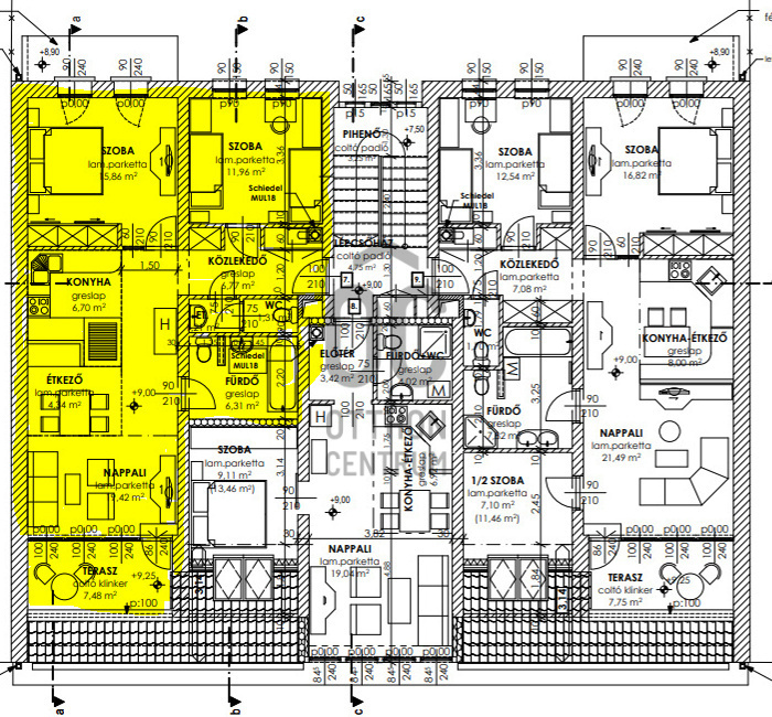
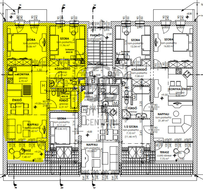
Az ingatlan az első emeleten helyezkedik el 88,22 m2 bruttó területű, ebből a 2 erkély mérete összesen 9,41 m2.
2 hálószoba, nappali, konyha, étkező, fürdő, 2 WC, előtér, közlekedő, terasz elrendezésű.
A projekt főbb jellemzői:
- belváros közeli , frekventált elhelyezkedés (Petőfi utca Ady - Mártírok közti részén)
- igényes , belvároshoz méltó külső megjelenés
- 9 prémium minőségű lakás funkcionálisan tervezett alaprajzokkal: 2 szobával, nappalival, erkélyekkel
- napfényes , déli - nyugati tájolású lakások
- fenntartható lakás , alacsony energiafelhasználás
- impozáns épület, kevésbé forgalmas belvárosi részen
- fürdő és WC külön helyiségben minden lakásban
- 3 rétegű nyílászárók , redőny , szúnyogháló , klíma kérhető
- Választható belső burkolatok , szaniterek , ajtók
- belső , zárt , kisméretű , parkosított udvar
- saját garázs vásárolható
- Családi Otthonteremtési Kedvezmény + Hitel igényelhető!
Az építkezés 70%-os készültségi szinten tart.
Az épület műszaki átadása: 2024 év eleje.
Íme, egy nagyszerű ajánlat Zalaegerszeg belvárosában,75,51 négyzetméteres lakás, 770 000Ft/nm-es áron!!!
A 9 lakásos társasházban 44-87 nm-es, 3 szobás lakások kerülnek kialakításra ,különálló garázsokban vagy zárt parkolóhelyeken biztosított a gépkocsik tárolása és védelme.
A tervezés során fontos szempont a beépített anyagok magas minősége , a költséghatékony fenntartás és az épületek értékállósága. A ház fűtését , illetve meleg víz ellátását , hőszivattyús rendszer biztosítja , lakásonkénti egyedi méréssel és szabályozással , padlófűtéssel.
Az ingatlan az első emeleten helyezkedik el 88,22 m2 bruttó területű, ebből a 2 erkély mérete összesen 9,41 m2.
2 hálószoba, nappali, konyha, étkező, fürdő, 2 WC, előtér, közlekedő, terasz elrendezésű.
A projekt főbb jellemzői:
- belváros közeli , frekventált elhelyezkedés (Petőfi utca Ady - Mártírok közti részén)
- igényes , belvároshoz méltó külső megjelenés
- 9 prémium minőségű lakás funkcionálisan tervezett alaprajzokkal: 2 szobával, nappalival, erkélyekkel
- napfényes , déli - nyugati tájolású lakások
- fenntartható lakás , alacsony energiafelhasználás
- impozáns épület, kevésbé forgalmas belvárosi részen
- fürdő és WC külön helyiségben minden lakásban
- 3 rétegű nyílászárók , redőny , szúnyogháló , klíma kérhető
- Választható belső burkolatok , szaniterek , ajtók
- belső , zárt , kisméretű , parkosított udvar
- saját garázs vásárolható
- Családi Otthonteremtési Kedvezmény + Hitel igényelhető!
Az építkezés 70%-os készültségi szinten tart.
Az épület műszaki átadása: 2024 év eleje.
Regisztrációs szám
U0045576
Az ingatlan adatai
Értékesités
eladó
Jogi státusz
új
Jelleg
lakás
Építési mód
tégla
Méret
76 m²
Bruttó méret
76 m²
Terasz / erkély mérete
9,4 m²
Fűtés
megújuló
Belmagasság
800 cm
Tájolás
Dél
Lépcsőház típusa
zárt lépcsőház
Állapot
Kiváló
Homlokzat állapota
Kiváló
Lépcsőház állapota
Kiváló
Környék
központi
Építés éve
2023
Fürdőszobák száma
1
Fekvés
utcai
Víz
Van
Gáz
Van
Villany
Van
Csatorna
Van
Tároló
Közös
Helyiségek
nappali
19.42 m²
szoba
15.86 m²
szoba
12 m²
konyha
6.7 m²
ebédlő
4.34 m²
közlekedő
6.77 m²
előszoba
1.21 m²
fürdőszoba
6.31 m²
wc
1.31 m²
erkély
15 m²