Eladó újépítésű lakás, P4798-1-0B-11-1101
Budapest XI. kerület, Kelenföld

195 960 000 Ft

500 000 €

  • 86,4m²
  • 4 szoba
  • 11. emelet

Premium Living on the Danube Waterfront in Újbuda

Ez a lakás:
NY,É,D-i tájolású, világos lakás a sétányra néző kilátással.
A természetes fénnyel teli, ablakos konyha, a két fürdőszoba és a praktikus háztartási helyiség a kényelmes mindennapokat szolgálja.
A lakáshoz két terasz tartozik: egyik a nappaliból, másik az egyik hálószobából nyílik, ideális elrendezést kínálva a közös és a privát terek elkülönítésére.
Az egyik hálószoba saját fürdőszobával rendelkezik, ami valódi prémium komfortot ad a lakásnak.

Regisztrációs szám

P4798-1-0B-11-1101

Az ingatlan adatai

Értékesités
eladó
Jogi státusz
új
Jelleg
lakás
Építési mód
tégla
Méret
86,4 m²
Bruttó méret
98,2 m²
Terasz / erkély mérete
24,2 m²
Belmagasság
270 cm
Lakáson belüli szintszám
1
Tájolás
Dél-nyugat
Panoráma
városi panoráma, Egyéb
Lépcsőház típusa
zárt lépcsőház
Állapot
Kiváló
Homlokzat állapota
Kiváló
Lépcsőház állapota
Kiváló
Környék
jó közlekedés, központi
Építés éve
2027
Fürdőszobák száma
2
Fekvés
udvari
Garázs
Külön vásárolható
Víz
Van
Villany
Van
Csatorna
Van
Lift
van
Tároló
Külön vásárolható
Vízpart távolsága
vízparti

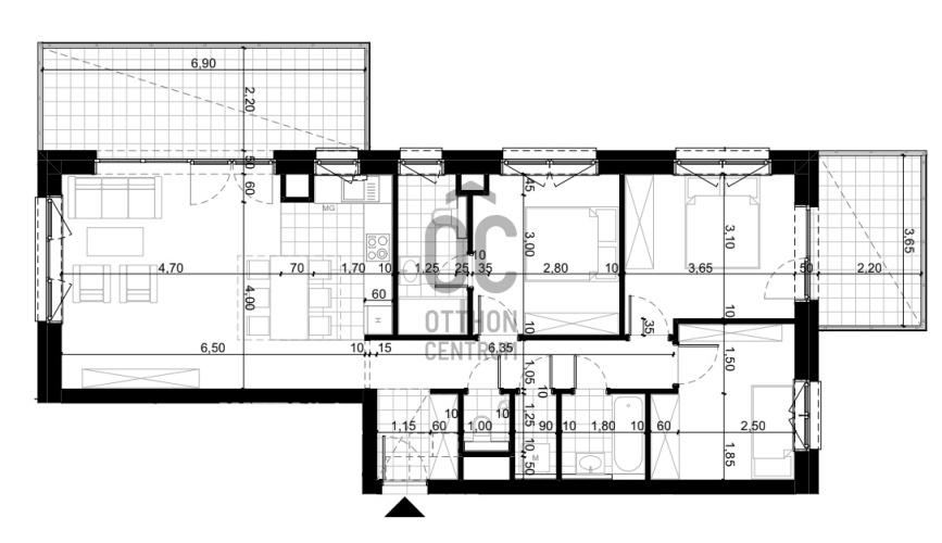
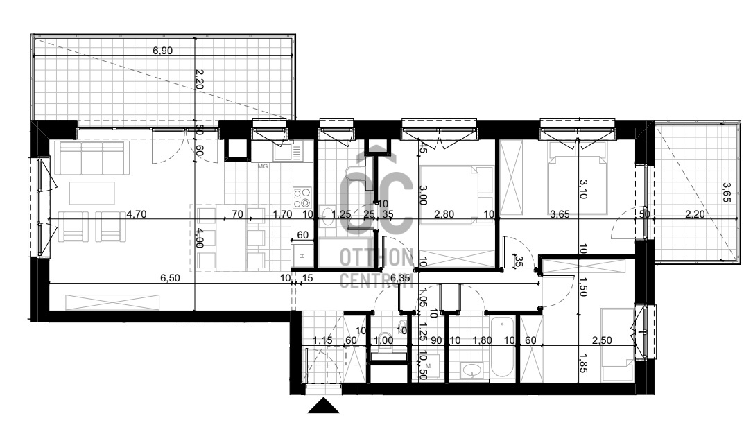
Helyiségek

előszoba
3.35 m²
nappali
22.8 m²
konyha
5.75 m²
ebédlő
3.96 m²
fürdőszoba
4 m²
hálószoba
12.18 m²
hálószoba
10.71 m²
hálószoba
9.48 m²
közlekedő
6.93 m²
fürdőszoba-wc
5.06 m²
wc-kézmosó
1.25 m²
háztartási helyiség
1.67 m²
terasz
15.86 m²
terasz
8.39 m²
Tóth Róbert
Tóth Róbert

Hitelszakértő

Irodánk kínálatából - II. kerület - TDG

for sale new construction apartment

Index image
13

for sale new construction apartment

Index image
11

kiadó lakás

Index image
13

eladó lakás

Index image
25

kiadó lakás

Index image
9

eladó lakás

Index image
14

kiadó lakás

Index image
12

eladó lakás

Index image
12

for sale apartment

Index image
17

kiadó lakás

Index image
17

kiadó lakás

Index image
24

kiadó lakás

Index image
15