275 900 000 Ft
729 000 €
- 126,5m²
- 5 szoba
In the 3rd district, in Ürömhegy, in a green environment, newly built semi-detached houses with garden connection for sale!
This project consists of 2 buildings and 4 apartments:
-----
I. Building (Kőpor Street): Year of construction: 2026.
*K-A apartment: 120.74 m² + balcony/terrace: 32.81 m², 4 rooms, 2 bathrooms, 2 surface parking spaces, plot: 405.5 m² – 216.0 million HUF.
*K-B apartment: 110.49 m² + balcony/terrace: 37.36 m², 4 rooms, 2 bathrooms, 1 surface parking space, plot: 405.5 m² – 209.9 million HUF.
II. Building (Ürömhegyi Lejtő): Year of construction: 2027.
*Ü-A apartment: 126.52 m² + balcony/terrace: 43.00 m², 5 rooms, 2 bathrooms, 2 parking spaces, plot: 405.5 m² – 275.9 million HUF.
*Ü-B apartment: 128.14 m² + balcony/terrace: 43.30 m², 5 rooms, 2 bathrooms, 2 parking spaces, plot: 405.5 m² – 275.9 million HUF.
-----
This listing refers to the following apartment:
Ü-A apartment: 126.52 m² + balcony/terrace: 43.00 m², 5 rooms, 2 bathrooms, 2 parking spaces, plot: 405.5 m² – 275.9 million HUF.
MAIN FEATURES OF THE APARTMENT:
*Newly built, using high-quality materials,
*Designed and executed with a modern concept,
*Practical layout and efficient use of space,
*Designed with a modern building envelope and low heat transfer coefficient,
*Bright rooms with insulated windows overlooking greenery,
*Motorized shutters,
*Ceiling height of 270–300 cm, providing very comfortable living spaces,
*Equipped with a heat pump heating and cooling system.
MAIN FEATURES OF THE BUILDING:
*Large plot, total 811 m²,
*Modern, minimalist façade fitting the surroundings,
*Number of apartments in the building: 2,
*Landscaped, spacious courtyard with direct garden access,
*Outdoor areas and yard equipped with lighting,
*Prepared for solar panel installation,
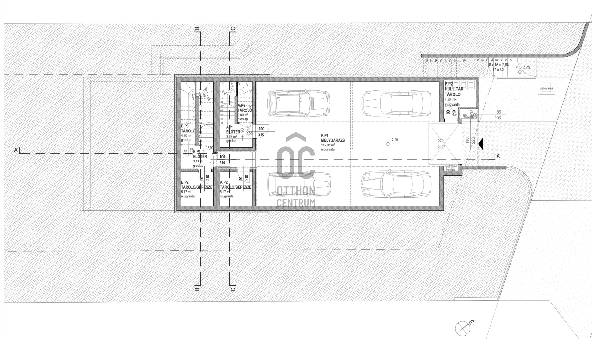
*The apartment has 2 parking spaces in an underground garage.
Ürömhegyi Street is an extremely quiet, detached-house area in Budapest’s 3rd district, where transport, healthcare, educational institutions and services are easily accessible, mainly thanks to nearby Bécsi Road and the Aranyhegy area. Ürömhegyi Lejtő therefore offers adequate infrastructure, easily accessible services and good public transport connections, making it an ideal choice for families and for those seeking a peaceful environment.
Services in the area within walking distance or a few minutes’ travel:
TRANSPORT: Public transport options include bus lines 160, 943 and 960, providing good connections towards the city centre and Óbuda, as well as lines 260 and 219. The main road in the area is Bécsi Road, which is quickly accessible both by car and public transport, with buses running more frequently in the weekday morning and afternoon peaks and less frequently at other times.
PHARMACIES: The Harsánylejtő Pharmacy at 314 Bécsi Road is open 24/7 and offers free street parking and a wide range of services, including both medical and veterinary products.
HEALTHCARE SERVICES: In the 3rd district, Szent Margit Hospital and several outpatient clinics provide primary and specialist care for residents. A salt room operates in the Csillaghegy Community House for respiratory and allergy problems, available exclusively to local residents with prior appointment, and social nursing and care services are also available in the area.
EDUCATIONAL AND CHILDCARE INSTITUTIONS: Kindergartens and primary schools are mainly located in the more central parts of the 3rd district; on average, around 10% of children attending district kindergartens and schools come from outside the district, and the Aranyhegy–Ürömhegy–Péterhegy area has a favourable educational catchment.
GROCERY SHOPS AND OTHER SERVICES: Everyday shopping is provided by a large CBA supermarket nearby, while major retail chains can be found along or close to Bécsi Road. Various additional services are available in the area, such as leisure, sports and cultural facilities, and a salt room in the Csillaghegy Community House.
FAVOURABLE MORTGAGE OPTIONS (high volume of loan placements): TAILOR-MADE MORTGAGE SOLUTIONS are offered to meet individual needs. Our independent mortgage centre compares the offers of ALL BANKS AND LENDING INSTITUTIONS available in the country for you free of charge, and our highly experienced colleagues are available by prior appointment even after regular working hours.
-----
I. Building (Kőpor Street): Year of construction: 2026.
*K-A apartment: 120.74 m² + balcony/terrace: 32.81 m², 4 rooms, 2 bathrooms, 2 surface parking spaces, plot: 405.5 m² – 216.0 million HUF.
*K-B apartment: 110.49 m² + balcony/terrace: 37.36 m², 4 rooms, 2 bathrooms, 1 surface parking space, plot: 405.5 m² – 209.9 million HUF.
II. Building (Ürömhegyi Lejtő): Year of construction: 2027.
*Ü-A apartment: 126.52 m² + balcony/terrace: 43.00 m², 5 rooms, 2 bathrooms, 2 parking spaces, plot: 405.5 m² – 275.9 million HUF.
*Ü-B apartment: 128.14 m² + balcony/terrace: 43.30 m², 5 rooms, 2 bathrooms, 2 parking spaces, plot: 405.5 m² – 275.9 million HUF.
-----
This listing refers to the following apartment:
Ü-A apartment: 126.52 m² + balcony/terrace: 43.00 m², 5 rooms, 2 bathrooms, 2 parking spaces, plot: 405.5 m² – 275.9 million HUF.
MAIN FEATURES OF THE APARTMENT:
*Newly built, using high-quality materials,
*Designed and executed with a modern concept,
*Practical layout and efficient use of space,
*Designed with a modern building envelope and low heat transfer coefficient,
*Bright rooms with insulated windows overlooking greenery,
*Motorized shutters,
*Ceiling height of 270–300 cm, providing very comfortable living spaces,
*Equipped with a heat pump heating and cooling system.
MAIN FEATURES OF THE BUILDING:
*Large plot, total 811 m²,
*Modern, minimalist façade fitting the surroundings,
*Number of apartments in the building: 2,
*Landscaped, spacious courtyard with direct garden access,
*Outdoor areas and yard equipped with lighting,
*Prepared for solar panel installation,
*The apartment has 2 parking spaces in an underground garage.
Ürömhegyi Street is an extremely quiet, detached-house area in Budapest’s 3rd district, where transport, healthcare, educational institutions and services are easily accessible, mainly thanks to nearby Bécsi Road and the Aranyhegy area. Ürömhegyi Lejtő therefore offers adequate infrastructure, easily accessible services and good public transport connections, making it an ideal choice for families and for those seeking a peaceful environment.
Services in the area within walking distance or a few minutes’ travel:
TRANSPORT: Public transport options include bus lines 160, 943 and 960, providing good connections towards the city centre and Óbuda, as well as lines 260 and 219. The main road in the area is Bécsi Road, which is quickly accessible both by car and public transport, with buses running more frequently in the weekday morning and afternoon peaks and less frequently at other times.
PHARMACIES: The Harsánylejtő Pharmacy at 314 Bécsi Road is open 24/7 and offers free street parking and a wide range of services, including both medical and veterinary products.
HEALTHCARE SERVICES: In the 3rd district, Szent Margit Hospital and several outpatient clinics provide primary and specialist care for residents. A salt room operates in the Csillaghegy Community House for respiratory and allergy problems, available exclusively to local residents with prior appointment, and social nursing and care services are also available in the area.
EDUCATIONAL AND CHILDCARE INSTITUTIONS: Kindergartens and primary schools are mainly located in the more central parts of the 3rd district; on average, around 10% of children attending district kindergartens and schools come from outside the district, and the Aranyhegy–Ürömhegy–Péterhegy area has a favourable educational catchment.
GROCERY SHOPS AND OTHER SERVICES: Everyday shopping is provided by a large CBA supermarket nearby, while major retail chains can be found along or close to Bécsi Road. Various additional services are available in the area, such as leisure, sports and cultural facilities, and a salt room in the Csillaghegy Community House.
FAVOURABLE MORTGAGE OPTIONS (high volume of loan placements): TAILOR-MADE MORTGAGE SOLUTIONS are offered to meet individual needs. Our independent mortgage centre compares the offers of ALL BANKS AND LENDING INSTITUTIONS available in the country for you free of charge, and our highly experienced colleagues are available by prior appointment even after regular working hours.
Regisztrációs szám
P4763-1-0A-NA-002
Az ingatlan adatai
Értékesités
eladó
Jogi státusz
új
Jelleg
ház
Építési mód
tégla
Méret
126,5 m²
Bruttó méret
169,5 m²
Telek méret
405,5 m²
Terasz / erkély mérete
43 m²
Kert méret
150 m²
Fűtés
hőszivattyú
Belmagasság
270 cm
Lakáson belüli szintszám
1
Tájolás
Dél-nyugat
Állapot
Kiváló
Homlokzat állapota
Kiváló
Környék
csendes, jó közlekedés, zöld
Építés éve
2027
Fürdőszobák száma
2
Társaház kert
igen
Garázs
Benne van az árban
Garázs férőhely
2
Víz
Van
Villany
Van
Csatorna
Van
Többgenerációs
igen
Tároló
Kötelezően vásárolandó
Helyiségek
előszoba
4.93 m²
közlekedő
4.48 m²
fürdőszoba
8.41 m²
nappali-étkező
33.21 m²
hálószoba
14.87 m²
konyha
11.53 m²
zuhanyzó
3 m²
hálószoba
12.47 m²
hálószoba
12.25 m²
hálószoba
8.12 m²
háztartási helyiség
1.65 m²
előszoba
3.63 m²
tároló
5.17 m²
tároló
2.8 m²
terasz
15.4 m²
terasz
27.6 m²
Kőrösi Róbert
Hitelszakértő