Eladó újépítésű lakás, P4753-1-0C-02-208
Budapest XI. kerület,

79 380 000 Ft

210 000 €

  • 46,9m²
  • 2 szoba
  • 2. emelet

Regisztrációs szám

P4753-1-0C-02-208

Az ingatlan adatai

Értékesités
eladó
Jogi státusz
új
Jelleg
lakás
Építési mód
tégla
Méret
46,9 m²
Bruttó méret
49,4 m²
Terasz / erkély mérete
5,1 m²
Fűtés
hőszivattyú
Belmagasság
270 cm
Tájolás
Nyugat
Lépcsőház típusa
zárt lépcsőház
Állapot
Kiváló
Homlokzat állapota
Kiváló
Lépcsőház állapota
Kiváló
Környék
csendes, jó közlekedés, zöld, központi
Építés éve
2028
Fürdőszobák száma
1
Fekvés
kertre néző
Víz
Van
Villany
Van
Csatorna
Van
Lift
van

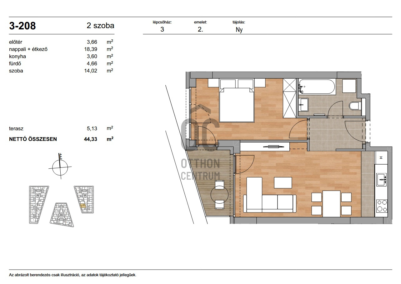
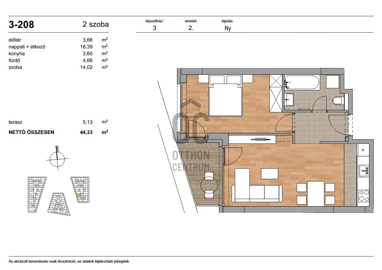
Helyiségek

előszoba
3.66 m²
nappali-étkező
18.39 m²
konyha
3.6 m²
fürdőszoba-wc
4.66 m²
szoba
14.02 m²
erkély
5.13 m²
Tóth Róbert
Tóth Róbert

Hitelszakértő

Irodánk kínálatából - III. kerület - WFC

for sale apartment

Index image
23

for sale new construction apartment

Index image
17

for sale apartment

Index image
19

for sale apartment

Index image
12

for rent apartment

Index image
36

for sale new construction apartment

Index image
18

for sale new construction apartment

Index image
18

for sale apartment

Index image
16

for sale developmental property

Index image
7

kiadó újépítésű lakás

Index image
16