295 000 000 Ft
773 000 €
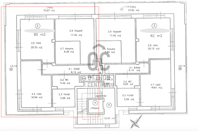
- 82m²
- 3 szoba
- 1. emelet
Modern, napfényes I. emeleti lakás – nagy méretű terasszal a II. kerület zöldövezetében!
Eladásra kínálunk egy kiváló elrendezésű, 82 m² nettó alapterületű, első emeleti lakást a II. kerület csendes, zöldövezeti részén!
Az újépítésű, prémium társasház magas műszaki minőséget és kényelmet biztosít, élhető terekkel és kiváló infrastruktúrával.
A lakást egy tágas 34 m²-es terasz egészíti ki, amely tökéletes helyszíne lehet családi étkezéseknek, napozásnak vagy esti kikapcsolódásnak.
Főbb jellemzők
Szobák száma: 3
Fürdőszobák: 1
Külön WC: 1
Nettó alapterület: 82 m²
Bruttó alapterület: 99 m²
Terasz: 34 m² – közvetlen kapcsolattal a nappaliból
Elhelyezkedés: 1. emelet
Elrendezés: modern, logikus térkialakítás
Fűtés: hőszivattyús, padlófűtés
Energiahatékonyság: magas (BB+)
Műszaki jellemzők
Hőszivattyús hűtő-fűtő rendszer és padlófűtés
Loxone okosotthon rendszer
Prémium minőségű burkolatok, szaniterek
Elektromos autótöltési lehetőség
Parkosított kert automata öntözőrendszerrel
Kaputelefon rendszer
Lift és akadálymentes közlekedés
Zöldtető és korszerű hőszigetelés
A lakáshoz opcionálisan megvásárolható tágas parkolóhely (15 M Ft/db), valamint egy 12 m²-es, dupla mosogatós tárolóhelyiség (10 M Ft), mely praktikus bővítése lehet az ingatlan kényelmének.
Parkolás
A pinceszinten elhelyezett, kényelmes méretű gépkocsibeállók biztosítják a lakók parkolását.
A parkolókból közvetlenül megközelíthető a lift és a lépcsőház, így teljes kényelemben juthatunk fel a lakásokhoz.
Környezet
A környék nyugodt, csendes, zöldövezeti, ugyanakkor kiváló közlekedéssel és infrastruktúrával rendelkezik.
A közelben számos bevásárlási lehetőség, iskola és nemzetközi intézmény található (pl. British International School of Budapest), valamint a Rózsadomb Center, Mammut Bevásárlóközpont, és több természetközeli sétaútvonal is elérhető pár perc alatt.
További részletekért hívjon mielőbb!
Egyedi igényekre szabott lakáshitelekkel állunk rendelkezésére. Bankfüggetlen Hitel Centrumunk az országban elérhető összes bank és hitelintézet ajánlatát versenyezteti az Ön számára díjmentesen.
Munkatársaink nagy szakmai tapasztalattal várják Önt az előre egyeztetett időpontban akár a normál munkaidő után is.
Az újépítésű, prémium társasház magas műszaki minőséget és kényelmet biztosít, élhető terekkel és kiváló infrastruktúrával.
A lakást egy tágas 34 m²-es terasz egészíti ki, amely tökéletes helyszíne lehet családi étkezéseknek, napozásnak vagy esti kikapcsolódásnak.
Főbb jellemzők
Szobák száma: 3
Fürdőszobák: 1
Külön WC: 1
Nettó alapterület: 82 m²
Bruttó alapterület: 99 m²
Terasz: 34 m² – közvetlen kapcsolattal a nappaliból
Elhelyezkedés: 1. emelet
Elrendezés: modern, logikus térkialakítás
Fűtés: hőszivattyús, padlófűtés
Energiahatékonyság: magas (BB+)
Műszaki jellemzők
Hőszivattyús hűtő-fűtő rendszer és padlófűtés
Loxone okosotthon rendszer
Prémium minőségű burkolatok, szaniterek
Elektromos autótöltési lehetőség
Parkosított kert automata öntözőrendszerrel
Kaputelefon rendszer
Lift és akadálymentes közlekedés
Zöldtető és korszerű hőszigetelés
A lakáshoz opcionálisan megvásárolható tágas parkolóhely (15 M Ft/db), valamint egy 12 m²-es, dupla mosogatós tárolóhelyiség (10 M Ft), mely praktikus bővítése lehet az ingatlan kényelmének.
Parkolás
A pinceszinten elhelyezett, kényelmes méretű gépkocsibeállók biztosítják a lakók parkolását.
A parkolókból közvetlenül megközelíthető a lift és a lépcsőház, így teljes kényelemben juthatunk fel a lakásokhoz.
Környezet
A környék nyugodt, csendes, zöldövezeti, ugyanakkor kiváló közlekedéssel és infrastruktúrával rendelkezik.
A közelben számos bevásárlási lehetőség, iskola és nemzetközi intézmény található (pl. British International School of Budapest), valamint a Rózsadomb Center, Mammut Bevásárlóközpont, és több természetközeli sétaútvonal is elérhető pár perc alatt.
További részletekért hívjon mielőbb!
Egyedi igényekre szabott lakáshitelekkel állunk rendelkezésére. Bankfüggetlen Hitel Centrumunk az országban elérhető összes bank és hitelintézet ajánlatát versenyezteti az Ön számára díjmentesen.
Munkatársaink nagy szakmai tapasztalattal várják Önt az előre egyeztetett időpontban akár a normál munkaidő után is.
Regisztrációs szám
P4752-1-01-01-003
Az ingatlan adatai
Értékesités
eladó
Jogi státusz
új
Jelleg
lakás
Építési mód
tégla
Méret
82 m²
Bruttó méret
99 m²
Terasz / erkély mérete
34 m²
Fűtés
hőszivattyú
Belmagasság
290 cm
Tájolás
Észak-kelet
Lépcsőház típusa
zárt lépcsőház
Állapot
Kiváló
Homlokzat állapota
Kiváló
Lépcsőház állapota
Kiváló
Környék
csendes, zöld
Építés éve
2025
Fürdőszobák száma
1
Fekvés
kertre néző
Garázs
Külön vásárolható
Víz
Van
Gáz
Utcán
Villany
Van
Csatorna
Van
Lift
van
Tároló
Önálló
Helyiségek
hálószoba
20.72 m²
nappali
17.45 m²
konyha
7.86 m²
előszoba
6.14 m²
hálószoba
18.81 m²
wc
4.65 m²
fürdőszoba
5.99 m²