Elérhető Otthon Start hitellel
Eladó újépítésű lakás,
P4748-1-01-FZ-001
Kőszegszerdahely,
49 900 000 Ft
128 000 €
- 47m²
- 2 szoba
- földszint


Kőszeg-hegyalján új építésű lakások eladók
Fedezze fel ezt a rendkívüli lehetőséget, amely tökéletes választás lehet középkorú családok, fiatal párok vagy befektetők számára! Kínálatunkban egy új, kiváló állapotú 47 négyzetméteres lakás található Kőszegszerdahelyen. A modern, prémium kivitelezésű ingatlan tágas nappalival, háló szobával és egy elegáns fürdőszobával rendelkezik, amely minden igényt kielégít. A lakás fűtése elektromos (infra) rendszerrel, míg a hűtésről klímaberendezés gondoskodik, így az év bármely időszakában kellemes hőmérsékletet biztosít. Az Inverteres hűtő/fűtő klíma , hővisszanyerős légcserélő gondoskodik a folyamatos jó minőségű levegőről.
Minimális rezsiköltség, hatékony és gyors, egyedi fűtésrendszer, nincsenek közös rezsiszámolások… A lakás különlegessége a 13,84 négyzetméteres terasz, amely közvetlen 51 nm kertkapcsolattal rendelkezik. Ez a zöld oázis ideális helyszínt biztosít a pihenéshez, baráti összejövetelekhez vagy akár egy nyugodt reggeli kávézáshoz. A LED hangulatvilágítás pedig még inkább fokozza a lakás hangulatát, lehetővé téve, hogy otthona mindig a legjobb fényben tündököljön. A környék csendes és biztonságos, ideális választás mindazok számára, akik szeretnék elkerülni a város zaját, miközben könnyen elérhetik a szükséges szolgáltatásokat. A közlekedési lehetőségek is kedvezőek: a közeli nagyvárosok és Ausztria autóval könnyen megközelíthető főbb utak révén. A közeli településeken található boltok, éttermek és szabadidős lehetőségek mind hozzájárulnak ahhoz, hogy az itt lakók mindennapjai kényelmesebbek és élvezetesebbek legyenek. Ez a tehermentes ingatlan nem csupán lakóhely, hanem egy életstílus megtestesítője. A hegyvidéki környezet és a modern megoldások tökéletes harmóniát alkotnak, így Ön is részese lehet ennek az élménynek. Ha bármilyen kérdése merülne fel, vagy szeretne többet megtudni erről a páratlan lehetőségről, bizalommal forduljon hozzánk. Az Ön elégedettsége a legfontosabb számunkra, és örömmel segítünk Önnek a legjobb döntés meghozatalában.
Minimális rezsiköltség, hatékony és gyors, egyedi fűtésrendszer, nincsenek közös rezsiszámolások… A lakás különlegessége a 13,84 négyzetméteres terasz, amely közvetlen 51 nm kertkapcsolattal rendelkezik. Ez a zöld oázis ideális helyszínt biztosít a pihenéshez, baráti összejövetelekhez vagy akár egy nyugodt reggeli kávézáshoz. A LED hangulatvilágítás pedig még inkább fokozza a lakás hangulatát, lehetővé téve, hogy otthona mindig a legjobb fényben tündököljön. A környék csendes és biztonságos, ideális választás mindazok számára, akik szeretnék elkerülni a város zaját, miközben könnyen elérhetik a szükséges szolgáltatásokat. A közlekedési lehetőségek is kedvezőek: a közeli nagyvárosok és Ausztria autóval könnyen megközelíthető főbb utak révén. A közeli településeken található boltok, éttermek és szabadidős lehetőségek mind hozzájárulnak ahhoz, hogy az itt lakók mindennapjai kényelmesebbek és élvezetesebbek legyenek. Ez a tehermentes ingatlan nem csupán lakóhely, hanem egy életstílus megtestesítője. A hegyvidéki környezet és a modern megoldások tökéletes harmóniát alkotnak, így Ön is részese lehet ennek az élménynek. Ha bármilyen kérdése merülne fel, vagy szeretne többet megtudni erről a páratlan lehetőségről, bizalommal forduljon hozzánk. Az Ön elégedettsége a legfontosabb számunkra, és örömmel segítünk Önnek a legjobb döntés meghozatalában.
Regisztrációs szám
P4748-1-01-FZ-001
Az ingatlan adatai
Értékesités
eladó
Jogi státusz
új
Jelleg
lakás
Építési mód
tégla
Méret
47 m²
Bruttó méret
50 m²
Terasz / erkély mérete
13,8 m²
Kert méret
51 m²
Fűtés
elektromos, infra
Belmagasság
265 cm
Tájolás
Dél-kelet
Lépcsőház típusa
zárt lépcsőház
Állapot
Kiváló
Homlokzat állapota
Kiváló
Lépcsőház állapota
Kiváló
Környék
csendes, jó közlekedés, zöld
Építés éve
2026
Fürdőszobák száma
1
Fekvés
udvari
Társaház kert
igen
Víz
Van
Gáz
Utcán
Villany
Van
Csatorna
Van
Kertkapcsolatos
igen
Tároló
Önálló
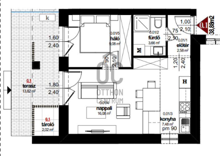
Helyiségek
előszoba
2.56 m²
fürdőszoba-wc
3.66 m²
konyha-étkező
7.48 m²
nappali
16 m²
hálószoba
9 m²
terasz
13.82 m²
tároló
2 m²