Elérhető Otthon Start hitellel
Eladó újépítésű lakás,
P4737-1-01-02-005
Nyíregyháza,
48 850 000 Ft
126 000 €
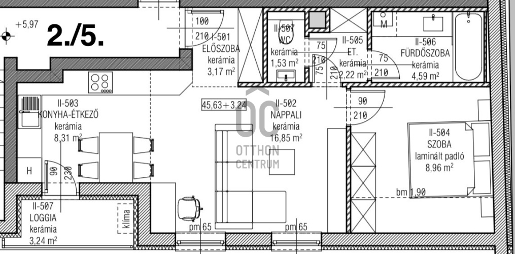
- 45,6m²
- 2 szoba
- 2. emelet




Új építésű lakás a Hatzel tér közelében!
Eladó 1 szobás, tágas amerikai konyhás nappalival rendelkező lakás, külön fürdőszobával és WC-vel. Minden lakáshoz saját erkély tartozik, amely kellemes kikapcsolódást nyújt. A szobákban laminált parketta, míg a többi helyiségben járólap burkolat található. A földszinten közös tároló áll a lakók rendelkezésére, az udvar közösen használható. Garázs és udvari gépkocsibeálló külön megvásárolható. Ideális választás pároknak vagy befektetés céljára is.
Regisztrációs szám
P4737-1-01-02-005
Az ingatlan adatai
Értékesités
eladó
Jogi státusz
új
Jelleg
lakás
Építési mód
tégla
Méret
45,6 m²
Bruttó méret
48,8 m²
Terasz / erkély mérete
3,2 m²
Fűtés
Gáz cirkó
Belmagasság
275 cm
Lakáson belüli szintszám
2
Tájolás
Kelet
Lépcsőház típusa
zárt lépcsőház
Állapot
Kiváló
Homlokzat állapota
Kiváló
Lépcsőház állapota
Kiváló
Környék
csendes, jó közlekedés, zöld, központi
Építés éve
2026
Fürdőszobák száma
1
Fekvés
utcai
Garázs
Külön vásárolható
Víz
Van
Gáz
Van
Villany
Van
Csatorna
Van
Tároló
Önálló
Helyiségek
szoba
8.96 m²
nappali
16.85 m²
konyha-étkező
8.31 m²
fürdőszoba
4.59 m²
wc
1.53 m²
előszoba
3.17 m²
közlekedő
2.22 m²

Czövek Zoltánné
Hitelszakértő