Eladó újépítésű lakás, P4726-V1-01-03-303
Budapest XIII. kerület, Angyalföld

84 884 000 Ft

217 000 €

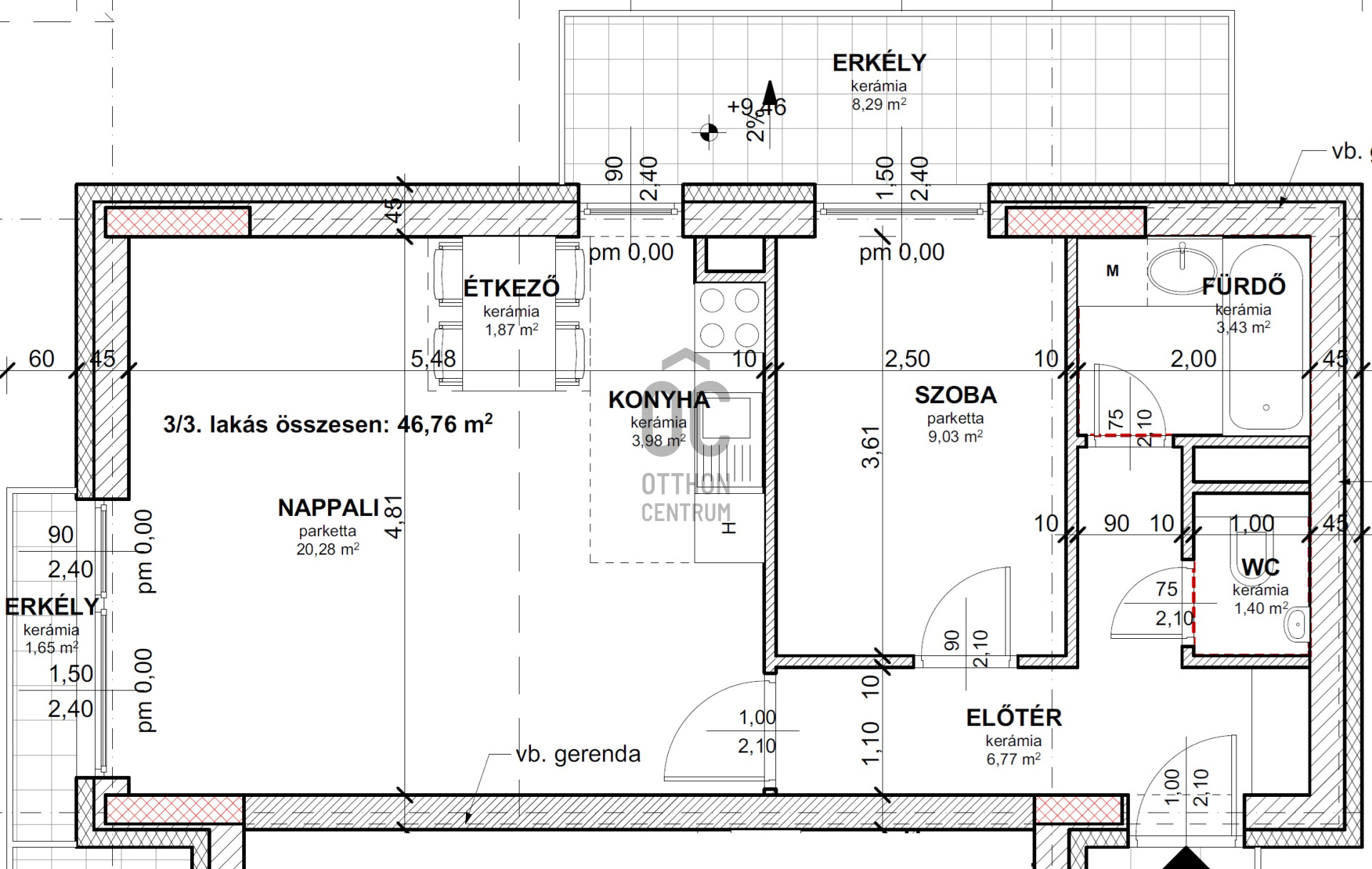
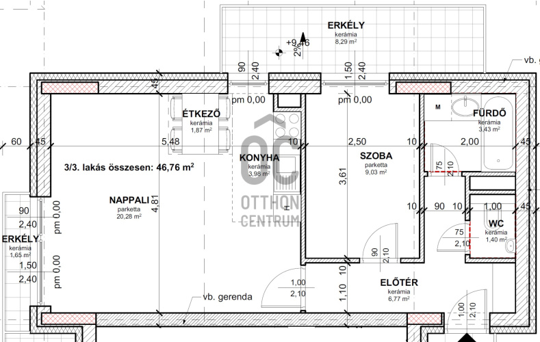
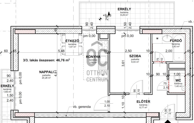
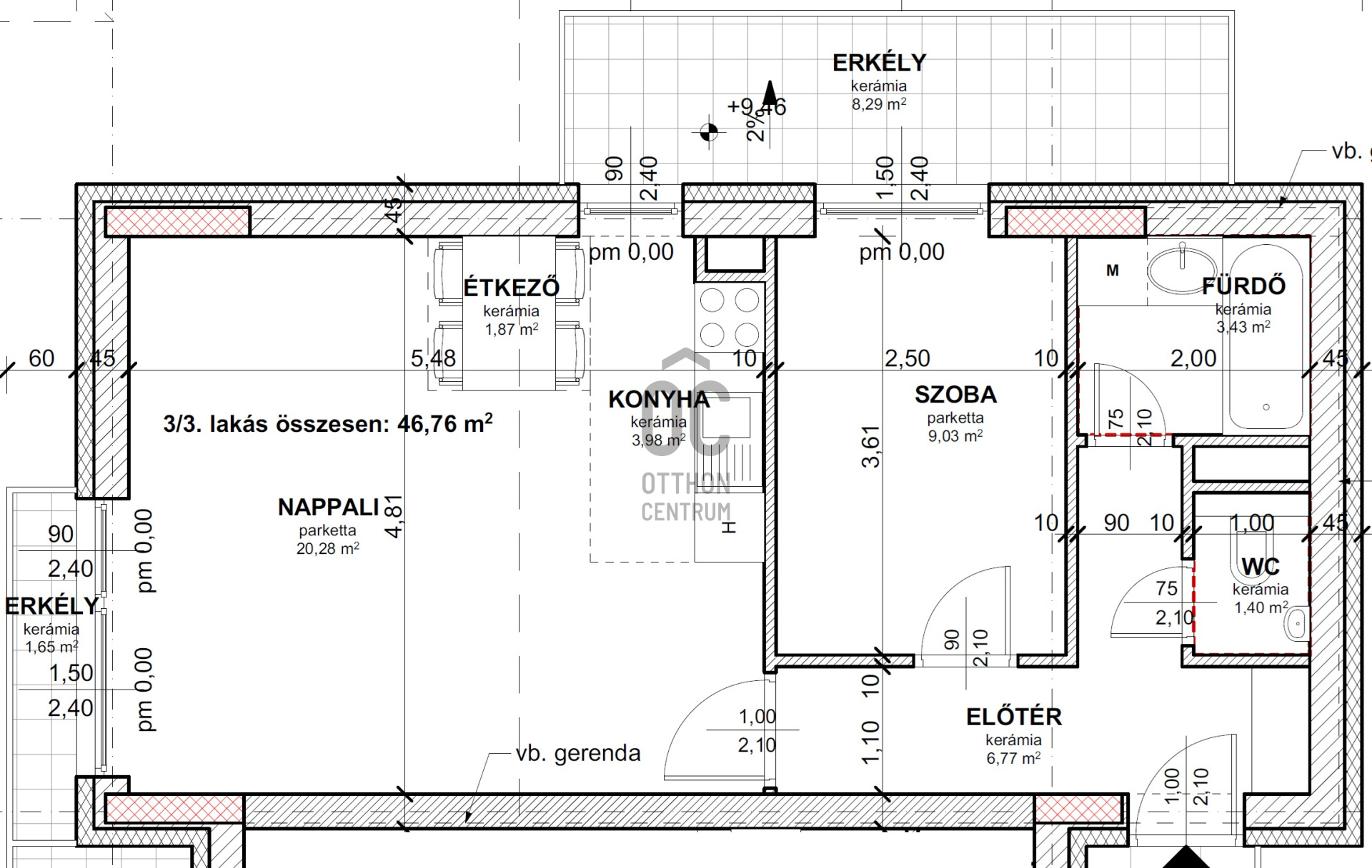
  • 46,7m²
  • 2 szoba
  • 3. emelet

Regisztrációs szám

P4726-V1-01-03-303

Az ingatlan adatai

Értékesités
eladó
Jogi státusz
új
Jelleg
lakás
Építési mód
tégla
Méret
46,7 m²
Bruttó méret
51,7 m²
Terasz / erkély mérete
10,1 m²
Fűtés
hőszivattyú
Belmagasság
270 cm
Lakáson belüli szintszám
1
Tájolás
Dél-nyugat
Lépcsőház típusa
zárt lépcsőház
Állapot
Kiváló
Homlokzat állapota
Kiváló
Lépcsőház állapota
Kiváló
Környék
csendes, jó közlekedés, zöld
Építés éve
2026
Fürdőszobák száma
1
Fekvés
kertre néző
Társaház kert
igen
Garázs
Külön vásárolható
Víz
Van
Gáz
Van
Villany
Van
Csatorna
Van
Lift
van
Tároló
Külön vásárolható

Helyiségek

nappali-konyha
26.13 m²
szoba
9.03 m²
fürdőszoba
2.43 m²
Berkes-Jakus Kinga
Berkes-Jakus Kinga

Hitelszakértő

Irodánk kínálatából - XIII. kerület - Béke Residence

for sale apartment

Index image
5

eladó lakás

Index image
22

for sale new construction apartment

Index image
7

eladó lakás

Index image
19