Eladó újépítésű lakás, P4726-V1-01-02-205
Budapest XIII. kerület, Angyalföld

81 147 000 Ft

211 000 €

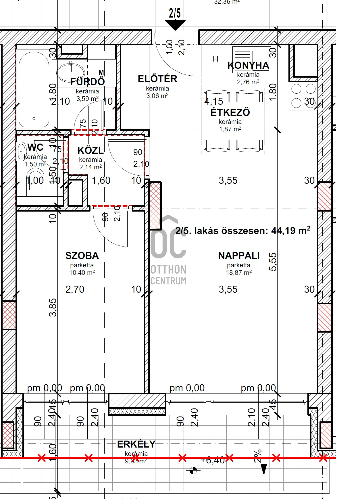
  • 44,1m²
  • 2 szoba
  • 2. emelet

Regisztrációs szám

P4726-V1-01-02-205

Az ingatlan adatai

Értékesités
eladó
Jogi státusz
új
Jelleg
lakás
Építési mód
tégla
Méret
44,1 m²
Bruttó méret
49,1 m²
Terasz / erkély mérete
9,9 m²
Fűtés
hőszivattyú
Belmagasság
270 cm
Lakáson belüli szintszám
1
Tájolás
Észak-kelet
Lépcsőház típusa
zárt lépcsőház
Állapot
Kiváló
Homlokzat állapota
Kiváló
Lépcsőház állapota
Kiváló
Környék
csendes, jó közlekedés, zöld
Építés éve
2026
Fürdőszobák száma
1
Fekvés
utcai
Társaház kert
igen
Garázs
Külön vásárolható
Víz
Van
Gáz
Van
Villany
Van
Csatorna
Van
Lift
van
Tároló
Külön vásárolható

Helyiségek

nappali-konyha
23.5 m²
szoba
10.4 m²
fürdőszoba
3.59 m²
Berkes-Jakus Kinga
Berkes-Jakus Kinga

Hitelszakértő

Irodánk kínálatából - XIII. kerület - Béke Residence

for sale apartment

Index image
data_sheet.details.realestate.section.main.otthonstart_flag.label
6

for sale new construction apartment

Index image
7

for sale apartment

Index image
10

for sale new construction apartment

Index image
5