Eladó újépítésű lakás, P4725-1-0A-03-002
Debrecen, Belváros

99 750 000 Ft

255 000 €

  • 54m²
  • 2 szoba
  • 3. emelet

BELVÁROSI ÚJÉPÍTÉSŰ LAKÁSOK, IRODA, ÜZLET - CS22

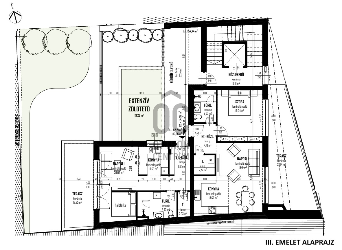
III. emelet 2. lakás 54 nm + 28 nm terasz:

- nappali
- konyha
- hálószoba
- előszoba
- tároló
- terasz

Regisztrációs szám

P4725-1-0A-03-002

Az ingatlan adatai

Értékesités
eladó
Jogi státusz
új
Jelleg
lakás
Építési mód
tégla
Méret
54 m²
Bruttó méret
82 m²
Terasz / erkély mérete
28 m²
Fűtés
gáz
Belmagasság
260 cm
Tájolás
Kelet
Lépcsőház típusa
zárt lépcsőház
Állapot
Kiváló
Homlokzat állapota
Kiváló
Lépcsőház állapota
Kiváló
Környék
jó közlekedés, központi
Építés éve
2026
Fürdőszobák száma
1
Fekvés
utcai
Garázs
Külön vásárolható
Víz
Van
Gáz
Van
Villany
Van
Csatorna
Van
Lift
van
Tároló
Külön vásárolható

Helyiségek

nappali
18 m²
konyha
9 m²
hálószoba
15 m²
fürdőszoba-wc
5 m²
közlekedő
4 m²
tároló
3 m²
terasz
28 m²
Czellér András
Czellér András

Hitelszakértő

Irodánk kínálatából - Debrecen - Kálvin tér

for sale family house

Index image
23

eladó családi ház

Index image
Elérhető Otthon Start hitellel
10

for sale panel apartment

Index image
data_sheet.details.realestate.section.main.otthonstart_flag.label
9

for sale family house

Index image
data_sheet.details.realestate.section.main.otthonstart_flag.label
41

for sale family house

Index image
data_sheet.details.realestate.section.main.otthonstart_flag.label
11

for sale new construction semi-detached house

Index image
data_sheet.details.realestate.section.main.otthonstart_flag.label
25

for sale family house

Index image
data_sheet.details.realestate.section.main.otthonstart_flag.label
13