87 300 000 Ft
226 000 €
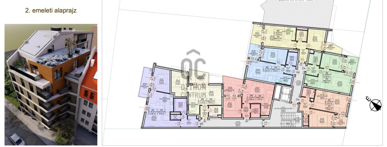
- 54,2m²
 - 2 szoba
 - 2. emelet
 
            
                                                            
            
                                                            Sure! Here’s the translation of the text into English:  ❗️SMART HOME - Near Corvin Quarter  Newly built apartments at an introductory price! Home / Investment  ⏺️ Location: - A dynamically developing part of the 8th district - Central public transportation - METRO, major transportation hubs within reach - Close to UNIVERSITIES and COLLEGES - Excellent infrastructure  ❗️ Technical Specifications: - High-quality construction in line with modern standards - NGBS SMART HOME system - Heat pump heating system - Wall cooling - Green garden with irrigation system  ⬆️ Apartments: - Super practical design - Choice of floor coverings - Terrace or balcony with every apartment - Garage available upon request  ✅ Loan processing - with favorable interest rates, tailored to individual needs! Legal assistance available upon request! Feel free to contact us!
                    Regisztrációs szám
P4696-1-00-02-207
                Az ingatlan adatai
Értékesités
                                        eladó
                                                                                                                                                Jogi státusz
                                        új
                                                                                                                                                Jelleg
                                        lakás
                                                                                                                                                                                                                                                                                        Építési mód
                                        tégla
                                                                                                                                                                                                                                                                                                                                                                                                                                                                                                    Méret
                                        54,2 m²
                                                                                                                                                Bruttó méret
                                        55,4 m²
                                                                                                                                                                                                                    Terasz / erkély mérete
                                        7,9 m²
                                                                                                                                                                                                                                                                                                                                                                                                                                Fűtés
                                        values.realestate.futes.26
                                                                                                                                                Belmagasság
                                        260 cm
                                                                                                                                                                                                                    Tájolás
                                        Észak-nyugat
                                                                                                                                                                                                                    Lépcsőház típusa
                                        zárt lépcsőház
                                                                                                                                                Állapot
                                        Kiváló
                                                                                                                                                Homlokzat állapota
                                        Kiváló
                                                                                                                                                Lépcsőház állapota
                                        Kiváló
                                                                                                                                                                                                                                                                                        Építés éve
                                        2026
                                                                                                                                                Fürdőszobák száma
                                        1
                                                                                                                                                Fekvés
                                        kertre néző
                                                                                                                                                                                                                                                                                                                                                            Garázs
                                        Külön vásárolható
                                                                                                                                                                                                                                                                                                                                                            Víz
                                        Van
                                                                                                                                                                                                                    Villany
                                        Van
                                                                                                                                                Csatorna
                                        Van
                                                                                                                                                Lift
                                        van
                                                                                                                                                                                                                                                                                                                                                                                                                                                                                                                        Helyiségek
előszoba
                                        6.12 m²
                                                                            nappali
                                        22.2 m²
                                                                            hálószoba
                                        12.24 m²
                                                                            konyha-étkező
                                        6.5 m²
                                                                            fürdőszoba
                                        5.66 m²
                                                                            wc
                                        1.53 m²
                                                                    
            
                            Pongó Miklós
Hitelszakértő