Elérhető Otthon Start hitellel
Eladó újépítésű lakás, P4686-C-01-FZ-002
Abádszalók

55 185 500 Ft

146 000 €

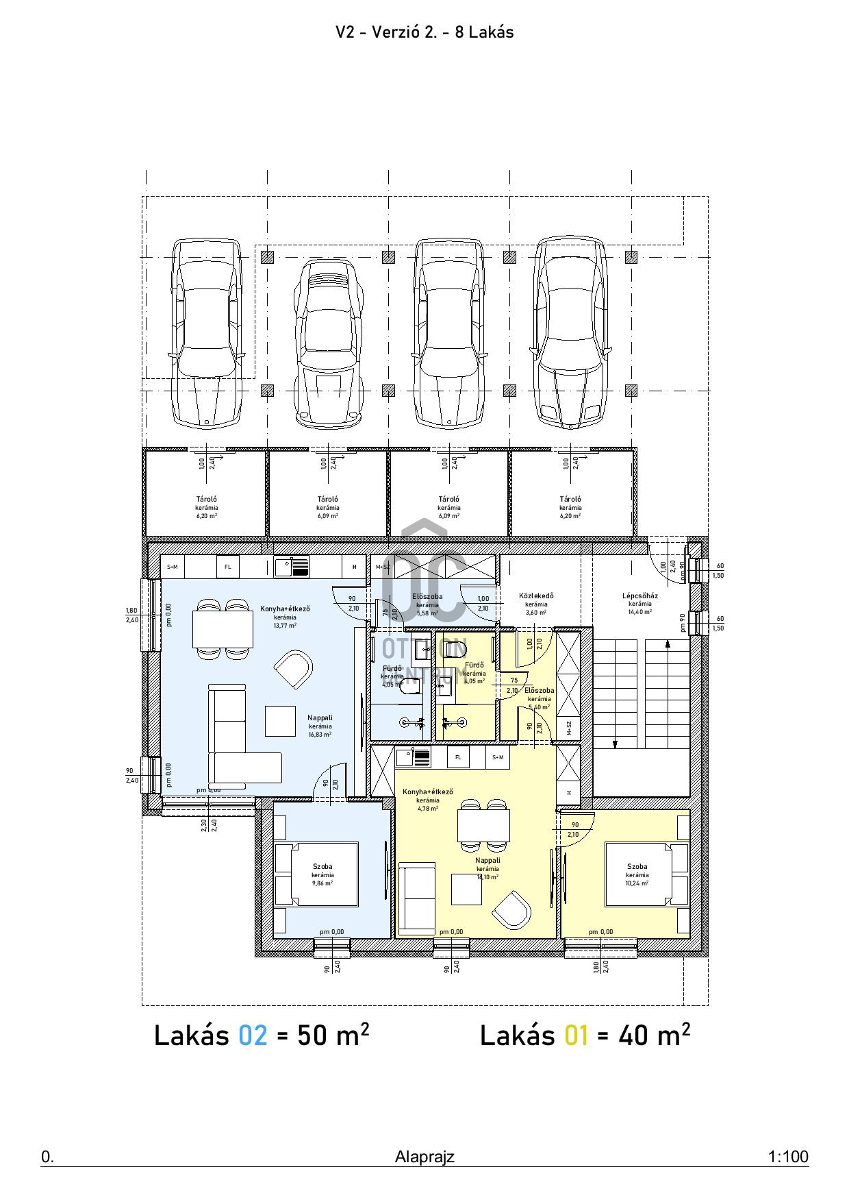
  • 50m²
  • 2 szoba
  • földszint
Kiemelt megbízás

Apartment 02 – 50 m²

Spacious ground-floor home with a large garden connection – a modern solution by the shores of Lake Tisza. 50 m² well-thought-out living space: living room with American kitchen, comfortable bedroom, and dining area. Due to its ground-floor location, it can be made fully accessible – ideal for seniors, families, or as a vacation home. Opportunity for a large garden connection – additional living space, freedom, green environment. Modern construction, low maintenance – an investment in tranquility by Lake Tisza.

Regisztrációs szám

P4686-C-01-FZ-002

Az ingatlan adatai

Értékesités
eladó
Jogi státusz
új
Jelleg
lakás
Építési mód
tégla
Méret
50 m²
Bruttó méret
58 m²
Terasz / erkély mérete
16 m²
Fűtés
gáz
Belmagasság
250 cm
Lakáson belüli szintszám
3
Tájolás
Dél
Lépcsőház típusa
zárt lépcsőház
Állapot
Kiváló
Homlokzat állapota
Kiváló
Lépcsőház állapota
Kiváló
Környék
jó közlekedés, zöld, központi
Építés éve
2027
Fürdőszobák száma
1
Fekvés
utcai
Társaház kert
igen
Garázs
Külön vásárolható
Víz
Van
Gáz
Van
Villany
Van
Csatorna
Van
Tároló
Külön vásárolható
Vízpart távolsága
200 méterre

Helyiségek

szoba
9.86 m²
nappali
16.83 m²
konyha-étkező
13.77 m²
terasz
16 m²
Pomaházi Pál
Pomaházi Pál

Hitelszakértő

Irodánk kínálatából - Tiszafüred

for sale family house

Index image
data_sheet.details.realestate.section.main.otthonstart_flag.label
19

for sale agricultural property

Index image
4

for sale family house

Index image
data_sheet.details.realestate.section.main.otthonstart_flag.label
19

for sale family house

Index image
data_sheet.details.realestate.section.main.otthonstart_flag.label
18

for sale family house

Index image
data_sheet.details.realestate.section.main.otthonstart_flag.label
38

for sale family house

Index image
data_sheet.details.realestate.section.main.otthonstart_flag.label
9

for sale family house

Index image
data_sheet.details.realestate.section.main.otthonstart_flag.label
18

for sale family house

Index image
data_sheet.details.realestate.section.main.otthonstart_flag.label
15

for sale family house

Index image
data_sheet.details.realestate.section.main.otthonstart_flag.label
20

for sale family house

Index image
data_sheet.details.realestate.section.main.otthonstart_flag.label
16

for sale vacation home

Index image
14