Elérhető Otthon Start hitellel
Eladó újépítésű lakás, P4686-A-01-02-008
Abádszalók

85 775 500 Ft

221 000 €

  • 57,9m²
  • 3 szoba
  • 2. emelet
Kiemelt megbízás

Modern lakások a Tisza-tónál!

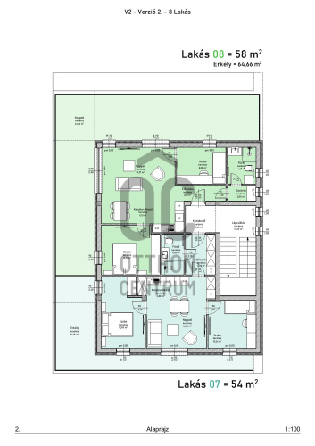
LAKÁS -08/ 57.96 m2
TERASZ- 08/ 64.66 m2
A projekt gyöngyszeme – 58 m² lakás, 64 m²-es terasszal
Ez a lakás valódi kuriózum. Különleges méretek, világos terek, óriási terasz – akár kültéri nappalinak is.
Tökéletes választás prémium igényekhez vagy különleges élettérre vágyóknak.

Extra lehetőség:
A lakásokhoz külön vásárolható 4 db garázs és 4 db tárolóhelyiség, korlátozott számban – érdeklődj időben!

Regisztrációs szám

P4686-A-01-02-008

Az ingatlan adatai

Értékesités
eladó
Jogi státusz
új
Jelleg
lakás
Építési mód
tégla
Méret
57,9 m²
Bruttó méret
90,2 m²
Terasz / erkély mérete
64,6 m²
Fűtés
gáz
Belmagasság
250 cm
Lakáson belüli szintszám
3
Tájolás
Nyugat
Lépcsőház típusa
zárt lépcsőház
Állapot
Kiváló
Homlokzat állapota
Kiváló
Lépcsőház állapota
Kiváló
Környék
jó közlekedés, zöld, központi
Építés éve
2027
Fürdőszobák száma
1
Fekvés
udvari
Társaház kert
igen
Garázs
Külön vásárolható
Víz
Van
Gáz
Van
Villany
Van
Csatorna
Van
Tároló
Külön vásárolható
Vízpart távolsága
200 méterre

Helyiségek

előszoba
2.94 m²
gardrób
2 m²
fürdőszoba-wc
4.65 m²
hálószoba
8.08 m²
hálószoba
12.51 m²
konyha-étkező
9.51 m²
nappali
16.27 m²
terasz
64.66 m²
Pomaházi Pál
Pomaházi Pál

Hitelszakértő

Irodánk kínálatából - Tiszafüred

for sale family house

Index image
data_sheet.details.realestate.section.main.otthonstart_flag.label
30

for sale family house

Index image
data_sheet.details.realestate.section.main.otthonstart_flag.label
17

for sale family house

Index image
data_sheet.details.realestate.section.main.otthonstart_flag.label
18

for sale family house

Index image
data_sheet.details.realestate.section.main.otthonstart_flag.label
17

for sale family house

Index image
data_sheet.details.realestate.section.main.otthonstart_flag.label
29

for sale family house

Index image
data_sheet.details.realestate.section.main.otthonstart_flag.label
24

for sale family house

Index image
data_sheet.details.realestate.section.main.otthonstart_flag.label
27

for sale family house

Index image
data_sheet.details.realestate.section.main.otthonstart_flag.label
18

for sale family house

Index image
data_sheet.details.realestate.section.main.otthonstart_flag.label
24

for sale family house

Index image
data_sheet.details.realestate.section.main.otthonstart_flag.label
21