Elérhető Otthon Start hitellel
Eladó újépítésű családi ház,
P4685-1-02-NA-002
Debrecen, Júlia-telep
145 000 000 Ft
373 000 €
- 120m²
- 5 szoba

Apafája Mini Lakópark
Regisztrációs szám
P4685-1-02-NA-002
Az ingatlan adatai
Értékesités
eladó
Jogi státusz
új
Jelleg
ház
Építési mód
tégla
Méret
120 m²
Bruttó méret
150 m²
Telek méret
606 m²
Terasz / erkély mérete
16 m²
Fűtés
values.realestate.futes.27
Belmagasság
270 cm
Tájolás
Dél-nyugat
Állapot
Kiváló
Homlokzat állapota
Kiváló
Környék
csendes, jó közlekedés, zöld
Építés éve
2025
Fürdőszobák száma
1
Garázs
Benne van az árban
Garázs férőhely
1
Víz
Van
Villany
Van
Csatorna
Van
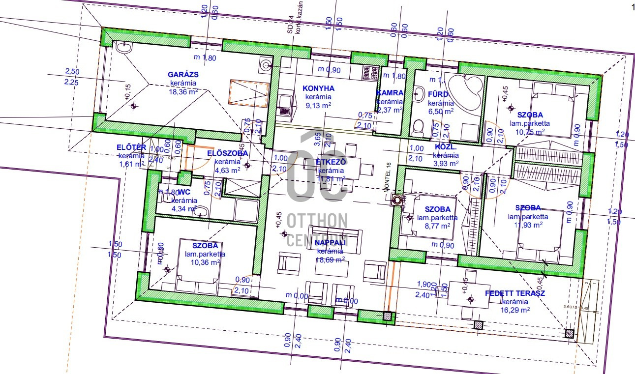
Helyiségek
nappali-étkező
30 m²
konyha
9 m²
szoba
11 m²
szoba
11 m²
szoba
10 m²
szoba
9 m²
fürdőszoba-wc
7 m²

Plébán László
Hitelszakértő