Elérhető Otthon Start hitellel
Eladó újépítésű lakás,
P4662-1-01-02-014
Nyíregyháza,
39 000 000 Ft
101 000 €
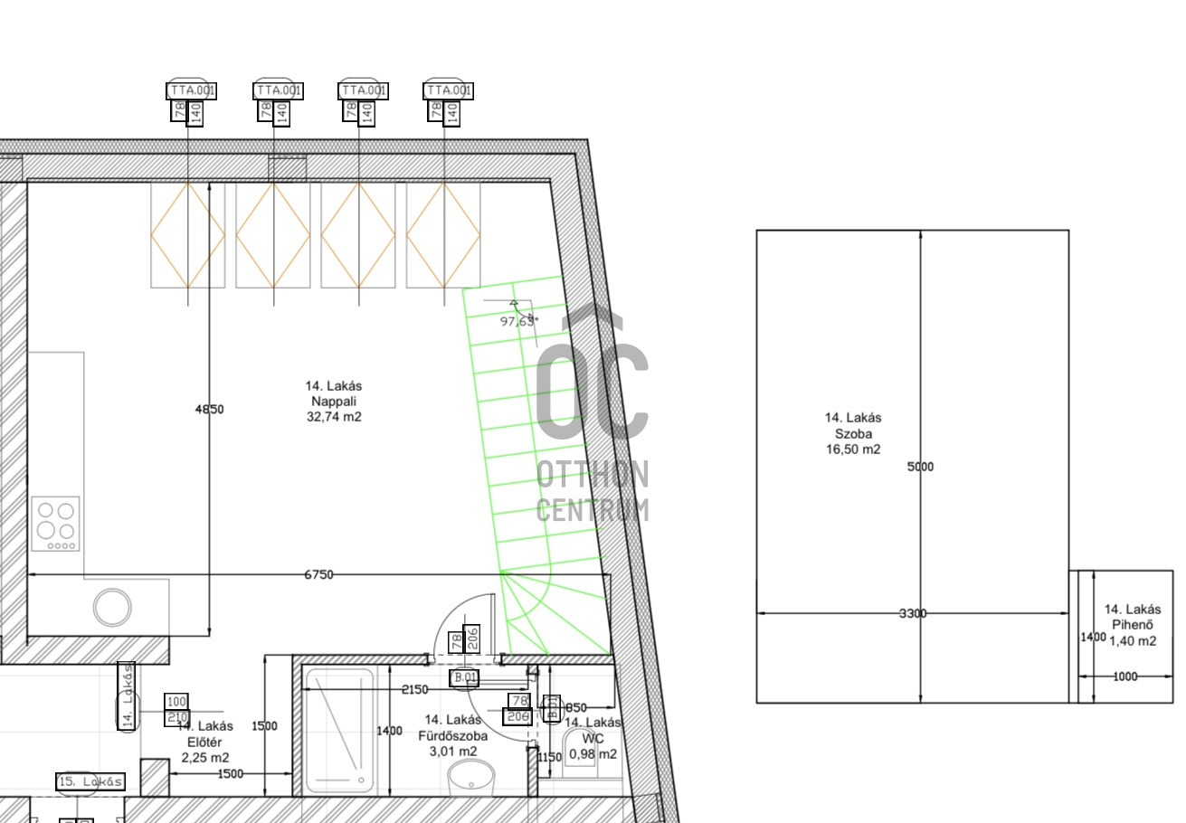
- 38,9m²
- 2 szoba
- 2. emelet









ÚJ ÉPÍTÉSŰ LAKÁSOK, ÜZLETHELYISÉGEK NYíREGYHÁZA
Regisztrációs szám
P4662-1-01-02-014
Az ingatlan adatai
Értékesités
eladó
Jogi státusz
új
Jelleg
lakás
Építési mód
tégla
Méret
38,9 m²
Bruttó méret
47 m²
Fűtés
hőszivattyú
Belmagasság
270 cm
Lakáson belüli szintszám
1
Tájolás
Észak-kelet
Lépcsőház típusa
zárt lépcsőház
Állapot
Kiváló
Homlokzat állapota
Kiváló
Lépcsőház állapota
Kiváló
Környék
jó közlekedés, központi
Építés éve
2025
Fürdőszobák száma
1
Fekvés
udvari
Garázs
Külön vásárolható
Víz
Van
Villany
Van
Csatorna
Van
Helyiségek
előszoba
2.25 m²
nappali
32.74 m²
fürdőszoba
3.01 m²
wc
0.98 m²

Czövek Zoltánné
Hitelszakértő