Eladó újépítésű lakás, P4648-1-0A-FZ-004
Budapest VII. kerület, Középső Erzsébetváros

142 084 492 Ft

366 000 €

  • 74m²
  • 3 szoba
  • földszint

Kiváló lokáció, értékálló befektetés!

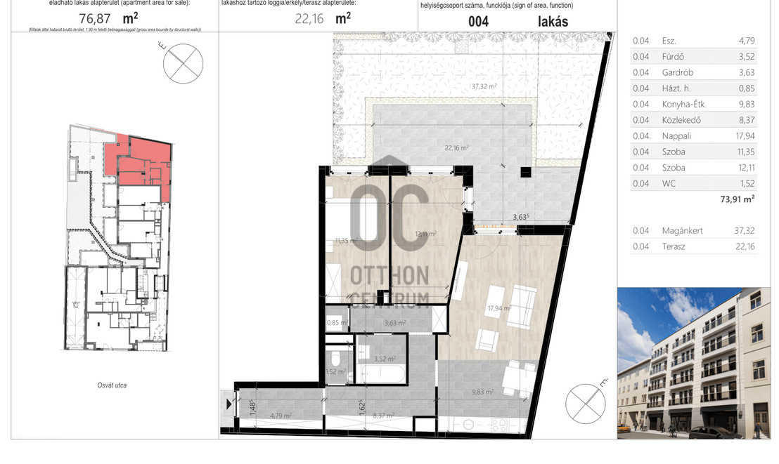
Az ingatlan a földszinten található. Kertre néző. Különlegessége, hogy a lakáshoz tartozik egy 37 m2-es magánkert.

Regisztrációs szám

P4648-1-0A-FZ-004

Az ingatlan adatai

Értékesités
eladó
Jogi státusz
új
Jelleg
lakás
Építési mód
tégla
Méret
74 m²
Bruttó méret
87,1 m²
Terasz / erkély mérete
22 m²
Fűtés
hőszivattyú
Belmagasság
260 cm
Tájolás
Észak-nyugat
Lépcsőház típusa
zárt lépcsőház
Állapot
Kiváló
Homlokzat állapota
Kiváló
Lépcsőház állapota
Kiváló
Építés éve
2026
Fürdőszobák száma
1
Fekvés
kertre néző
Garázs
Külön vásárolható
Víz
Van
Villany
Van
Csatorna
Van
Lift
van
Kertkapcsolatos
igen

Helyiségek

nappali
0 m²
konyha-étkező
0 m²
előszoba
0 m²
gardrób
0 m²
háztartási helyiség
0 m²
közlekedő
0 m²
fürdőszoba
0 m²
wc-kézmosó
0 m²
hálószoba
0 m²
hálószoba
0 m²
terasz
0 m²
Ruczek Krisztina
Ruczek Krisztina

Hitelszakértő

Irodánk kínálatából - V. kerület - Hild tér

for sale new construction family house

Index image
22

for sale apartment

Index image
25

for sale panel apartment

Index image
data_sheet.details.realestate.section.main.otthonstart_flag.label
11

for sale apartment

Index image
18

for sale apartment

Index image
23

for sale family house

Index image
12