Eladó újépítésű sorház, P4625-1-0A-NA-001
Debrecen, Széchenyi-kert

170 000 000 Ft

446 000 €

  • 144m²
  • 4 szoba

EXKLUZÍV OTTHONOK A SZÉCHENYI-KERTBEN

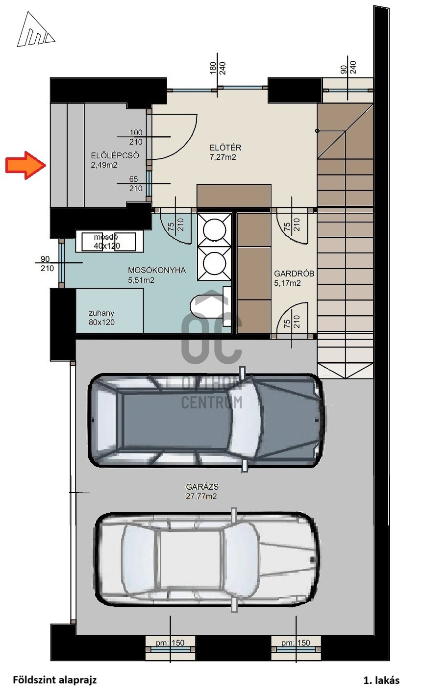
1. lakás Br. 170 nm, 100 nm kertkapcsolattal:

Földszint:
- duplagarázs (28 nm)
- mosókonyha zuhanyzóval (6 nm)
- gardrób (5 nm)
- közlekedő (7 nm)

I. Emelet:
- amerikaikonyhás nappali étkezővel (46 nm)
- erkélykapcsolat (26 nm)

II. Emelet:
- 3 hálószoba (10 - 10 - 10 nm)
- 2 fürdőszoba (4 és 5 nm)
- erkélykapcsolat (27 m)

Regisztrációs szám

P4625-1-0A-NA-001

Az ingatlan adatai

Értékesités
eladó
Jogi státusz
új
Jelleg
ház
Építési mód
tégla
Méret
144 m²
Bruttó méret
170 m²
Telek méret
163 m²
Terasz / erkély mérete
53 m²
Fűtés
Gáz cirkó
Belmagasság
270 cm
Lakáson belüli szintszám
2
Tájolás
Dél
Állapot
Kiváló
Homlokzat állapota
Kiváló
Környék
csendes, jó közlekedés, központi
Építés éve
2025
Fürdőszobák száma
3
Garázs
Benne van az árban
Víz
Van
Gáz
Van
Villany
Van
Csatorna
Van

Helyiségek

nappali
27 m²
konyha
9 m²
ebédlő
10 m²
hálószoba
10 m²
hálószoba
10 m²
hálószoba
10 m²
fürdőszoba-wc
5 m²
Czellér András
Czellér András

Hitelszakértő

Irodánk kínálatából - Debrecen - Kálvin tér

for sale apartment

Index image
data_sheet.details.realestate.section.main.otthonstart_flag.label
11

for sale family house

Index image
data_sheet.details.realestate.section.main.otthonstart_flag.label
11

for sale new construction family house

Index image
data_sheet.details.realestate.section.main.otthonstart_flag.label
8

for sale family house

Index image
data_sheet.details.realestate.section.main.otthonstart_flag.label
18

eladó lakás

Index image
Elérhető Otthon Start hitellel
12

for sale family house

Index image
data_sheet.details.realestate.section.main.otthonstart_flag.label
12