Elérhető Otthon Start hitellel
Eladó újépítésű ikerház,
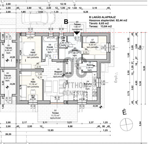
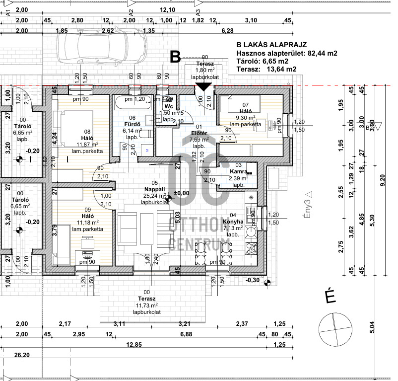
P4605-1-0B-NA-000
Kiskunlacháza,
75 000 000 Ft
192 000 €
- 89m²
- 4 szoba

Regisztrációs szám
P4605-1-0B-NA-000
Az ingatlan adatai
Értékesités
eladó
Jogi státusz
új
Jelleg
ház
Építési mód
tégla
Méret
89 m²
Bruttó méret
89,1 m²
Telek méret
300 m²
Terasz / erkély mérete
13,6 m²
Fűtés
hőszivattyú
Belmagasság
260 cm
Tájolás
Észak
Állapot
Kiváló
Homlokzat állapota
Kiváló
Építés éve
2025
Fürdőszobák száma
1
Víz
Van
Gáz
Utcán
Villany
Van
Csatorna
Van
Tároló
Önálló
Helyiségek
nappali
25.24 m²
konyha-étkező
7.13 m²
terasz
11.73 m²
terasz
1.8 m²
előszoba
7.69 m²
fürdőszoba-wc
6.14 m²
wc-kézmosó
1.5 m²
szoba
11.87 m²
szoba
11.18 m²
szoba
9.3 m²

Joó Krisztina
Hitelszakértő