Eladó újépítésű lakás, P4589-1-01-03-011
Budapest VI. kerület, Külső VI.

78 750 000 Ft

205 000 €

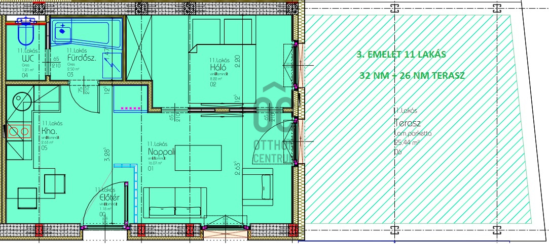
  • 45m²
  • 2 szoba
  • 3. emelet

Regisztrációs szám

P4589-1-01-03-011

Az ingatlan adatai

Értékesités
eladó
Jogi státusz
új
Jelleg
lakás
Építési mód
ytong
Méret
45 m²
Bruttó méret
62 m²
Terasz / erkély mérete
30 m²
Fűtés
hőszivattyú
Belmagasság
270 cm
Tájolás
Észak-nyugat
Lépcsőház típusa
függőfolyosó
Állapot
Kiváló
Homlokzat állapota
Kiváló
Lépcsőház állapota
Kiváló
Építés éve
2022
Fürdőszobák száma
1
Fekvés
udvari
Víz
Van
Villany
Van
Csatorna
Van
Lift
van

Helyiségek

nappali-étkező
20 m²
hálószoba
8 m²
tetőterasz
30 m²
fürdőszoba
3 m²
wc
1 m²
Vitéz Kornél
Vitéz Kornél

Hitelszakértő

Irodánk kínálatából - XIII. kerület - Pozsonyi út

eladó kereskedelmi ingatlan

Index image
15

eladó lakás

Index image
Elérhető Otthon Start hitellel
22

eladó kereskedelmi ingatlan

Index image
11

eladó kereskedelmi ingatlan

Index image
10

eladó családi ház

Index image
Elérhető Otthon Start hitellel
21

eladó kereskedelmi ingatlan

Index image
7

eladó kereskedelmi ingatlan

Index image
12