135 500 000 Ft
345 000 €
- 53,8m²
- 3 szoba
- 1. emelet










Szépvölgy Residence, nyugalom, csend és jó levegő
Szépvölgy Residence, nyugalom, csend és jó levegő
2. kerületben, Szépvölgyben, közvetlenül erdős természetvédelmi terület mellett került kialakításra, egy magas minőségben megépített, 4 szintes lakóépület. A földszint + 3 emeleti elrendezés 16 lakás kialakítását eredményezte, stúdió (garzon), nappali +1, nappali + 2, nappali + 3 és nappali + 4 hálószobai elosztással.
A lakások között van teraszos és erkélyes változat is. A csatolt lakás listában mindenki megtalálja a számára megfelelő tájolású, elrendezésű és áru ingatlant.
A látványtervek a kialakítható lehetőségek egy részét mutatják be!
Az épület 90 %-ban készen van, a burkolatok, szaniterek és belső kialakítások az új Tulajdonosok elképzelései szerint kerülnek majd kialakításra.
Birtokba adás:
Adásvételi szerződést követő 90 napon belül.
A penthouse lakás átadása: 6 hónap.
Műszaki kialakítás, VÉTELÁR TARTALMAZZA:
A lakásokban padlófűtés, helyiségenként klímatizálás lesz kialakítva.
Hidegburkolatok/ melegburkolatok választhatók: 30.000.ft/ m2
Szaniterek: Homelux prémium termékek.
kád: 400.000.ft./ db., wc: 80.000.ft./ db., csaptelepek: 30.000.ft./db.,zuhanyszett: 80.000.ft. /db.
Belső nyílászárók: Homelux dekor fóliás beltéri ajtók választható színnel. 100.000.ft/db.
Lakáslista, KULCSRAKÉSZ ÁRAK:
ELADVA: Fsz 1.-es lakás: 58 m2 (nappali + 2 hálószoba), +terasz 13 nm,
ELADVA: Fsz 2.-es lakás: 64 m2 (nappali + 2 hálószoba).
ELADVA: Fsz 3-as lakás: 36 m2 (nappali + 1 hálószoba)+30 m2 kert +12 m2 terasz.
ELADVA: Fsz 4/1 stúdió: 31.15 m2 nettó + 9.86 m2 terasz.
*Fsz 4/2 stúdió: 25,78 m2 nettó + 8,6 m2 terasz.
Ára: 49.9 Mft.
ELADVA: Fsz 5-ös lakás: 43 m2( nappali + 1 hálószoba).
ELADVA: Fsz 6-os lakás: 52 m2 ( nappali + 1 hálószoba) + 25 m2 terasz.
ELADVA: 1.emelet 7-es lakás: 73 m2 (nappali + 2 hálószoba) + terasz 37,5 m2,
*1.emelet 8.-as lakás: 94 m2 ( nappali +2 hálószoba) + terasz 16 m2,
amely áll: nappali 45.34 m2, szoba 15.23 m2, fürdő 8.09 m2, szoba 9.3 m2, fürdő: 4.1 m2, wc 1.85 m2, előtér: 5.33, konyha 5.21 m2 helyiségekből.
Ára: 196 Mft, 2 db udvari gk. beállóval.
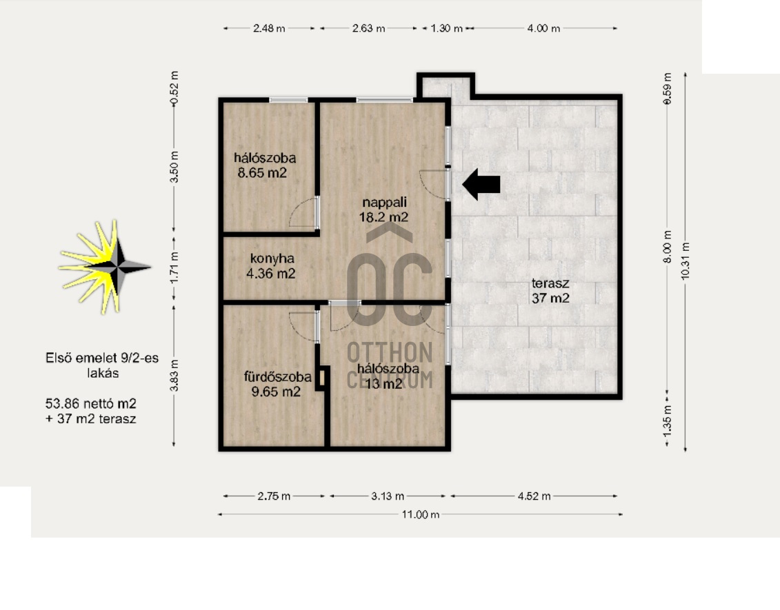
ELADVA: 1. emelet 9/1-es lakás: 54 m2, nappali + 1 vagy 2 hálószoba+ 17.3 m2 erkély+ autóbeálló:
*1.emelet 9/2-es lakás: 54 m2, nappali + 1 vagy két hálószoba + 37 m2 terasz + autóbeálló: 135.5 Mft.
2. emeleti lakások, nappali + 1 VAGY 2 hálószobás elrendezéssel:
*2. emelet 1: 63,78 m2+7.86 erkély = 139.9 Mft autóbeállóval.
*2. emelet 2: 52,11 m2 + 13,2 m2 erkély= 110,9 MFt autóbeállóval.
*2.emelet 3.: 56.06 m2 + 16 m2 erkély= 124.9 Mft autóbeállóval.
*2.emelet 4: 92 m2 + 41.5 m2 terasz = 199 Mft autóbeállóval.
3. emelet 11-es lakás: 139 m2 (nappali 3 vagy 4 háló) +240 m2 tetőterasz-360 fokos körpanorámával, +84 m2 terasz körbe, + 50 m2 terasz.
Ára: 534,5 Mft, 2 db udvari gk. beállóval.
2. kerületben, Szépvölgyben, közvetlenül erdős természetvédelmi terület mellett került kialakításra, egy magas minőségben megépített, 4 szintes lakóépület. A földszint + 3 emeleti elrendezés 16 lakás kialakítását eredményezte, stúdió (garzon), nappali +1, nappali + 2, nappali + 3 és nappali + 4 hálószobai elosztással.
A lakások között van teraszos és erkélyes változat is. A csatolt lakás listában mindenki megtalálja a számára megfelelő tájolású, elrendezésű és áru ingatlant.
A látványtervek a kialakítható lehetőségek egy részét mutatják be!
Az épület 90 %-ban készen van, a burkolatok, szaniterek és belső kialakítások az új Tulajdonosok elképzelései szerint kerülnek majd kialakításra.
Birtokba adás:
Adásvételi szerződést követő 90 napon belül.
A penthouse lakás átadása: 6 hónap.
Műszaki kialakítás, VÉTELÁR TARTALMAZZA:
A lakásokban padlófűtés, helyiségenként klímatizálás lesz kialakítva.
Hidegburkolatok/ melegburkolatok választhatók: 30.000.ft/ m2
Szaniterek: Homelux prémium termékek.
kád: 400.000.ft./ db., wc: 80.000.ft./ db., csaptelepek: 30.000.ft./db.,zuhanyszett: 80.000.ft. /db.
Belső nyílászárók: Homelux dekor fóliás beltéri ajtók választható színnel. 100.000.ft/db.
Lakáslista, KULCSRAKÉSZ ÁRAK:
ELADVA: Fsz 1.-es lakás: 58 m2 (nappali + 2 hálószoba), +terasz 13 nm,
ELADVA: Fsz 2.-es lakás: 64 m2 (nappali + 2 hálószoba).
ELADVA: Fsz 3-as lakás: 36 m2 (nappali + 1 hálószoba)+30 m2 kert +12 m2 terasz.
ELADVA: Fsz 4/1 stúdió: 31.15 m2 nettó + 9.86 m2 terasz.
*Fsz 4/2 stúdió: 25,78 m2 nettó + 8,6 m2 terasz.
Ára: 49.9 Mft.
ELADVA: Fsz 5-ös lakás: 43 m2( nappali + 1 hálószoba).
ELADVA: Fsz 6-os lakás: 52 m2 ( nappali + 1 hálószoba) + 25 m2 terasz.
ELADVA: 1.emelet 7-es lakás: 73 m2 (nappali + 2 hálószoba) + terasz 37,5 m2,
*1.emelet 8.-as lakás: 94 m2 ( nappali +2 hálószoba) + terasz 16 m2,
amely áll: nappali 45.34 m2, szoba 15.23 m2, fürdő 8.09 m2, szoba 9.3 m2, fürdő: 4.1 m2, wc 1.85 m2, előtér: 5.33, konyha 5.21 m2 helyiségekből.
Ára: 196 Mft, 2 db udvari gk. beállóval.
ELADVA: 1. emelet 9/1-es lakás: 54 m2, nappali + 1 vagy 2 hálószoba+ 17.3 m2 erkély+ autóbeálló:
*1.emelet 9/2-es lakás: 54 m2, nappali + 1 vagy két hálószoba + 37 m2 terasz + autóbeálló: 135.5 Mft.
2. emeleti lakások, nappali + 1 VAGY 2 hálószobás elrendezéssel:
*2. emelet 1: 63,78 m2+7.86 erkély = 139.9 Mft autóbeállóval.
*2. emelet 2: 52,11 m2 + 13,2 m2 erkély= 110,9 MFt autóbeállóval.
*2.emelet 3.: 56.06 m2 + 16 m2 erkély= 124.9 Mft autóbeállóval.
*2.emelet 4: 92 m2 + 41.5 m2 terasz = 199 Mft autóbeállóval.
3. emelet 11-es lakás: 139 m2 (nappali 3 vagy 4 háló) +240 m2 tetőterasz-360 fokos körpanorámával, +84 m2 terasz körbe, + 50 m2 terasz.
Ára: 534,5 Mft, 2 db udvari gk. beállóval.
Regisztrációs szám
P4549-1-01-01-092
Az ingatlan adatai
Értékesités
eladó
Jogi státusz
használt
Jelleg
lakás
Építési mód
tégla
Méret
53,8 m²
Bruttó méret
90 m²
Terasz / erkély mérete
37 m²
Belmagasság
280 cm
Lakáson belüli szintszám
1
Tájolás
Észak-nyugat
Lépcsőház típusa
nincs
Állapot
Kiváló
Homlokzat állapota
Kiváló
Lépcsőház állapota
Kiváló
Építés éve
2025
Fürdőszobák száma
2
Fekvés
kertre néző
Víz
Van
Gáz
Utcán
Villany
Van
Csatorna
Van
Helyiségek
nappali-konyha
18.2 m²
szoba
13 m²
szoba
8.65 m²
fürdőszoba-wc
9.65 m²
fürdőszoba-wc
4.36 m²

Horváth Szabina
Hitelszakértő