79 497 000 Ft
205 000 €
- 42m²
- 2 szoba
- 5. emelet






LUXUS TETŐTÉRI ÚJÉPÍTÉSŰ LAKÁSOK A BELVÁROSBAN
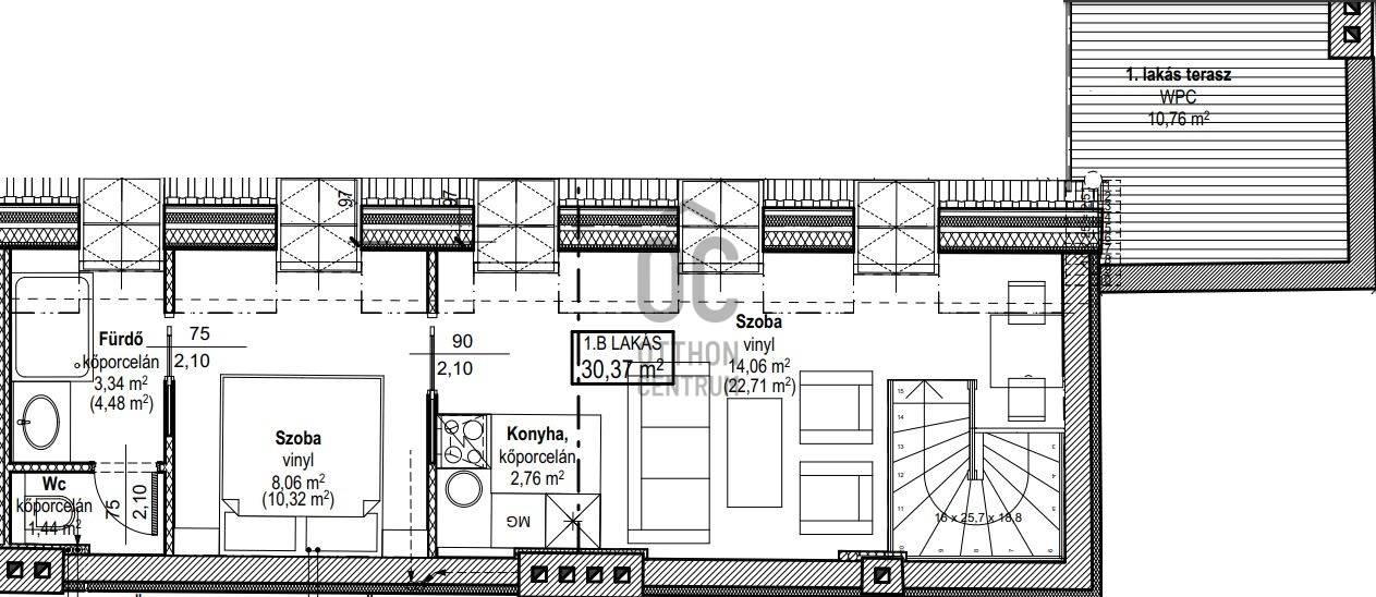
1. B. LAKÁS
5. EMELET
2 SZOBA 42 NM, 11 NM TETŐTERASZ, BRUTTO 50 NM
AZ ALATTA FEKVŐ 1.A. LAKÁSTÓL FIZKAILAG TELJESEN ELKÜLÖNÜLŐ, KÜLÖN BEJÁRATÚ, ALBETÍTÉSKOR KÖZÖS HELYRAJZISZÁMOT KAPNAK ÉS OSZTATLAN KÖZÖS TULAJDONT ALKOTNAK, ÜGYVÉDI HASZNÁLATI MEGOSZTÁSSAL
5. EMELET
2 SZOBA 42 NM, 11 NM TETŐTERASZ, BRUTTO 50 NM
AZ ALATTA FEKVŐ 1.A. LAKÁSTÓL FIZKAILAG TELJESEN ELKÜLÖNÜLŐ, KÜLÖN BEJÁRATÚ, ALBETÍTÉSKOR KÖZÖS HELYRAJZISZÁMOT KAPNAK ÉS OSZTATLAN KÖZÖS TULAJDONT ALKOTNAK, ÜGYVÉDI HASZNÁLATI MEGOSZTÁSSAL
Regisztrációs szám
P4544-1-01-05-001
Az ingatlan adatai
Értékesités
eladó
Jogi státusz
új
Jelleg
lakás
Építési mód
ytong
Méret
42 m²
Bruttó méret
50 m²
Terasz / erkély mérete
11 m²
Fűtés
hőszivattyú
Belmagasság
280 cm
Lakáson belüli szintszám
2
Tájolás
Dél-nyugat
Panoráma
városi panoráma
Lépcsőház típusa
függőfolyosó
Állapot
Kiváló
Homlokzat állapota
Kiváló
Lépcsőház állapota
Kiváló
Környék
jó közlekedés, központi
Építés éve
2023
Fürdőszobák száma
1
Fekvés
udvari
Víz
Van
Villany
Van
Csatorna
Van
Lift
van
Helyiségek
nappali-étkező
14 m²
hálószoba
8 m²
konyha
3 m²
fürdőszoba
4 m²
wc
1 m²
lépcsőház
5 m²

Vitéz Kornél
Hitelszakértő