170 200 000 Ft
438 000 €
- 92m²
- 4 szoba
- 4. emelet








LUXUS TETŐTÉRI ÚJÉPÍTÉSŰ LAKÁSOK A BELVÁROSBAN
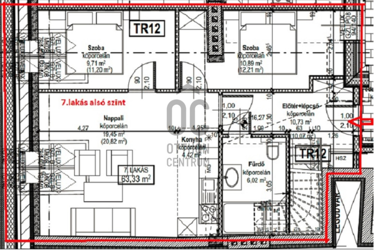
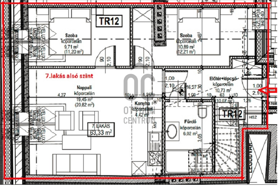
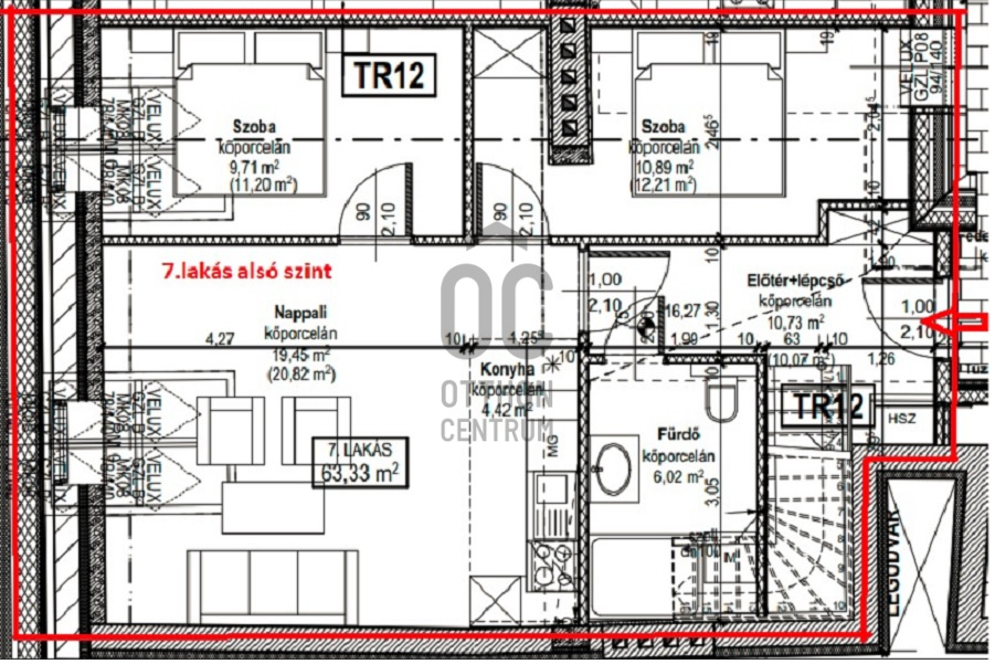
7. LAKÁS,:
KÉT SZINTES, UTCAI NÉZET, 92 NM NETTO ÉS 113 NM BRUTTO LAKÁS MÉRET
AMERIKAI KONYHÁS NAPPALI, 4 SZOBA + 10 NM-ES GALÉRIA, MELY AKÁR KIS NAPPALIKÉNT IS MŰKÖDHET, 2 FÜRDŐSZOBA, 9 NM-ES TETŐTERASZ,
KÉT SZINTES, UTCAI NÉZET, 92 NM NETTO ÉS 113 NM BRUTTO LAKÁS MÉRET
AMERIKAI KONYHÁS NAPPALI, 4 SZOBA + 10 NM-ES GALÉRIA, MELY AKÁR KIS NAPPALIKÉNT IS MŰKÖDHET, 2 FÜRDŐSZOBA, 9 NM-ES TETŐTERASZ,
Regisztrációs szám
P4544-1-01-04-007
Az ingatlan adatai
Értékesités
eladó
Jogi státusz
új
Jelleg
lakás
Építési mód
ytong
Méret
92 m²
Bruttó méret
113 m²
Terasz / erkély mérete
9 m²
Fűtés
hőszivattyú
Belmagasság
280 cm
Lakáson belüli szintszám
2
Tájolás
Dél-kelet
Lépcsőház típusa
függőfolyosó
Állapot
Kiváló
Homlokzat állapota
Kiváló
Lépcsőház állapota
Kiváló
Építés éve
2023
Fürdőszobák száma
2
Fekvés
utcai
Víz
Van
Villany
Van
Csatorna
Van
Lift
van
Helyiségek
nappali-konyha
24 m²
hálószoba
10 m²
hálószoba
11 m²
fürdőszoba-wc
6 m²
előszoba
10 m²
hálószoba
9 m²
galéria
10 m²
fürdőszoba-wc
4 m²
terasz
9 m²

Vitéz Kornél
Hitelszakértő