Eladó újépítésű lakás, P4544-1-01-04-006
Budapest VI. kerület, Belső VI.

88 800 000 Ft

233 000 €

  • 48m²
  • 2 szoba
  • 4. emelet

LUXUS TETŐTÉRI ÚJÉPÍTÉSŰ LAKÁSOK A BELVÁROSBAN

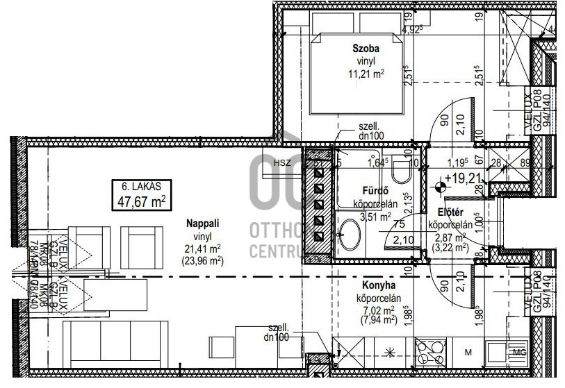
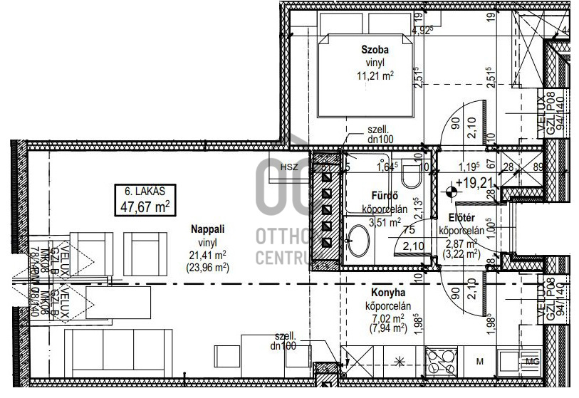
6. LAKÁS :
EGY SZINTES, KÉT KÜLÖN BEJÁRATÚ SZOBÁVAL, A 4. EMELETEN, UTCAI NÉZETTEL
LAKÁS NETTO 48 NM, BRUTTÓ 50 NM

Regisztrációs szám

P4544-1-01-04-006

Az ingatlan adatai

Értékesités
eladó
Jogi státusz
új
Jelleg
lakás
Építési mód
ytong
Méret
48 m²
Bruttó méret
52 m²
Fűtés
hőszivattyú
Belmagasság
280 cm
Lakáson belüli szintszám
1
Tájolás
Dél-kelet
Panoráma
városi panoráma
Lépcsőház típusa
függőfolyosó
Állapot
Kiváló
Homlokzat állapota
Kiváló
Lépcsőház állapota
Kiváló
Környék
jó közlekedés, központi
Építés éve
2023
Fürdőszobák száma
1
Fekvés
utcai
Víz
Van
Villany
Van
Csatorna
Van
Lift
van

Helyiségek

nappali-konyha
29 m²
hálószoba
11 m²
fürdőszoba-wc
4 m²
előszoba
3 m²
Vitéz Kornél
Vitéz Kornél

Hitelszakértő

Irodánk kínálatából - XIII. kerület - Pozsonyi út

for sale plot

Index image
5

for sale commercial property

Index image
12

for sale family house

Index image
data_sheet.details.realestate.section.main.otthonstart_flag.label
15