Eladó újépítésű lakás, P4544-1-01-04-003
Budapest VI. kerület, Belső VI.

101 750 000 Ft

267 000 €

  • 55m²
  • 2 szoba
  • 4. emelet

LUXUS TETŐTÉRI ÚJÉPÍTÉSŰ PROJEKTLAKÁSOK A BELVÁROSBAN

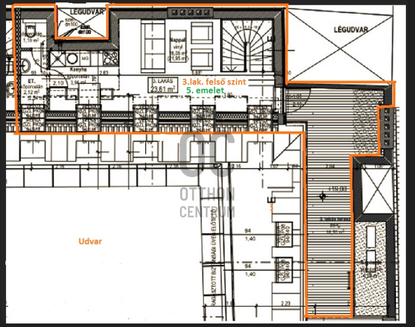
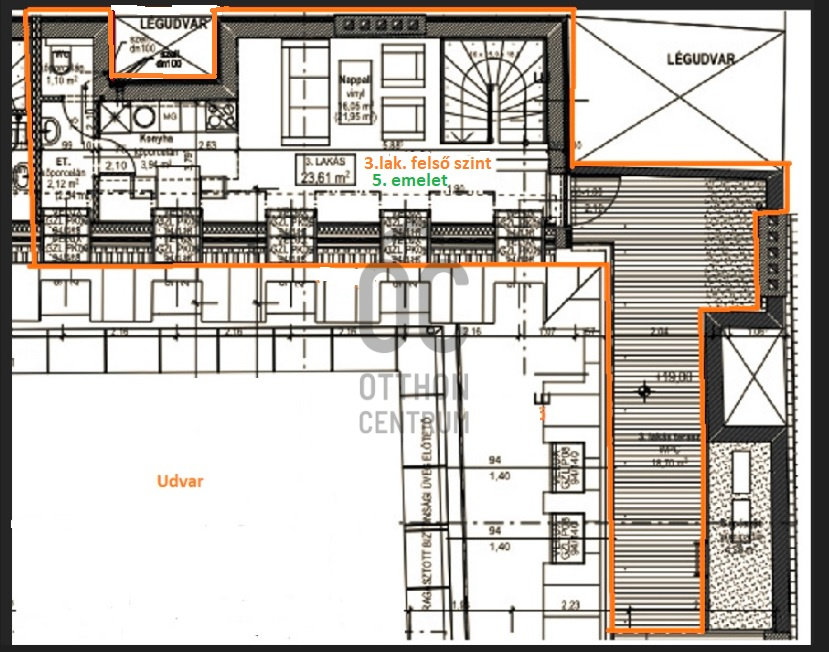
3. LAKÁS :
2 SZINTES, 2 SZOBÁS , 19 NM-ES TETŐTERASSZAL, 45 NM NETTO, 64 NM BRUTTO ALAPTERÜLETTEL

Regisztrációs szám

P4544-1-01-04-003

Az ingatlan adatai

Értékesités
eladó
Jogi státusz
új
Jelleg
lakás
Építési mód
ytong
Méret
55 m²
Bruttó méret
64 m²
Terasz / erkély mérete
19 m²
Fűtés
hőszivattyú
Belmagasság
280 cm
Lakáson belüli szintszám
2
Tájolás
Észak-kelet
Panoráma
városi panoráma
Lépcsőház típusa
függőfolyosó
Állapot
Kiváló
Homlokzat állapota
Kiváló
Lépcsőház állapota
Kiváló
Környék
csendes, jó közlekedés, központi
Építés éve
2023
Fürdőszobák száma
2
Fekvés
udvari
Víz
Van
Villany
Van
Csatorna
Van
Lift
van

Helyiségek

nappali-étkező
16 m²
hálószoba
11 m²
gardrób
2 m²
fürdőszoba-wc
4 m²
lépcsőház
4 m²
konyha
4 m²
mosdó
2 m²
wc
1 m²
tetőterasz
19 m²
Vitéz Kornél
Vitéz Kornél

Hitelszakértő

Irodánk kínálatából - XIII. kerület - Pozsonyi út

for sale plot

Index image
5

for sale commercial property

Index image
12

for sale family house

Index image
data_sheet.details.realestate.section.main.otthonstart_flag.label
15