Elérhető Otthon Start hitellel
Eladó újépítésű lakás,
P4439-A-01-01-003
Pécs, Egyetemváros
94 000 000 Ft
242 000 €
- 74,3m²
- 3 szoba
- 1. emelet


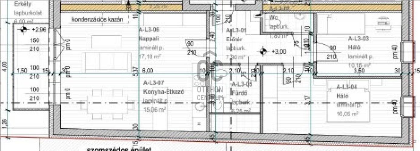
A épület 1. emelet L3 lakás
Nappali 2 háló erkély
Nappali 2 háló erkély
Regisztrációs szám
P4439-A-01-01-003
Az ingatlan adatai
Értékesités
eladó
Jogi státusz
új
Jelleg
lakás
Építési mód
tégla
Méret
74,3 m²
Bruttó méret
80,3 m²
Terasz / erkély mérete
6 m²
Fűtés
Gáz cirkó
Belmagasság
270 cm
Tájolás
Nyugat
Lépcsőház típusa
zárt lépcsőház
Állapot
Kiváló
Homlokzat állapota
Kiváló
Lépcsőház állapota
Kiváló
Környék
csendes, jó közlekedés, központi
Építés éve
2024
Fürdőszobák száma
1
Fekvés
udvari
Garázs
Külön vásárolható
Víz
Van
Gáz
Van
Villany
Van
Csatorna
Van
Helyiségek
nappali
17.1 m²
konyha-étkező
15.06 m²
hálószoba
10.15 m²
hálószoba
16.05 m²
wc-kézmosó
1.8 m²
fürdőszoba
6.25 m²
előszoba
7.9 m²
erkély
6 m²

Mecseki Lászlóné - Éva
Hitelszakértő