Eladó újépítésű lakás, P4298-1-0B-02-001
Budapest II. kerület, Törökvész, Törökvész út

949 000 000 Ft

2 436 000 €

  • 150m²
  • 3 szoba
  • 2. emelet

Regisztrációs szám

P4298-1-0B-02-001

Az ingatlan adatai

Értékesités
eladó
Jogi státusz
új
Jelleg
lakás
Építési mód
tégla
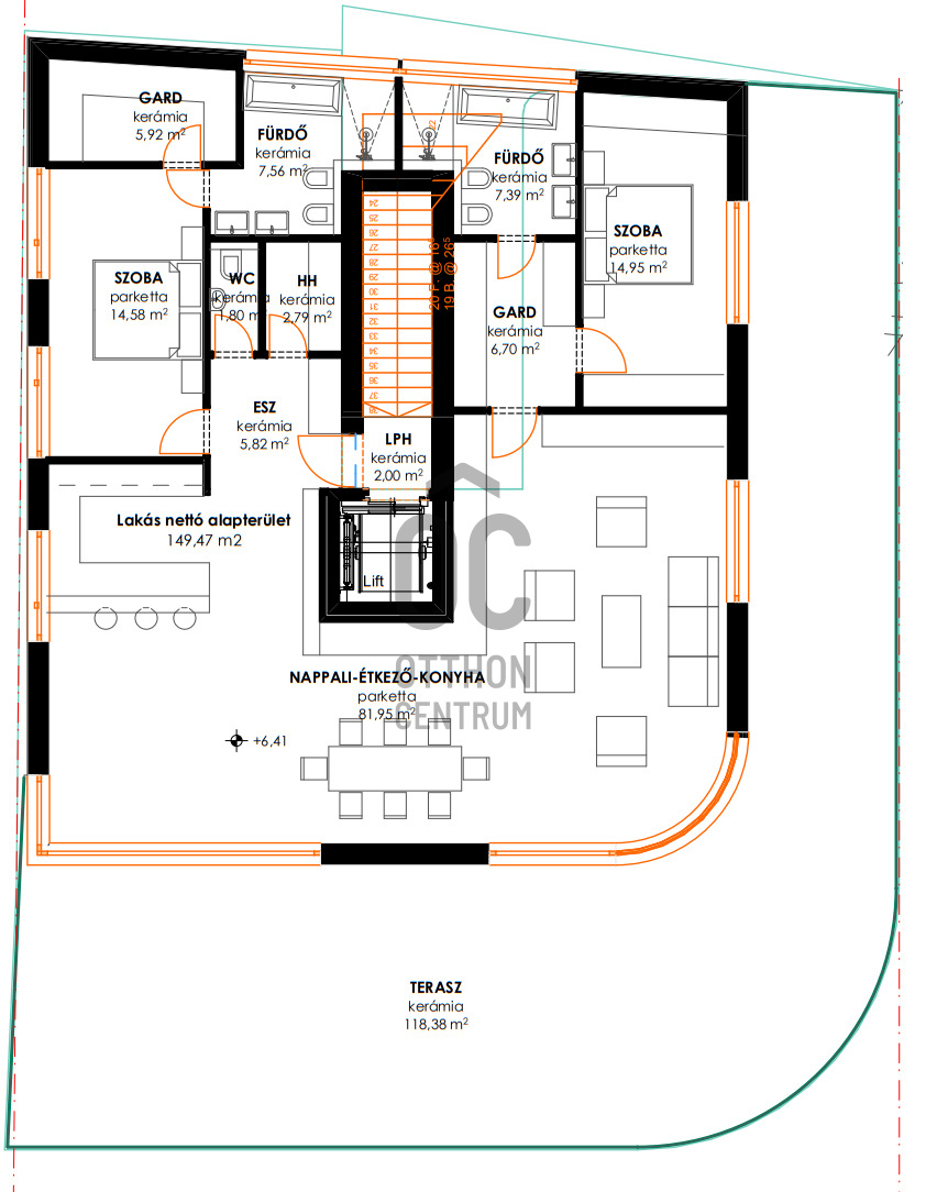
Méret
150 m²
Bruttó méret
209,1 m²
Terasz / erkély mérete
118,3 m²
Fűtés
hőszivattyú
Belmagasság
270 cm
Lakáson belüli szintszám
1
Tájolás
Dél-nyugat
Panoráma
Zöldre néző panoráma
Lépcsőház típusa
zárt lépcsőház
Állapot
Kiváló
Homlokzat állapota
Kiváló
Lépcsőház állapota
Kiváló
Pince
Önálló
Környék
csendes, jó közlekedés, zöld
Építés éve
2026
Fürdőszobák száma
2
Fekvés
kertre néző
Garázs
Külön vásárolható
Víz
Van
Gáz
Utcán
Villany
Van
Csatorna
Van
Lift
van
Tároló
Külön vásárolható
Vízpart távolsága
több mint 500 méterre

Helyiségek

szoba
14.58 m²
gardrób
5.92 m²
háztartási helyiség
2.79 m²
wc
1.8 m²
fürdőszoba-wc
7.56 m²
fürdőszoba-wc
7.39 m²
szoba
14.95 m²
gardrób
6.7 m²
nappali-konyha
81.95 m²
terasz
118.38 m²
Ruczek János
Ruczek János

Hitelszakértő

Irodánk kínálatából - II. kerület - TDG

for rent apartment

Index image
8

eladó lakás

Index image
16

eladó lakás

Index image
19

eladó lakás

Index image
31

eladó lakás

Index image
15

eladó lakás

Index image
21

for sale new construction apartment

Index image
23

eladó lakás

Index image
18

eladó lakás

Index image
22

for rent apartment

Index image
18

for sale apartment

Index image
data_sheet.details.realestate.section.main.otthonstart_flag.label
17

eladó lakás

Index image
19