Eladó újépítésű lakás, P4146-1-01-06-001
Budapest VII. kerület, Külső Erzsébetváros

205 000 000 Ft

533 000 €

  • 97,8m²
  • 4 szoba
  • 6. emelet

ÚJ ÉPÍTÉSŰ ENERGIAHATÉKONY LAKÁSOK- VII. KERÜLET

A VII. kerület központi részén várja leendő tulajdonosait ez a 44+2 lakásos új építésű társasház.
!! 1 db PENTHOUSE lakás érhető el !!

A lakás:
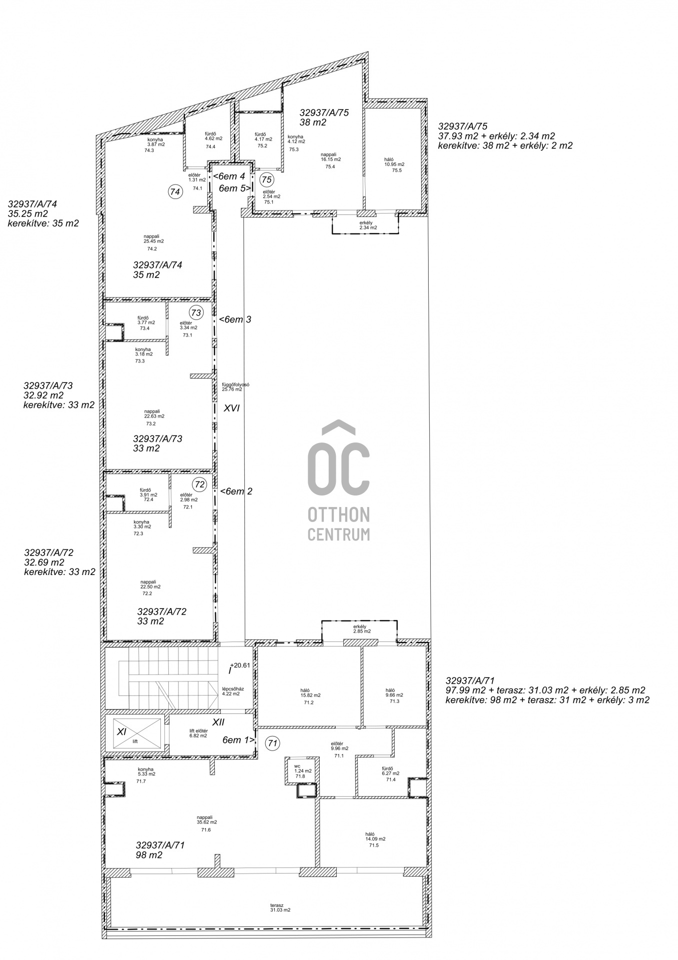
- VI. emelet, zárószint, penthouse lakás
- 98 nm + 31 nm tetőterasz
- D- i tájolású panorámás, utcai nézetű hatalmas nappali és 1 db hálószoba
- nappali- konyha, előszoba, fürdőszoba külön wc elosztás, 3 hálószoba
- a belső udvari nézetű hálószobákhoz tartozó erkély mérete 3 nm - É-i tájolás

Regisztrációs szám

P4146-1-01-06-001

Az ingatlan adatai

Értékesités
eladó
Jogi státusz
új
Jelleg
lakás
Építési mód
tégla
Méret
97,8 m²
Bruttó méret
98 m²
Terasz / erkély mérete
33,8 m²
Fűtés
elektromos, infra
Belmagasság
300 cm
Lakáson belüli szintszám
1
Tájolás
Dél
Panoráma
városi panoráma
Lépcsőház típusa
függőfolyosó
Állapot
Kiváló
Homlokzat állapota
Kiváló
Lépcsőház állapota
Kiváló
Pince
Közös
Környék
jó közlekedés, központi
Építés éve
2022
Fürdőszobák száma
1
Fekvés
utcai
Társaház kert
igen
Garázs
Külön vásárolható
Víz
Van
Gáz
Utcán
Villany
Van
Csatorna
Van
Lift
van
Tároló
Külön vásárolható

Helyiségek

hálószoba
15.82 m²
hálószoba
9.66 m²
hálószoba
14.09 m²
nappali-konyha
36.62 m²
fürdőszoba
6.27 m²
wc
1.24 m²
előszoba
9.96 m²
Tóth Róbert
Tóth Róbert

Hitelszakértő

Irodánk kínálatából - I. kerület - Krisztina körút

for sale apartment

Index image
33

for rent commercial property

Index image
12

for sale panel apartment

Index image
data_sheet.details.realestate.section.main.otthonstart_flag.label
21

for rent apartment

Index image
21

for sale panel apartment

Index image
18

for rent semi-detached house

Index image
26

for sale apartment

Index image
26

for sale apartment

Index image
30

for sale apartment

Index image
24

for sale apartment

Index image
data_sheet.details.realestate.section.main.otthonstart_flag.label
13