Eladó újépítésű lakás, P4146-1-01-02-001
Budapest VII. kerület, Külső Erzsébetváros

101 380 000 Ft

264 000 €

  • 66,3m²
  • 4 szoba
  • 2. emelet

ÚJ ÉPÍTÉSŰ ENERGIAHATÉKONY LAKÁSOK- VII. KERÜLET

A lakás:
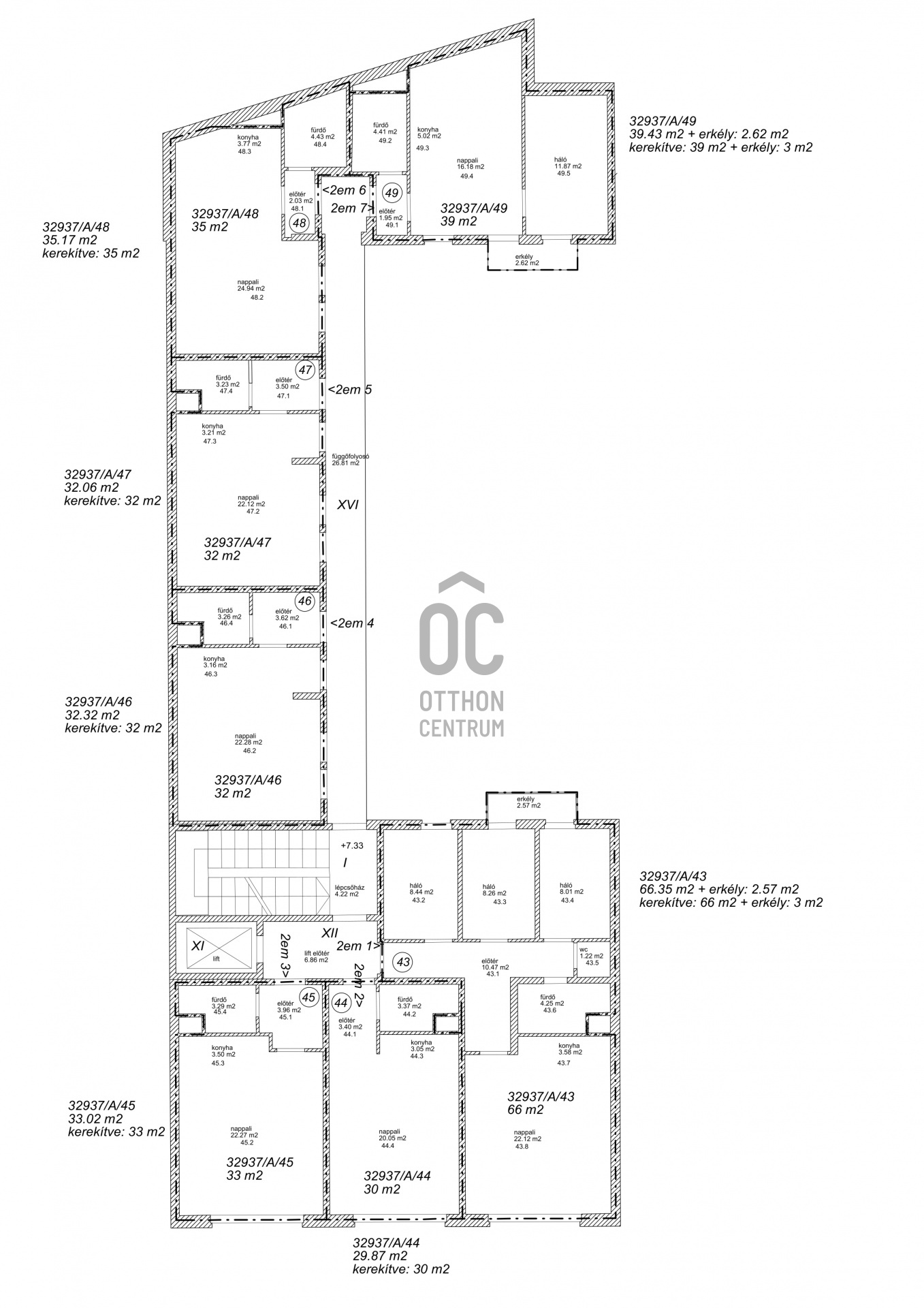
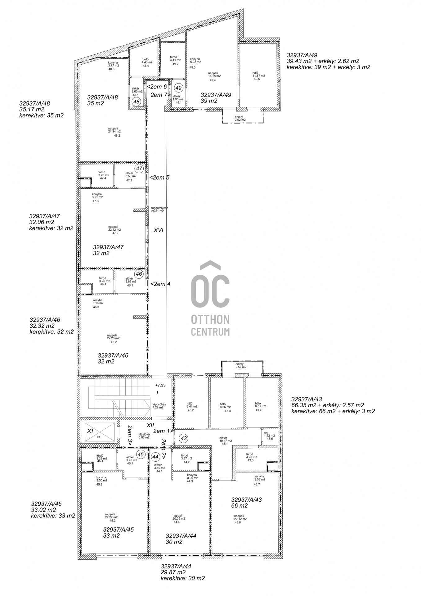
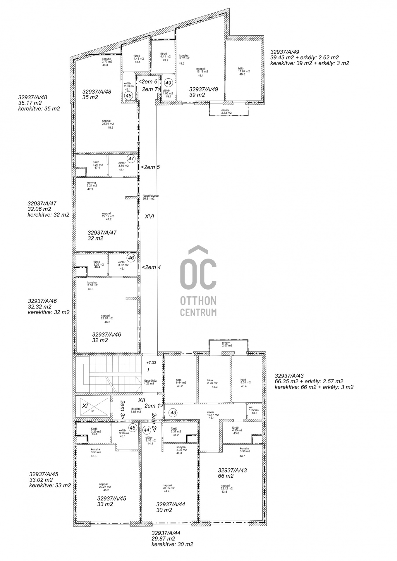
- II. emeleti 4 szobás ingatlan
- 66 nm
- 2,5 nm-es erkély
- nappali- konyha, előszoba, 3 hálószoba, fürdőszoba külön wc elosztású
- D- i tájolás az utcai nézetű nappaliból
- É-i tájolású udvari nézetű erkély és hálószobák

Regisztrációs szám

P4146-1-01-02-001

Az ingatlan adatai

Értékesités
eladó
Jogi státusz
új
Jelleg
lakás
Építési mód
tégla
Méret
66,3 m²
Bruttó méret
66 m²
Terasz / erkély mérete
2,5 m²
Fűtés
elektromos, infra
Belmagasság
300 cm
Lakáson belüli szintszám
1
Tájolás
Dél
Lépcsőház típusa
függőfolyosó
Állapot
Kiváló
Homlokzat állapota
Kiváló
Lépcsőház állapota
Kiváló
Pince
Közös
Építés éve
2022
Fürdőszobák száma
1
Fekvés
utcai
Társaház kert
igen
Garázs
Külön vásárolható
Víz
Van
Villany
Van
Csatorna
Van
Lift
van
Tároló
Külön vásárolható

Helyiségek

nappali-konyha
25.7 m²
hálószoba
8.44 m²
hálószoba
8.26 m²
hálószoba
8.01 m²
előszoba
10.47 m²
fürdőszoba
4.25 m²
wc
1.22 m²
erkély
2.57 m²
Tóth Róbert
Tóth Róbert

Hitelszakértő

Irodánk kínálatából - I. kerület - Krisztina körút

for sale apartment

Index image
33

for rent commercial property

Index image
12

for sale panel apartment

Index image
data_sheet.details.realestate.section.main.otthonstart_flag.label
21

for rent apartment

Index image
21

for sale panel apartment

Index image
18

for rent semi-detached house

Index image
26

for sale apartment

Index image
26

for sale apartment

Index image
30

for sale apartment

Index image
24

for sale apartment

Index image
data_sheet.details.realestate.section.main.otthonstart_flag.label
13