Elérhető Otthon Start hitellel
Eladó újépítésű ikerház,
P3997-1-B1-NA-000
Kőszeg,
89 700 000 Ft
234 000 €
- 105,5m²
- 4 szoba
Kőszegen új,tégla építésű családi házak eladók
Kőszegen új, tégla építésű családi ház eladók
Kőszegen új, tégla építésű családi házak eladók az Alsó körúton. Az ingatlanok minőségi alapanyagok felhasználásával, a jelenlegi előírások betartásával épülnek,
BB energetikai besorolásnak megfelelnek. A lakóingatlan tégla építésű, szigetelt, lapostetős kivitellel, műanyag nyílászárókkal készült.
1 ikerház + 1 önálló családi ház épül egy telekre, önálló kerthasználattal.
Hasznos alapterületek: 320 nm-es saját használatú kertkapcsolat
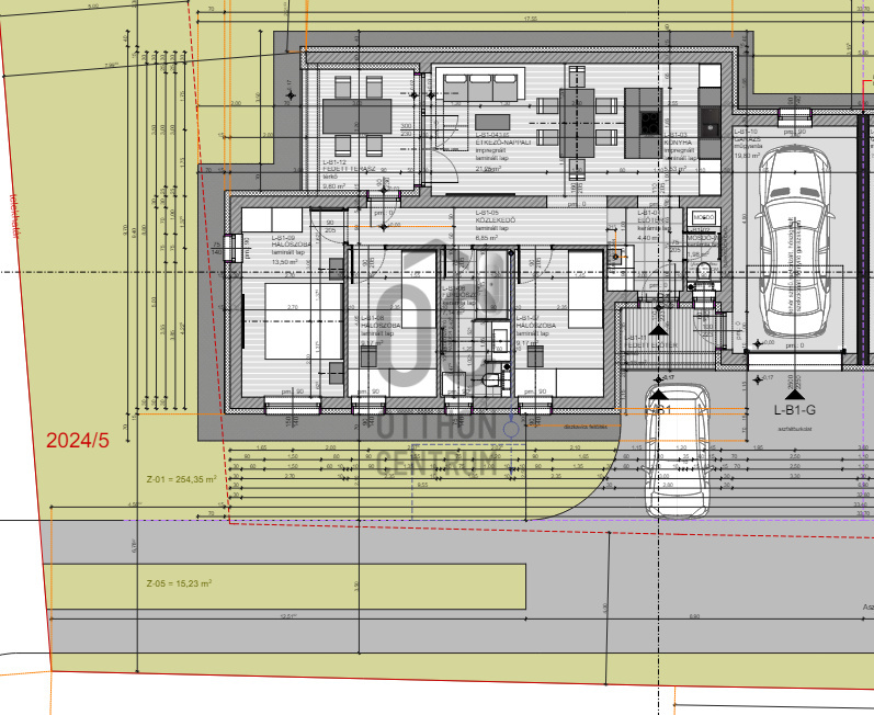
A nettó 78,99 nm -es ingatlan elosztása - földszintes: 3 hálószoba + nappali-konyha-étkező + fürdő-wc, vendég wc-mosdó.
A hálószobák átlagosan 10 nm-esek, a nappali - étkező 22 nm-es a meglévő tervek szerint.
Részben fedett terasz , előtér, 19,8 nm-es garázs, telek a hirdetési árban szerepel !
A szobák laminált lappal burkoltak, a többi helyiség kerámia lappal, illetve impregnált laminált padlóburkolattal szerepel a tervezetben.
Bővebb információért kérem keressen a megadott elérhetőségeken!
Várható átadás: 2026 év vége!
Kőszegen új, tégla építésű családi házak eladók az Alsó körúton. Az ingatlanok minőségi alapanyagok felhasználásával, a jelenlegi előírások betartásával épülnek,
BB energetikai besorolásnak megfelelnek. A lakóingatlan tégla építésű, szigetelt, lapostetős kivitellel, műanyag nyílászárókkal készült.
1 ikerház + 1 önálló családi ház épül egy telekre, önálló kerthasználattal.
Hasznos alapterületek: 320 nm-es saját használatú kertkapcsolat
A nettó 78,99 nm -es ingatlan elosztása - földszintes: 3 hálószoba + nappali-konyha-étkező + fürdő-wc, vendég wc-mosdó.
A hálószobák átlagosan 10 nm-esek, a nappali - étkező 22 nm-es a meglévő tervek szerint.
Részben fedett terasz , előtér, 19,8 nm-es garázs, telek a hirdetési árban szerepel !
A szobák laminált lappal burkoltak, a többi helyiség kerámia lappal, illetve impregnált laminált padlóburkolattal szerepel a tervezetben.
Bővebb információért kérem keressen a megadott elérhetőségeken!
Várható átadás: 2026 év vége!
Regisztrációs szám
P3997-1-B1-NA-000
Az ingatlan adatai
Értékesités
eladó
Jogi státusz
új
Jelleg
ház
Építési mód
tégla
Méret
105,5 m²
Bruttó méret
112,5 m²
Telek méret
320 m²
Terasz / erkély mérete
9,6 m²
Fűtés
Gáz cirkó
Belmagasság
275 cm
Lakáson belüli szintszám
1
Tájolás
Dél-nyugat
Állapot
Kiváló
Homlokzat állapota
Kiváló
Környék
csendes, jó közlekedés
Építés éve
2025
Fürdőszobák száma
1
Garázs
Benne van az árban
Garázs férőhely
1
Víz
Van
Gáz
Van
Villany
Van
Csatorna
Van
Helyiségek
hálószoba
9.17 m²
hálószoba
9.17 m²
hálószoba
13.5 m²
nappali-étkező
21.25 m²
konyha
5.53 m²
előszoba
4.4 m²
wc-kézmosó
1.98 m²
közlekedő
6.85 m²
fürdőszoba-wc
5.14 m²
Horváth Szabina
Hitelszakértő