Elérhető Otthon Start hitellel
Eladó újépítésű családi ház, P3997-1-04-NA-000
Kőszeg,

106 600 000 Ft

277 000 €

  • 125,3m²
  • 4 szoba

Kőszegen új,tégla építésű családi ház eladók

Kőszegen új, tégla építésű családi házak eladók az Alsó körúton. Az ingatlanok minőségi alapanyagok felhasználásával, a jelenlegi előírások betartásával épülnek,
BB energetikai besorolásnak megfelelnek. A lakóingatlan tégla építésű, szigetelt, lapostetős kivitellel, műanyag nyílászárókkal készült.
1 ikerház + 1 önálló családi ház épül egy telekre, önálló kerthasználattal.

Hasznos alapterületek: 571 nm-es saját használatú kertkapcsolat
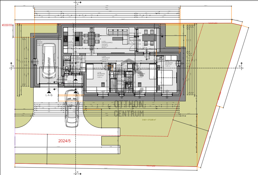
A nettó 98,72 nm -es ingatlan elosztása - földszintes: 3 hálószoba + nappali-konyha-étkező + fürdő-wc, háztartási helyiség, wc-mosdó.
A hálószobák átlagosan 10 nm-esek, a nappali - étkező 28 nm-es a meglévő tervek szerint.
Részben fedett terasz , előtér, 19,8 nm-es garázs, telek a hirdetési árban szerepel !

A szobák laminált lappal burkoltak, a többi helyiség kerámia lappal, illetve impregnált laminált padlóburkolattal szerepel a tervezetben.
Bővebb információért kérem keressen a megadott elérhetőségeken!
Várható átadás: 2026 év vége!

Regisztrációs szám

P3997-1-04-NA-000

Az ingatlan adatai

Értékesités
eladó
Jogi státusz
új
Jelleg
ház
Építési mód
tégla
Méret
125,3 m²
Bruttó méret
133 m²
Telek méret
571 m²
Terasz / erkély mérete
9,6 m²
Fűtés
Gáz cirkó
Belmagasság
275 cm
Lakáson belüli szintszám
1
Tájolás
Dél-nyugat
Állapot
Kiváló
Homlokzat állapota
Kiváló
Környék
csendes, jó közlekedés
Építés éve
2025
Fürdőszobák száma
1
Garázs
Benne van az árban
Garázs férőhely
1
Víz
Van
Gáz
Van
Villany
Van
Csatorna
Van

Helyiségek

hálószoba
12.09 m²
hálószoba
12.09 m²
hálószoba
13.5 m²
nappali-étkező
28.25 m²
konyha
5.53 m²
háztartási helyiség
2.97 m²
wc-kézmosó
1.98 m²
fürdőszoba-wc
7.36 m²
előszoba
4.4 m²
közlekedő
9.55 m²
Horváth Szabina
Horváth Szabina

Hitelszakértő

Irodánk kínálatából - Kőszeg

for sale family house

Index image
data_sheet.details.realestate.section.main.otthonstart_flag.label
24

for sale family house

Index image
data_sheet.details.realestate.section.main.otthonstart_flag.label
9

for sale apartment

Index image
data_sheet.details.realestate.section.main.otthonstart_flag.label
14

for sale family house

Index image
data_sheet.details.realestate.section.main.otthonstart_flag.label
34

for sale apartment

Index image
data_sheet.details.realestate.section.main.otthonstart_flag.label
12

for sale apartment

Index image
data_sheet.details.realestate.section.main.otthonstart_flag.label
14

for sale family house

Index image
data_sheet.details.realestate.section.main.otthonstart_flag.label
22

Alpok Spirit Társasház

Index image
data_sheet.details.realestate.section.main.otthonstart_flag.label
18