34 900 000 Ft
91 000 €
- 56m²
- 2 szoba
Dörgicse külterületén, az Agyaglik-dűlőben eladó ez a művelésből kivont, 507 nm-es terület, a rajta feltüntetett 56 nm-es kőházzal.
Az épület kő falazata nyomokban még áll, de elbontandó, helyére a jelenlegi mérettel megegyező gazdasági épület van megtervezve és engedélyeztetve!
Tehát NEM KELL sem kifüggeszteni, sem szőlővel telepíteni, azonnal megkezdhető az építkezés!
A telken áll az új áram bekötés, az úttal határos a telek, tehát egész évben kényelmesen megközelíthető.
Egyéb közmű nincsen, zárt emésztős szennyvíztárolás lehetséges és kútfúrással (vagy ciszternával) megoldható a vízellátás.
A terület minimálisan lejt, körülötte táblás mezőgazdasági területek vannak, szomszédságában kisebb régi pincék, amelyek sorra szépülnek meg. A Balaton is látszódik! ;)
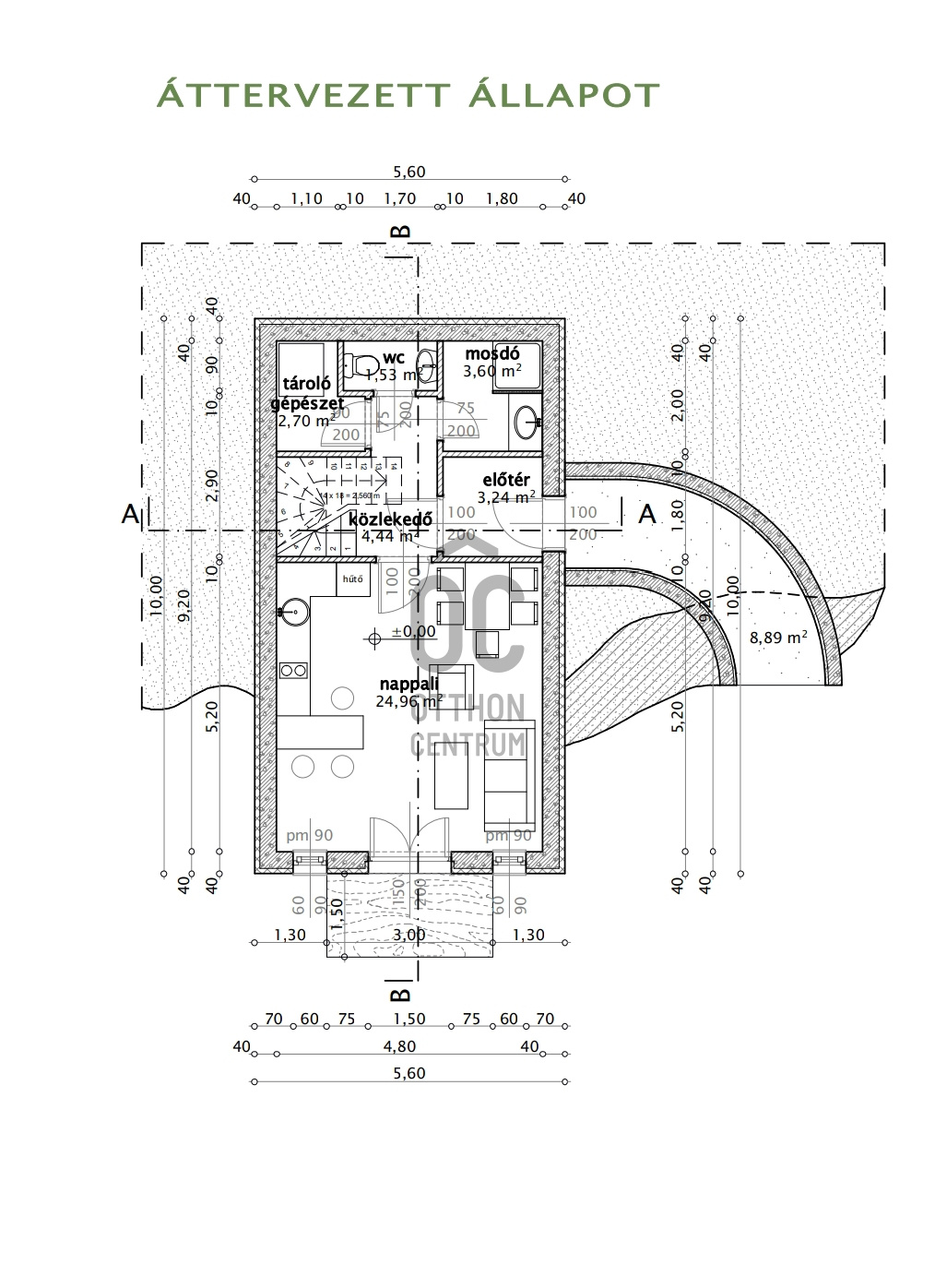
A képek között megtalálható a tervezett épület alaprajza és látványterve, de minden egyéb információ is rendelkezésre áll.
Kevés ilyen lehetőséget találni, jöjjön, nézze meg!
Az épület kő falazata nyomokban még áll, de elbontandó, helyére a jelenlegi mérettel megegyező gazdasági épület van megtervezve és engedélyeztetve!
Tehát NEM KELL sem kifüggeszteni, sem szőlővel telepíteni, azonnal megkezdhető az építkezés!
A telken áll az új áram bekötés, az úttal határos a telek, tehát egész évben kényelmesen megközelíthető.
Egyéb közmű nincsen, zárt emésztős szennyvíztárolás lehetséges és kútfúrással (vagy ciszternával) megoldható a vízellátás.
A terület minimálisan lejt, körülötte táblás mezőgazdasági területek vannak, szomszédságában kisebb régi pincék, amelyek sorra szépülnek meg. A Balaton is látszódik! ;)
A képek között megtalálható a tervezett épület alaprajza és látványterve, de minden egyéb információ is rendelkezésre áll.
Kevés ilyen lehetőséget találni, jöjjön, nézze meg!
Regisztrációs szám
NY012994
Az ingatlan adatai
Értékesités
eladó
Jogi státusz
használt
Jelleg
nyaraló
Típus
ház
Építési mód
kő
Méret
56 m²
Bruttó méret
56 m²
Telek méret
507 m²
Belmagasság
250 cm
Lakáson belüli szintszám
2
Tájolás
Dél
Panoráma
Zöldre néző panoráma
Állapot
Felújítandó
Homlokzat állapota
Rossz
Környék
csendes, zöld
Építés éve
1900
Fürdőszobák száma
2
Villany
Van
Vízpart távolsága
több mint 500 méterre
Helyiségek
nappali
25 m²
hálószoba
13 m²
fürdőszoba-wc
5 m²
közlekedő
4 m²
Edve János
Hitelszakértő