Elérhető Otthon Start hitellel
Eladó családi ház,
H515196
Berettyóújfalu
49 900 000 Ft
127 000 €
- 91m²
- 3 szoba
Eladó családi ház Berettyóújfalu csendes, mégis frekventált részén!
Berettyóújfalu nyugodt, ugyanakkor kiváló elhelyezkedésű részén kínálunk megvételre egy 91 m²-es, háromszobás családi házat, amely egy 822 m²-es telken helyezkedik el.
Az ingatlan B30-as téglából épült, stabil szerkezetű, és több melléképülettel, valamint garázzsal is rendelkezik. A kert rendezett, kellemes környezetet biztosít a mindennapokhoz.
A házban víz, villany és szennyvíz be van vezetve, a gáz az utcában található. Az elektromos hálózat kiemelkedő: 3 fázis áll rendelkezésre, 3×40 A nappali és 3×40 A éjszakai árammal. A nyílászárók egy része már cserélve lett, az egyik szobában pedig hangulatos cserépkályha biztosítja a meleget.
Az ingatlan elhelyezkedése kiváló: iskola, óvoda, Aldi és a vasútállomás mindössze 5 perc sétára található, ugyanakkor a ház a főút zajától mentes, így nyugodt, csendes környezetet kínál.
Ha egy jó elhelyezkedésű, tágas telken fekvő családi házat keres Berettyóújfaluban, érdemes személyesen is megtekinteni!
Ez az ingatlan a "Felező csomag” megbízási portfólióhoz tartozik. Részletek az Otthon Centrum weboldalán.
Az ingatlan B30-as téglából épült, stabil szerkezetű, és több melléképülettel, valamint garázzsal is rendelkezik. A kert rendezett, kellemes környezetet biztosít a mindennapokhoz.
A házban víz, villany és szennyvíz be van vezetve, a gáz az utcában található. Az elektromos hálózat kiemelkedő: 3 fázis áll rendelkezésre, 3×40 A nappali és 3×40 A éjszakai árammal. A nyílászárók egy része már cserélve lett, az egyik szobában pedig hangulatos cserépkályha biztosítja a meleget.
Az ingatlan elhelyezkedése kiváló: iskola, óvoda, Aldi és a vasútállomás mindössze 5 perc sétára található, ugyanakkor a ház a főút zajától mentes, így nyugodt, csendes környezetet kínál.
Ha egy jó elhelyezkedésű, tágas telken fekvő családi házat keres Berettyóújfaluban, érdemes személyesen is megtekinteni!
Ez az ingatlan a "Felező csomag” megbízási portfólióhoz tartozik. Részletek az Otthon Centrum weboldalán.
Regisztrációs szám
H515196
Az ingatlan adatai
Értékesités
eladó
Jogi státusz
használt
Jelleg
ház
Építési mód
tégla
Méret
91 m²
Bruttó méret
91 m²
Telek méret
822 m²
Fűtés
elektromos kályha
Belmagasság
300 cm
Tájolás
Észak-kelet
Panoráma
Egyéb
Állapot
Átlagos
Homlokzat állapota
Átlagos
Pince
Önálló
Környék
csendes
Építés éve
1981
Fürdőszobák száma
1
Garázs
Benne van az árban
Garázs férőhely
1
Víz
Van
Gáz
Utcán
Villany
Van
Csatorna
Van
Tároló
Önálló
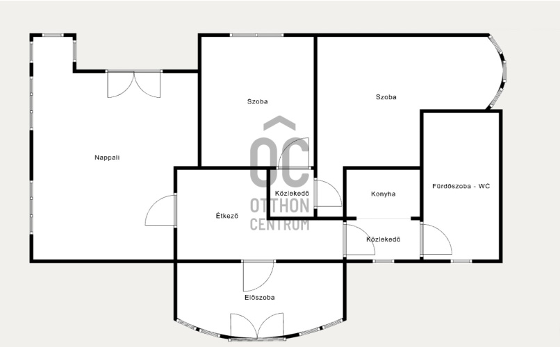
Helyiségek
hálószoba
17.28 m²
hálószoba
13 m²
hálószoba
27.9 m²
közlekedő
3.06 m²
fürdőszoba-wc
7.35 m²
konyha
2.34 m²
közlekedő
1.71 m²
ebédlő
11.5 m²
előszoba
5 m²
Czellér András
Hitelszakértő