Elérhető Otthon Start hitellel
Eladó ikerház,
H514697
Debrecen, Biharikert
119 000 000 Ft
304 000 €
- 159m²
- 6 szoba
Egy ház, három lehetőség – többgenerációs otthon vagy befektetés Debrecen Biharikertben!
Debrecen közkedvelt, családbarát városrészében, a Biharikertben eladó egy 159 m²-es, gázfűtéses, klimatizált ikerház, 320 m²-es saroktelken.
Bár az ingatlan ikerházként szerepel, kialakításának köszönhetően szinte teljesen különálló épület, mindössze egy fal érintkezik a szomszédos ingatlannal,
így az otthon nyugodt, privát életteret biztosít.
Különlegessége, hogy 3 lakrészből áll, amelyek külön bejárattal is rendelkeznek, ugyanakkor igény szerint teljesen egyben is használhatók,
így rugalmasan alakítható az új tulajdonos elképzelései szerint.
Ideális választás:
- több generáció együttélésére
- befektetésre vagy kiadásra
- szépségszalon, iroda vagy otthoni vállalkozás kialakítására.
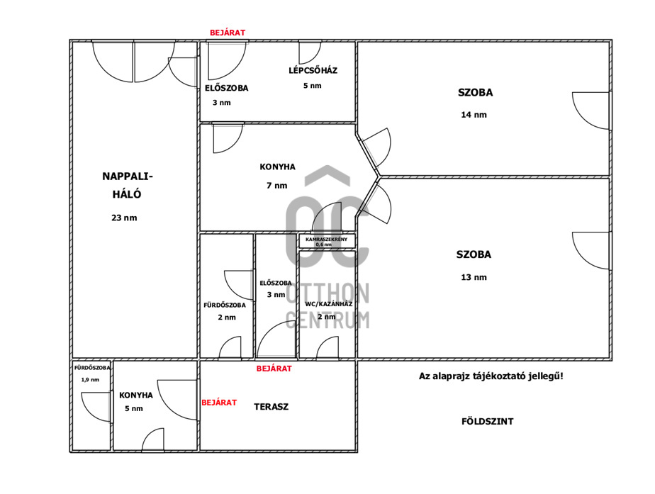
Az ingatlan elrendezése:
Alsó szint – 2 lakrész:
1. lakrész – 30 m²
- világos nappali hatalmas ablakokkal
- galériás hálórész
- konyha
- zuhanyzós fürdőszoba WC-vel
2. lakrész – 49,5 m²
- előszoba
- konyha
- 2 szoba
- zuhanyzós fürdőszoba
- WC / kazánház
- közlekedő
Emeleti lakrész:
– 79,5 m²
- 2 szoba
- nappali–étkező
- konyha
- zuhanyzós fürdőszoba
- külön WC
- közlekedő
Felújítások – 2021
Az ingatlan több korszerűsítésen esett át:
- alsó és felső szinten 1-1 klíma került beszerelésre
- műanyag bejárati ajtók
- 10 cm-es szigetelés
- három fürdőszoba új burkolatot kapott
- Immergas gázkazán
- fedett terasz polikarbonát borítással
További előnyök
- 320 m²-es saroktelek
- 3 külön bejáratú lakrész
- rugalmasan alakítható elrendezés
- tehermentes ingatlan
Megtekintéssel kapcsolatban hívjon bizalommal a hét bármely napján!
Bár az ingatlan ikerházként szerepel, kialakításának köszönhetően szinte teljesen különálló épület, mindössze egy fal érintkezik a szomszédos ingatlannal,
így az otthon nyugodt, privát életteret biztosít.
Különlegessége, hogy 3 lakrészből áll, amelyek külön bejárattal is rendelkeznek, ugyanakkor igény szerint teljesen egyben is használhatók,
így rugalmasan alakítható az új tulajdonos elképzelései szerint.
Ideális választás:
- több generáció együttélésére
- befektetésre vagy kiadásra
- szépségszalon, iroda vagy otthoni vállalkozás kialakítására.
Az ingatlan elrendezése:
Alsó szint – 2 lakrész:
1. lakrész – 30 m²
- világos nappali hatalmas ablakokkal
- galériás hálórész
- konyha
- zuhanyzós fürdőszoba WC-vel
2. lakrész – 49,5 m²
- előszoba
- konyha
- 2 szoba
- zuhanyzós fürdőszoba
- WC / kazánház
- közlekedő
Emeleti lakrész:
– 79,5 m²
- 2 szoba
- nappali–étkező
- konyha
- zuhanyzós fürdőszoba
- külön WC
- közlekedő
Felújítások – 2021
Az ingatlan több korszerűsítésen esett át:
- alsó és felső szinten 1-1 klíma került beszerelésre
- műanyag bejárati ajtók
- 10 cm-es szigetelés
- három fürdőszoba új burkolatot kapott
- Immergas gázkazán
- fedett terasz polikarbonát borítással
További előnyök
- 320 m²-es saroktelek
- 3 külön bejáratú lakrész
- rugalmasan alakítható elrendezés
- tehermentes ingatlan
Megtekintéssel kapcsolatban hívjon bizalommal a hét bármely napján!
Regisztrációs szám
H514697
Az ingatlan adatai
Értékesités
eladó
Jogi státusz
használt
Jelleg
ház
Építési mód
tégla
Méret
159 m²
Bruttó méret
170 m²
Telek méret
320 m²
Terasz / erkély mérete
5,8 m²
Fűtés
Gáz cirkó
Belmagasság
270 cm
Lakáson belüli szintszám
1
Tájolás
Dél-nyugat
Állapot
Átlagos
Homlokzat állapota
Átlagos
Környék
csendes, jó közlekedés, zöld
Építés éve
2006
Fürdőszobák száma
3
Víz
Van
Gáz
Van
Villany
Van
Csatorna
Van
Többgenerációs
igen
Helyiségek
nappali
22.92 m²
konyha
5.27 m²
fürdőszoba-wc
1.9 m²
előszoba
2.77 m²
lépcsőház
5.16 m²
konyha-étkező
6.76 m²
fürdőszoba
2.16 m²
előszoba
2.72 m²
wc
1.85 m²
szoba
13.18 m²
szoba
13.97 m²
kamra
0.57 m²
lépcsőház
5.16 m²
közlekedő
10.37 m²
nappali-étkező
18.95 m²
konyha
8.25 m²
fürdőszoba
4.63 m²
wc
1.68 m²
szoba
12 m²
szoba
18.55 m²
Czellér András
Hitelszakértő